|
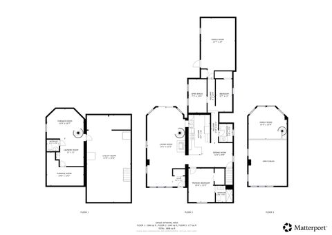
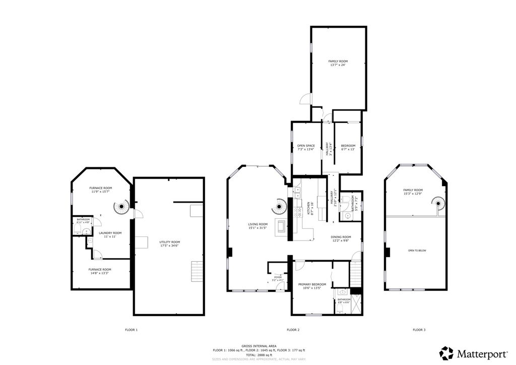
Opportunity awaits in the heart of Oriole Park! This single-family home offers 3 bedrooms, 1 full bath, and 2 half baths, making it the perfect canvas for buyers ready to bring their vision to life. Large living room with spiral staircase to your own loft/study overlooking the living room. Great kitchen layout with space for a breakfast bar. Tons of natural light throughout. Huge backyard with deck and 2-car detached garage Whether you're looking to renovate and create your dream home or take advantage of the oversized lot to build new, the possibilities here are endless. Located on a desirable residential street in one of Chicago's most sought-after Northwest Side neighborhoods, this property is close to parks, schools, shopping, dining, and convenient transportation options. A rare chance to invest in a prime location. Bring your ideas and unlock the value of this Oriole Park gem! Don't miss out! Click the 3D Tour!
| DAYS ON MARKET | 1 | LAST UPDATED | 2/2/2026 |
|---|---|---|---|
| YEAR BUILT | 1923 | COMMUNITY | CHI - Norwood Park |
| GARAGE SPACES | 2.0 | COUNTY | Cook |
| STATUS | Active | PROPERTY TYPE(S) | Single Family |
| ADDITIONAL DETAILS | |
| AIR | Wall Unit(s) |
|---|---|
| AIR CONDITIONING | Yes |
| APPLIANCES | Dishwasher, Dryer, Microwave, Range, Refrigerator, Washer |
| AREA | CHI - Norwood Park |
| BASEMENT | Full, Partially Finished, Yes |
| CONSTRUCTION | Wood Siding |
| GARAGE | Yes |
| HEAT | Forced Air, Natural Gas |
| INTERIOR | Built-in Features, Cathedral Ceiling(s), Vaulted Ceiling(s) |
| LOT | 0 |
| LOT DIMENSIONS | 4960 |
| PARKING | Garage Door Opener, Detached, Garage |
| SEWER | Public Sewer |
| TAXES | 3743 |
| WATER | Public |
MORTGAGE CALCULATOR
TOTAL MONTHLY PAYMENT
0
P
I
*Estimate only
| SATELLITE VIEW |
| / | |
We respect your online privacy and will never spam you. By submitting this form with your telephone number
you are consenting for Humderto
Garcia to contact you even if your name is on a Federal or State
"Do not call List".
Listed with xr realty
The data relating to real estate for sale on this web site comes in part from the Broker ReciprocitySM Program of MRED. All real estate listings are marked with the Broker ReciprocitySM logo or the MRED Broker ReciprocitySM thumbnail logo (a little black house) and detailed information about them includes the name of the listing brokers.
The broker providing these data believes them to be correct, but advises interested parties to confirm them before relying on them in a purchase decision.
Copyright 2026 MRED. All rights reserved.

The broker providing these data believes them to be correct, but advises interested parties to confirm them before relying on them in a purchase decision.
Copyright 2026 MRED. All rights reserved.
This IDX solution is (c) Diverse Solutions 2026.