|
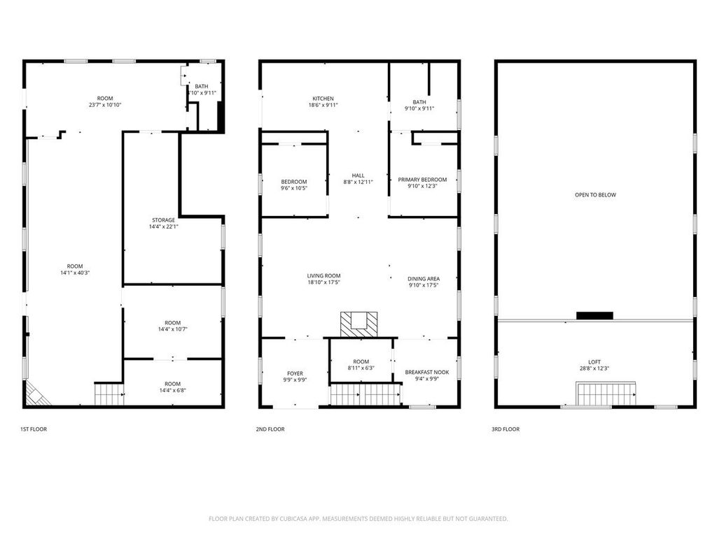
Historic Charm Meets Modern Living! Step inside the beautifully converted Old Cumberland Presbyterian Church in DeWitt, IL - a one-of-a-kind property that blends history, character, and comfort. This spacious home features two main-level bedrooms, plus a loft suite with potential to divide into a third and fourth bedroom. The partially finished basement adds even more flexibility, offering a large family room, second bathroom, and an additional room perfect for guests, office space, or hobbies. Natural light fills every corner thanks to the original stained glass windows, casting colorful warmth across the timeless hardwood floors. High ceilings and open spaces maintain the church's grandeur, while thoughtful updates provide all the conveniences of modern living. Located just minutes from Clinton Lake's boat launch and beach, this home is a dream for outdoor enthusiasts who love boating, fishing, and exploring nature. Whether you're seeking a primary residence, a weekend retreat, or a truly unique investment property, this historic gem offers endless possibilities. Don't miss your chance to own a piece of DeWitt County history - schedule your private tour today!
| DAYS ON MARKET | 308 | LAST UPDATED | 12/21/2025 |
|---|---|---|---|
| TRACT | Not Applicable | YEAR BUILT | 1890 |
| COMMUNITY | DeWitt | COUNTY | DeWitt |
| STATUS | Conditional | PROPERTY TYPE(S) | Single Family |
| School District | Clinton High School |
|---|---|
| Elementary School | Clinton Elementary School |
| Jr. High School | Clinton Junior High School |
| High School | Clinton High School |
| ADDITIONAL DETAILS | |
| AIR | Central Air |
|---|---|
| AIR CONDITIONING | Yes |
| APPLIANCES | Range, Refrigerator |
| AREA | DeWitt |
| BASEMENT | Full, Partially Finished, Yes |
| CONSTRUCTION | Vinyl Siding |
| HEAT | Natural Gas |
| INTERIOR | Cathedral Ceiling(s) |
| LOT | 0 |
| LOT DIMENSIONS | 41.25 X 82.5 |
| PARKING | Gravel, Driveway |
| SEWER | Septic Tank |
| STYLE | Other |
| SUBDIVISION | Not Applicable |
| TAXES | 520 |
| WATER | Public |
MORTGAGE CALCULATOR
TOTAL MONTHLY PAYMENT
0
P
I
*Estimate only
| SATELLITE VIEW |
| / | |
We respect your online privacy and will never spam you. By submitting this form with your telephone number
you are consenting for Humderto
Garcia to contact you even if your name is on a Federal or State
"Do not call List".
Listed with Century 21 Quest
The data relating to real estate for sale on this web site comes in part from the Broker ReciprocitySM Program of MRED. All real estate listings are marked with the Broker ReciprocitySM logo or the MRED Broker ReciprocitySM thumbnail logo (a little black house) and detailed information about them includes the name of the listing brokers.
The broker providing these data believes them to be correct, but advises interested parties to confirm them before relying on them in a purchase decision.
Copyright 2026 MRED. All rights reserved.

The broker providing these data believes them to be correct, but advises interested parties to confirm them before relying on them in a purchase decision.
Copyright 2026 MRED. All rights reserved.
This IDX solution is (c) Diverse Solutions 2026.