|
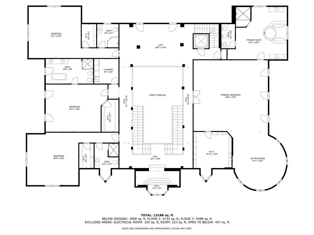
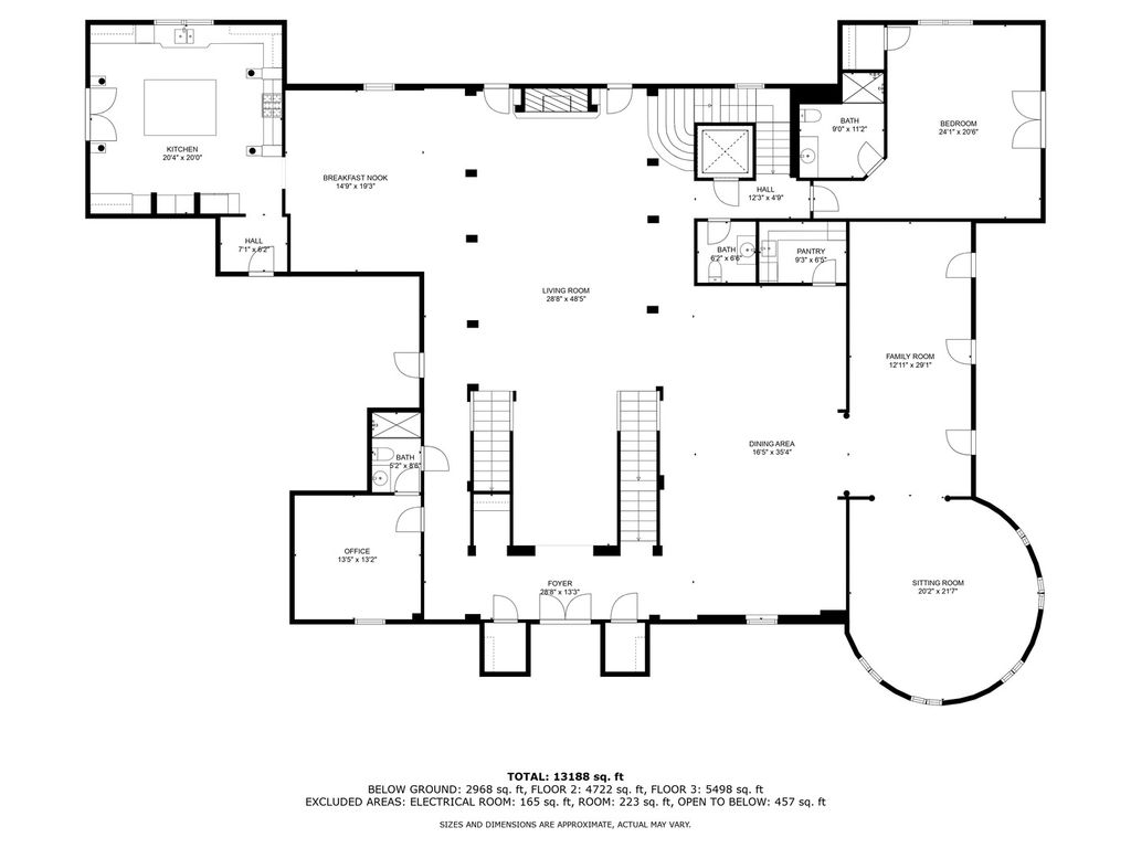
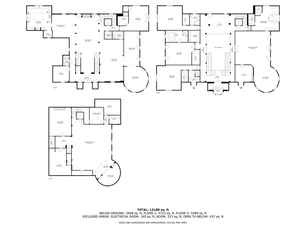
This stunning castle boasts beautiful details throughout its impressive interiors. Designed like a fortress because it is a fortress , the entrance is eye-catching, with incredible stone and brickwork, thick 18-inch walls, and strong 12-inch floors that provide both soundproofing and a touch of elegance. You'll find charming imported wrought iron, an elegant billiard room, five complete suites, an elevator, cozy radiant heated floors, and plenty of space for entertaining guests. Spanning 12,000 square feet of top-notch quality, the lower level features a game room, a theater, a workout area, a wine cellar, and a bar. Plus, the rooftop is ready for a deck, adding to the castle's impressive charm. Nestled in the vibrant heart of Oak Brook, this property is perfect for buyers seeking to personalize their unique residence. With exceptional construction in brick, cement, and stone, the grand room boasts a stunning 40-foot ceiling and 12 skylights that brighten an indoor courtyard. Additional highlights include three full-size fireplaces and five bedrooms, including a spacious master suite, all complemented by an elevator for convenience. This extraordinary castle promises a refined lifestyle for those who truly appreciate exceptional homes.
| DAYS ON MARKET | 234 | LAST UPDATED | 4/11/2025 |
|---|---|---|---|
| YEAR BUILT | 2009 | COMMUNITY | Oak Brook |
| GARAGE SPACES | 4.0 | COUNTY | DuPage |
| STATUS | Active | PROPERTY TYPE(S) | Single Family |
| School District | Hinsdale Central High School |
|---|---|
| Elementary School | Brook Forest Elementary School |
| Jr. High School | Butler Junior High School |
| High School | Hinsdale Central High School |
| ADDITIONAL DETAILS | |
| AIR | Ceiling Fan(s), Central Air |
|---|---|
| AIR CONDITIONING | Yes |
| APPLIANCES | Dishwasher, Disposal, Dryer, Microwave, Range, Refrigerator, Washer, Wine Refrigerator |
| AREA | Oak Brook |
| BASEMENT | Finished, Full, Sump Pump, Yes |
| CONSTRUCTION | Brick, Concrete, Stone |
| EXTERIOR | Balcony, Barbecue, Outdoor Grill |
| FIREPLACE | Yes |
| GARAGE | Yes |
| HEAT | Natural Gas, Radiant, Radiant Floor |
| INTERIOR | Cathedral Ceiling(s), Elevator, Pantry, Walk-In Closet(s) |
| LOT | 0.89 acre(s) |
| LOT DIMENSIONS | 174 X 185 X 140 X 75 |
| PARKING | Garage Door Opener, Heated Garage, Garage, On Site, Attached, Driveway |
| SEWER | Public Sewer |
| STYLE | Other |
| TAXES | 49340.28 |
MORTGAGE CALCULATOR
TOTAL MONTHLY PAYMENT
0
P
I
*Estimate only
| SATELLITE VIEW |
| / | |
We respect your online privacy and will never spam you. By submitting this form with your telephone number
you are consenting for Humderto
Garcia to contact you even if your name is on a Federal or State
"Do not call List".
Listed with Coldwell Banker Realty
The data relating to real estate for sale on this web site comes in part from the Broker ReciprocitySM Program of MRED. All real estate listings are marked with the Broker ReciprocitySM logo or the MRED Broker ReciprocitySM thumbnail logo (a little black house) and detailed information about them includes the name of the listing brokers.
The broker providing these data believes them to be correct, but advises interested parties to confirm them before relying on them in a purchase decision.
Copyright 2025 MRED. All rights reserved.

The broker providing these data believes them to be correct, but advises interested parties to confirm them before relying on them in a purchase decision.
Copyright 2025 MRED. All rights reserved.
This IDX solution is (c) Diverse Solutions 2025.