|
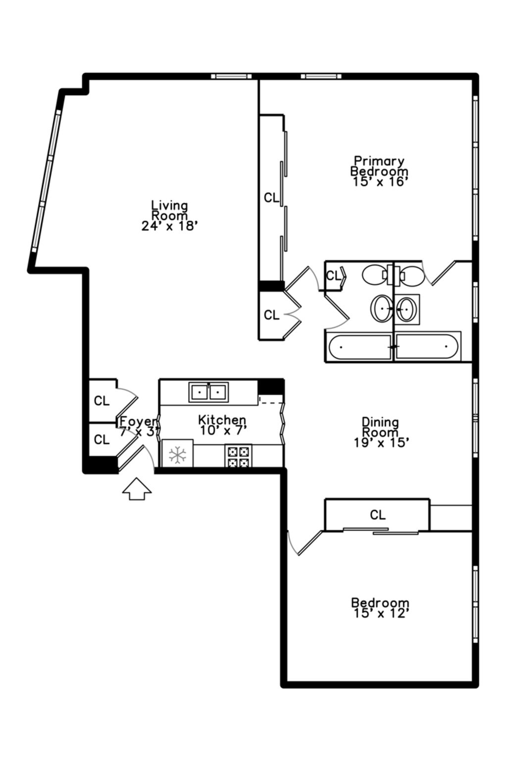
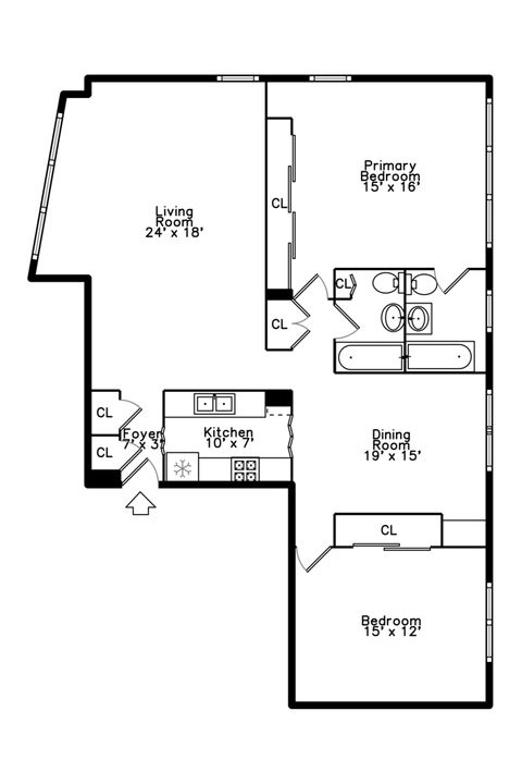
*Exceptional Estate Sale!* Rare opportunity for instant sweat equity with this expansive 2 bd / 2 bath corner unit in the Hyde Park / Kenwood area. Plus, all *utilities and real estate taxes included in the HOA fee!* This large, bright, sun-filled corner unit offers beautifully framed park, lake, sky, and tree-top views; plus an elegant king-size primary suite and two full bathrooms. This regal residence has been lovingly cared for and lives like a single family home with many storied antiques and treasures inside. Outside, you'll love being able to walk/bike to lake Michigan, shops, greenspace, market, playground, organic grocery, fitness, and transportation. Just steps from your front door are: Divvy bikes, a bus stop/CTA, Metra train, park, the Hyde Park Art Center, Whole Foods and more! Monthly HOA assessment includes heat, water, electricity, cable, Internet, real estate taxes! Enjoy residing in a magnificent residence with architecture inspired by icon Mies van der Rohe, while enjoying all that the area has to offer. Estate Sale. Sold as-is. Bring your updating ideas and enjoy a great unit in a super location!
| DAYS ON MARKET | 190 | LAST UPDATED | 10/3/2025 |
|---|---|---|---|
| YEAR BUILT | 1956 | COMMUNITY | CHI - Kenwood |
| COUNTY | Cook | STATUS | Conditional |
| PROPERTY TYPE(S) | Condo/Townhouse/Co-Op |
| PRICE HISTORY | |
| Prior to Jun 4, '25 | $150,000 |
|---|---|
| Jun 4, '25 - Jul 24, '25 | $125,000 |
| Jul 24, '25 - Today | $115,000 |
| ADDITIONAL DETAILS | |
| AIR | Wall Unit(s) |
|---|---|
| AIR CONDITIONING | Yes |
| AMENITIES | Electricity, Insurance, Internet, Snow Removal, Water |
| APPLIANCES | Disposal, Range, Range Hood, Refrigerator |
| AREA | CHI - Kenwood |
| BASEMENT | None |
| CONSTRUCTION | Concrete |
| HEAT | Radiant |
| HOA DUES | 1526 |
| INTERIOR | Elevator, Entrance Foyer, Storage |
| LOT | 0 |
| LOT DESCRIPTION | Landscaped |
| LOT DIMENSIONS | COMMON |
| SEWER | Public Sewer |
| STORIES | 14 |
| UTILITIES | Cable Available |
| VIEW | Yes |
| VIEW DESCRIPTION | Water |
| WATER | Public |
MORTGAGE CALCULATOR
TOTAL MONTHLY PAYMENT
0
P
I
*Estimate only
| SATELLITE VIEW |
| / | |
We respect your online privacy and will never spam you. By submitting this form with your telephone number
you are consenting for Humderto
Garcia to contact you even if your name is on a Federal or State
"Do not call List".
Listed with Baird & Warner
The data relating to real estate for sale on this web site comes in part from the Broker ReciprocitySM Program of MRED. All real estate listings are marked with the Broker ReciprocitySM logo or the MRED Broker ReciprocitySM thumbnail logo (a little black house) and detailed information about them includes the name of the listing brokers.
The broker providing these data believes them to be correct, but advises interested parties to confirm them before relying on them in a purchase decision.
Copyright 2025 MRED. All rights reserved.

The broker providing these data believes them to be correct, but advises interested parties to confirm them before relying on them in a purchase decision.
Copyright 2025 MRED. All rights reserved.
This IDX solution is (c) Diverse Solutions 2025.