| 
		
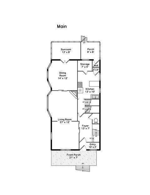
First time on the market in over 100 years! Welcome to this well cared for farmhouse built in 1897 Nestled in sought-after Main St./Chicago Ave neighborhood, this home offers a rare blend of historic charm and future potential. Step inside to discover a gracious main level featuring a double parlor with original woodwork, a decorative fireplace, and pocket doors. The dining room opens to an enclosed back porch through French doors-perfect for relaxing with a morning coffee. The efficient kitchen with pantry and a convenient 1/4 bath complete the first floor. Upstairs, you'll find four good-sized bedrooms and a full hall bath. The unfinished third level features a vaulted ceiling. Set on a large lot with space for outdoor entertaining, future expansion, or a new garage. This is a rare opportunity to restore and personalize this home in one of Evanston's most popular neighborhoods. Close to both the Metra and CTA, the Lake and some of Evanston's most popular restaurants and shops. Roof 2013, Electric panel and wiring 2013, exterior painted 2022
| DAYS ON MARKET | 166 | LAST UPDATED | 7/28/2025 | 
|---|---|---|---|
| YEAR BUILT | 1897 | COMMUNITY | Evanston | 
| COUNTY | Cook | STATUS | Active | 
| PROPERTY TYPE(S) | Single Family | 
| School District | Evanston Twp High School | 
|---|---|
| Elementary School | Lincoln Elementary School | 
| Jr. High School | Nichols Middle School | 
| High School | Evanston Twp High School | 
| ADDITIONAL DETAILS | |
| AIR | None | 
|---|---|
| APPLIANCES | Microwave, Range, Refrigerator | 
| AREA | Evanston | 
| BASEMENT | Full, Unfinished, Yes | 
| CONSTRUCTION | Frame | 
| FIREPLACE | Yes | 
| HEAT | Natural Gas | 
| INTERIOR | Entrance Foyer, High Ceilings, Pantry | 
| LOT | 0 | 
| LOT DIMENSIONS | 49 X 149 | 
| PARKING | On Site | 
| SEWER | Public Sewer | 
| STYLE | Farmhouse, Victorian | 
| TAXES | 15202 | 
| WATER | Public | 
            MORTGAGE CALCULATOR
        
        TOTAL MONTHLY PAYMENT
0
                    P
                        I 
                    
            *Estimate only
        
    | SATELLITE VIEW | 
| / | |
	We respect your online privacy and will never spam you. By submitting this form with your telephone number
	you are consenting for Humderto
	Garcia to contact you even if your name is on a Federal or State
	"Do not call List".
	
    Listed with Coldwell Banker
	The data relating to real estate for sale on this web site comes in part from the Broker ReciprocitySM Program of MRED. All real estate listings are marked with the Broker ReciprocitySM logo or the MRED Broker ReciprocitySM thumbnail logo (a little black house) and detailed information about them includes the name of the listing brokers.
The broker providing these data believes them to be correct, but advises interested parties to confirm them before relying on them in a purchase decision.
Copyright 2025 MRED. All rights reserved.

	
	
	
    
The broker providing these data believes them to be correct, but advises interested parties to confirm them before relying on them in a purchase decision.
Copyright 2025 MRED. All rights reserved.
This IDX solution is (c) Diverse Solutions 2025.