|
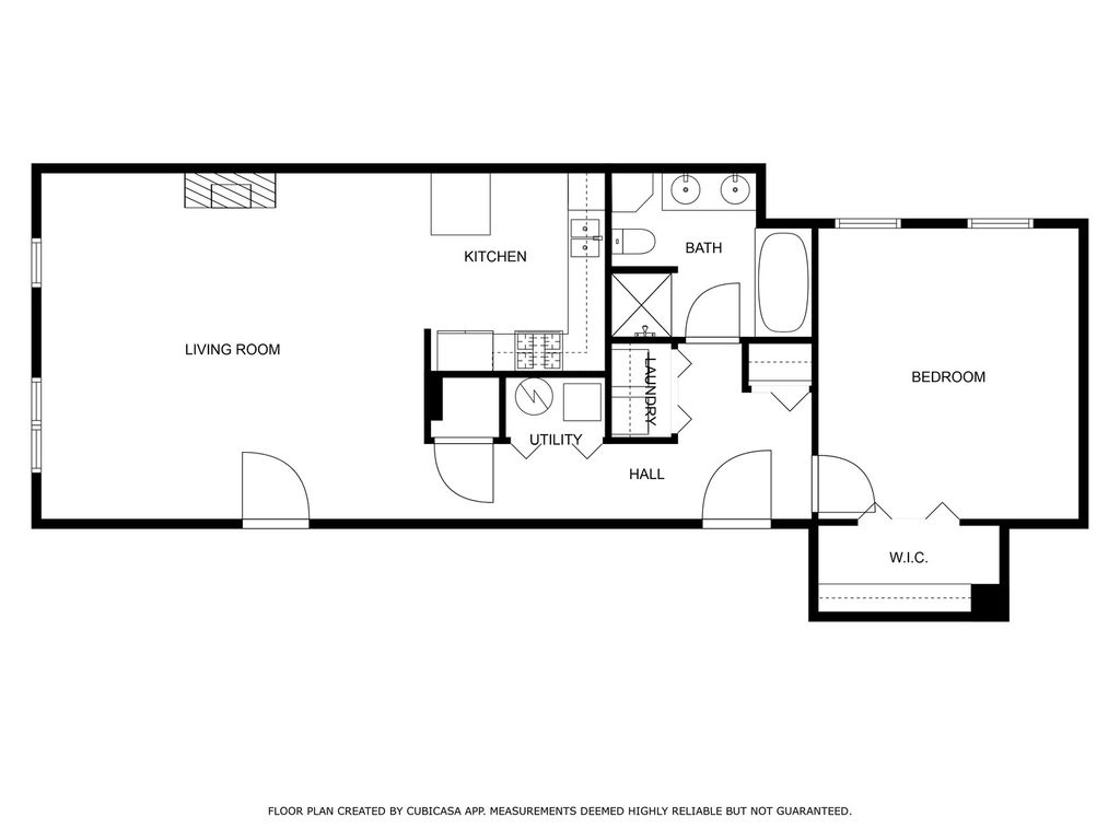
INVESTORS ONLY LEASE IN PLACE TIL JULY 2026 - Welcome to your new condo in Avondale. Step inside and check out all of that wide open space! This extra large room has a gas log fireplace and serves as a combo living/dining room. The kitchen has granite countertops and stainless appliances. There are wood floors throughout the unit. Head down the hallway. To your left is a coat closet with built-in organization. Next to that is the utility closet. Keep going straight and into the large bedroom with a professionally organized walk-in closet. Outside the bedroom is a linen closet, laundry closet and bathroom. The full bath is luxurious! HEATED FLOORS THROUGHTOUT With a separate shower, whirlpool tub, double sinks and lots of storage, it's like a spa day every day. Outdoor parking is included. Conveniently located near the Kennedy expressway, Regal Cinemas, Target, Home Depot, Costco and so much more!
| DAYS ON MARKET | 188 | LAST UPDATED | 7/14/2025 |
|---|---|---|---|
| YEAR BUILT | 2007 | COMMUNITY | CHI - Avondale |
| COUNTY | Cook | STATUS | Active |
| PROPERTY TYPE(S) | Condo/Townhouse/Co-Op |
| PRICE HISTORY | |
| Prior to Jun 17, '25 | $350,000 |
|---|---|
| Jun 17, '25 - Jul 8, '25 | $300,000 |
| Jul 8, '25 - Jul 14, '25 | $285,000 |
| Jul 14, '25 - Today | $270,000 |
| ADDITIONAL DETAILS | |
| AIR | Central Air |
|---|---|
| AIR CONDITIONING | Yes |
| AMENITIES | Water |
| AREA | CHI - Avondale |
| BASEMENT | None |
| CONSTRUCTION | Brick |
| FIREPLACE | Yes |
| HEAT | Forced Air, Natural Gas |
| HOA DUES | 332 |
| INTERIOR | Elevator, Granite Counters, Open Floorplan, Walk-In Closet(s) |
| LOT | 0 |
| LOT DIMENSIONS | COMMON |
| PARKING | On Site |
| SEWER | Public Sewer |
| STORIES | 4 |
| TAXES | 5521.58 |
| WATER | Public |
MORTGAGE CALCULATOR
TOTAL MONTHLY PAYMENT
0
P
I
*Estimate only
| SATELLITE VIEW |
| / | |
We respect your online privacy and will never spam you. By submitting this form with your telephone number
you are consenting for Humderto
Garcia to contact you even if your name is on a Federal or State
"Do not call List".
Listed with Fulton Grace Realty
The data relating to real estate for sale on this web site comes in part from the Broker ReciprocitySM Program of MRED. All real estate listings are marked with the Broker ReciprocitySM logo or the MRED Broker ReciprocitySM thumbnail logo (a little black house) and detailed information about them includes the name of the listing brokers.
The broker providing these data believes them to be correct, but advises interested parties to confirm them before relying on them in a purchase decision.
Copyright 2025 MRED. All rights reserved.

The broker providing these data believes them to be correct, but advises interested parties to confirm them before relying on them in a purchase decision.
Copyright 2025 MRED. All rights reserved.
This IDX solution is (c) Diverse Solutions 2025.