|
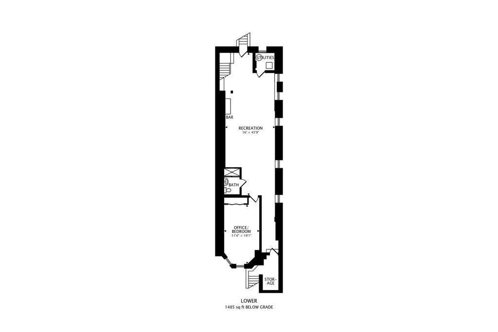
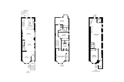
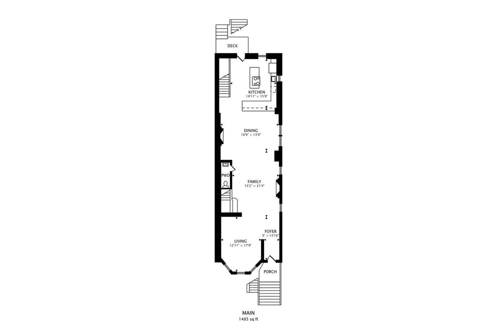
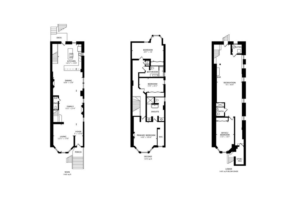
Welcome to 4342 S Forrestville Avenue - A Perfect Blend of Historic Charm and Modern Luxury. Located on a quiet, tree-lined street in the heart of Bronzeville's coveted Oakland neighborhood, this beautifully renovated 4-bedroom, 3.5-bath gated Greystone offers an impressive 4,177 sq. ft of thoughtfully designed living space. The home seamlessly combines timeless architecture with upscale, modern amenities-including a brand-new roof, furnace, air conditioning system, and new dishwasher. The sun-drenched main level features soaring ceilings, rich hardwood floors, metallic porcelain tile, two striking electric fireplaces that add warmth and style to the living space. The open-concept layout flows into a chef's kitchen that impresses with high-end appliances, custom cabinetry, quartz countertops, and an oversized island with built-in cooktop-perfect for entertaining and everyday living. Upstairs, the luxurious primary suite offers a spa-inspired bath with a soaking tub, walk in shower, dual vanity, and striking electric fireplace. Two additional bedrooms provide ample space for family, guests, or a home office. The duplexed lower level expands your living space with a large family room/recreation space, fourth bedroom, and full bath-ideal for entertaining, multi-generational living, or a private guest suite. Enjoy the outdoors on the expansive rear deck overlooking a private, fenced-in backyard. The gated property includes a brick two-car garage and is conveniently located near Lake Michigan, the Green Line, Sip & Savor, Mariano's, Bronzeville Winery, and many al fresco dining options, Gallery Guichard, Harold Washington Cultural Center, Illinois Institute of Technology, Bronzeville Walk of Fame, and Southside Community Art Center. Plus, it's close to excellent schools. Experience secure, stylish, and spacious urban living-schedule your private showing today!
DAYS ON MARKET | 127 | LAST UPDATED | 10/5/2025 |
---|---|---|---|
YEAR BUILT | 1894 | COMMUNITY | CHI - Grand Boulevard |
GARAGE SPACES | 2.0 | COUNTY | Cook |
STATUS | Active | PROPERTY TYPE(S) | Single Family |
PRICE HISTORY | |
Prior to Aug 11, '25 | $750,000 |
---|---|
Aug 11, '25 - Oct 5, '25 | $725,000 |
Oct 5, '25 - Today | $700,000 |
ADDITIONAL DETAILS | |
AIR | Central Air |
---|---|
AIR CONDITIONING | Yes |
APPLIANCES | Dishwasher, Microwave, Range, Refrigerator |
AREA | CHI - Grand Boulevard |
BASEMENT | Finished, Full, Yes |
CONSTRUCTION | Brick, Stone |
FIREPLACE | Yes |
GARAGE | Yes |
HEAT | Forced Air, Natural Gas |
INTERIOR | Cathedral Ceiling(s) |
LOT | 2875 sq ft |
LOT DIMENSIONS | 30 X 125 |
PARKING | On Site, Detached, Garage |
SEWER | Public Sewer |
STYLE | Greystone |
TAXES | 4060 |
MORTGAGE CALCULATOR
TOTAL MONTHLY PAYMENT
0
P
I
*Estimate only
SATELLITE VIEW |
/ | |
We respect your online privacy and will never spam you. By submitting this form with your telephone number
you are consenting for Humderto
Garcia to contact you even if your name is on a Federal or State
"Do not call List".
Listed with @properties Christie's International Real Estate
The data relating to real estate for sale on this web site comes in part from the Broker ReciprocitySM Program of MRED. All real estate listings are marked with the Broker ReciprocitySM logo or the MRED Broker ReciprocitySM thumbnail logo (a little black house) and detailed information about them includes the name of the listing brokers.
The broker providing these data believes them to be correct, but advises interested parties to confirm them before relying on them in a purchase decision.
Copyright 2025 MRED. All rights reserved.

The broker providing these data believes them to be correct, but advises interested parties to confirm them before relying on them in a purchase decision.
Copyright 2025 MRED. All rights reserved.

This IDX solution is (c) Diverse Solutions 2025.