|
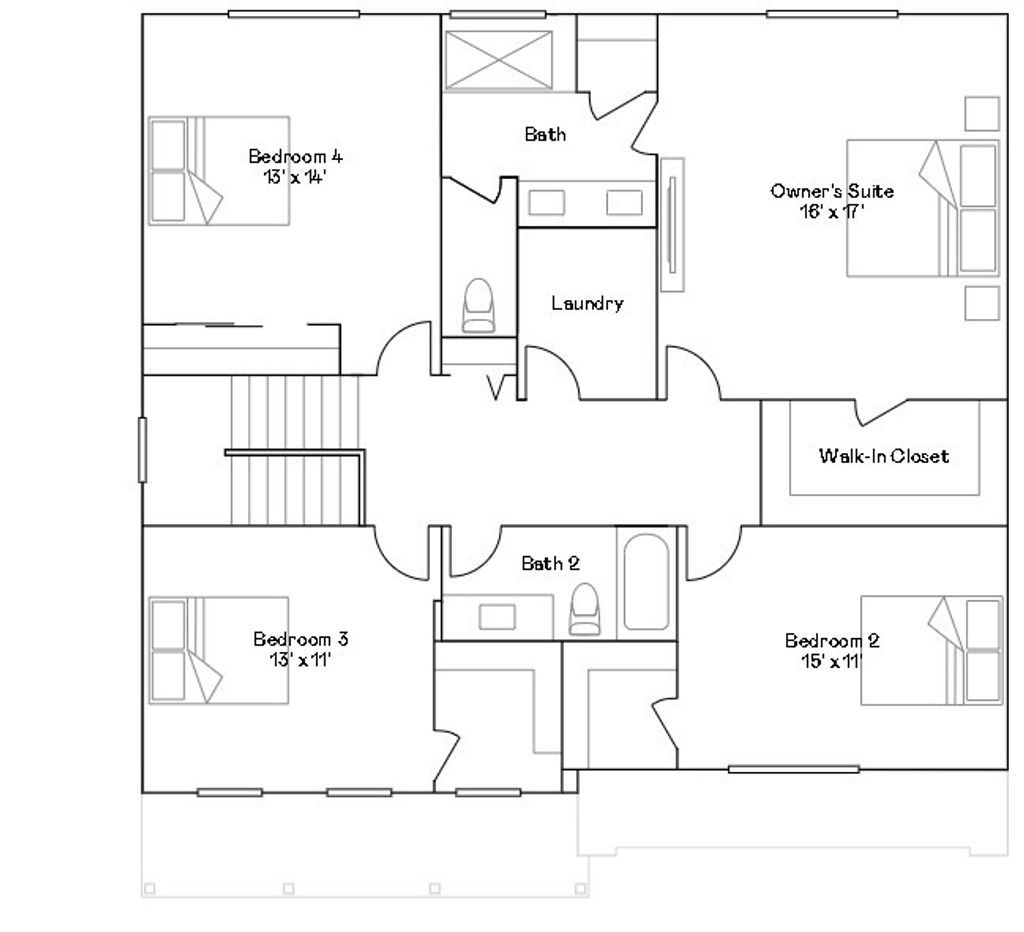
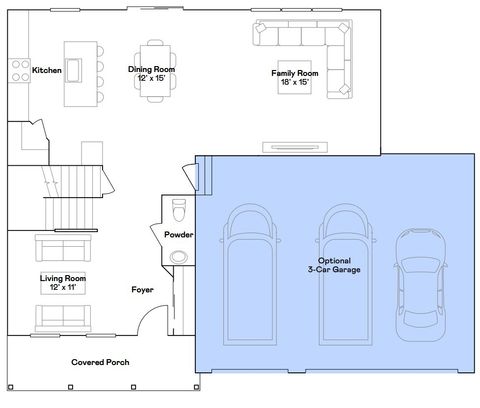
*Pre-construction Pricing and SPECIAL INCENTIVES AVAILABLE!* Exterior will be Aspen White vinyl siding with Old World Ledge - Huron exterior color stone. (pic for reference ONLY) Take in the beauty of the Townsend, a home where sophisticated design and everyday comfort come together seamlessly. This thoughtfully crafted residence features four bedrooms, two full bathrooms, a powder room, and a spacious living room, providing ample space for both relaxation and entertainment. The first floor boasts an airy, open-concept layout, with luxury vinyl plank flooring unifying the kitchen, dining area, and family room. At the heart of the home, the chef-inspired kitchen impresses with sleek quartz countertops, premium stainless-steel appliances, 42"" cabinetry in your choice of finishes, and a large center island perfect for meal prep and gatherings. Upstairs, the owner's suite is a paradise, offering a spacious walk-in closet and a spa-like en-suite bathroom with double sinks and a deluxe shower, creating the perfect space for unwinding. Three additional bedrooms and a full bathroom are located nearby, while a second-floor laundry room adds convenience to everyday living. With its smart design and premium finishes, the Townsend offers a lifestyle that blends comfort, style, and functionality, perfectly suited for the way you live today. *Photos are not this actual home* Whispering Meadows is a community offering new single-family homes with excellent recreational amenities. The community is conveniently located in Yorkville west of Route 47 and north of Cannonball Trail. Amenity-rich community featuring a clubhouse with a party room, fitness center, and swimming pool. Residents can also enjoy two parks with playgrounds, a tot lot, a picnic pavilion, and a baseball field. Scenic trails wind throughout the community, connecting all the amenities for easy access and outdoor enjoyment. Located in the beautiful city of Yorkville, IL. This community blends quaint suburban charm and natural beauty with a central location to major routes, Yorkville offers everything residents need to enjoy family-friendly living. Downtown Yorkville and a commercial corridor off of US-34 offer numerous shopping, dining and entertainment options.
| DAYS ON MARKET | 188 | LAST UPDATED | 12/1/2025 |
|---|---|---|---|
| TRACT | Whispering Meadows | YEAR BUILT | 2025 |
| COMMUNITY | Yorkville / Bristol | GARAGE SPACES | 3.0 |
| COUNTY | Kendall | STATUS | Conditional |
| PROPERTY TYPE(S) | Single Family |
| School District | Yorkville High School |
|---|---|
| Elementary School | Bristol Bay Elementary School |
| Jr. High School | Yorkville Middle School |
| High School | Yorkville High School |
| PRICE HISTORY | |
| Prior to Jun 13, '25 | $487,670 |
|---|---|
| Jun 13, '25 - Jul 3, '25 | $504,695 |
| Jul 3, '25 - Jul 8, '25 | $487,920 |
| Jul 8, '25 - Jul 15, '25 | $487,670 |
| Jul 15, '25 - Jul 29, '25 | $499,990 |
| Jul 29, '25 - Oct 7, '25 | $504,695 |
| Oct 7, '25 - Oct 14, '25 | $478,695 |
| Oct 14, '25 - Oct 22, '25 | $467,945 |
| Oct 22, '25 - Oct 28, '25 | $457,595 |
| Oct 28, '25 - Nov 4, '25 | $447,295 |
| Nov 4, '25 - Today | $444,695 |
| ADDITIONAL DETAILS | |
| AIR | Central Air |
|---|---|
| AIR CONDITIONING | Yes |
| APPLIANCES | Dishwasher, Disposal, Microwave, Range, Stainless Steel Appliance(s) |
| AREA | Yorkville / Bristol |
| BASEMENT | Full, Unfinished, Yes |
| CONSTRUCTION | Stone, Vinyl Siding |
| GARAGE | Attached Garage, Yes |
| HEAT | Forced Air, Natural Gas |
| HOA DUES | 68 |
| LOT | 0 |
| LOT DIMENSIONS | 15098 |
| PARKING | Asphalt, Garage Door Opener, Attached, Garage |
| SEWER | Public Sewer |
| SUBDIVISION | Whispering Meadows |
| WATER | Public |
MORTGAGE CALCULATOR
TOTAL MONTHLY PAYMENT
0
P
I
*Estimate only
| SATELLITE VIEW |
| / | |
We respect your online privacy and will never spam you. By submitting this form with your telephone number
you are consenting for Humderto
Garcia to contact you even if your name is on a Federal or State
"Do not call List".
Listed with HomeSmart Connect LLC
The data relating to real estate for sale on this web site comes in part from the Broker ReciprocitySM Program of MRED. All real estate listings are marked with the Broker ReciprocitySM logo or the MRED Broker ReciprocitySM thumbnail logo (a little black house) and detailed information about them includes the name of the listing brokers.
The broker providing these data believes them to be correct, but advises interested parties to confirm them before relying on them in a purchase decision.
Copyright 2025 MRED. All rights reserved.

The broker providing these data believes them to be correct, but advises interested parties to confirm them before relying on them in a purchase decision.
Copyright 2025 MRED. All rights reserved.
This IDX solution is (c) Diverse Solutions 2025.