|
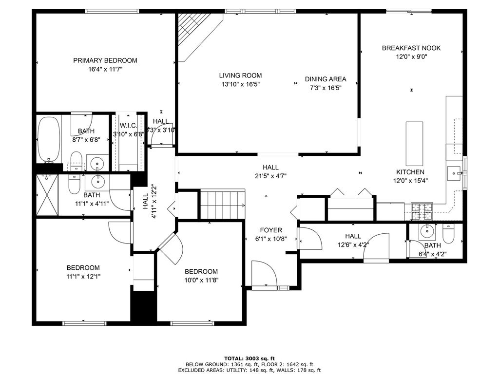
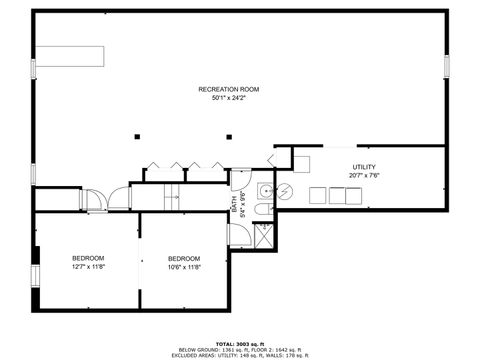
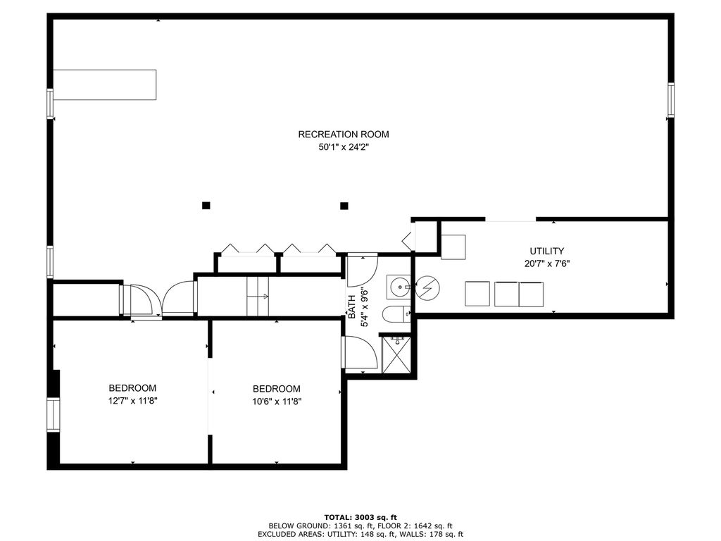
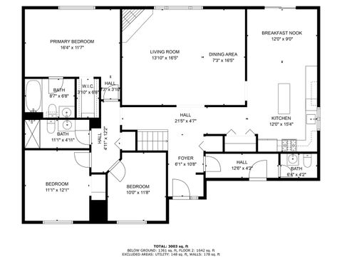
Welcome to 1499 Raven Dr - the opportunity to own a home in the lovely Pheasant Chase neighborhood awaits! Right across the street from Pioneer Elementary School, this charming 4 bed 3.5 bath single story house offers the buyer the opportunity to add their own style to the final product. Sitting at 1,985 square feet, the main floor consists of 3 bedrooms and 2.5 bathrooms, plus kitchen complete with breakfast nook/office space, living & dining rooms. The finished basement boasts a huge recreational space, additional bedroom and full bathroom. This home would make a great flip or would be perfect for an owner looking to do a bit of work. The two car garage and large driveway make it easy for guests to join you in the large backyard perfect for summer gatherings. The layout of the house offers a spacious kitchen / eating area that flows easily into the huge combo dining/living room, big enough for a dining room set and full set of furniture. The living room also features a large entertainment wall and fireplace. Vaulted ceilings make the large space feel even bigger. Primary bedroom has an en-suite bath, and the two secondary bedrooms share a full bath between them. Guest half-bath down the hall from the living room/foyer. Downstairs you'll find an absolutely massive recreational space, big enough for built-in bar, home theater, you name it. The basement also has a large laundry room that houses the new furnace and water heater, as well as another full-sized bathroom attached to both the rec space and fourth full-sized bedroom. A few updates and you've got a whole new house!
DAYS ON MARKET | 129 | LAST UPDATED | 6/6/2025 |
---|---|---|---|
YEAR BUILT | 2000 | COMMUNITY | Bolingbrook |
GARAGE SPACES | 2.0 | COUNTY | Will |
STATUS | Conditional | PROPERTY TYPE(S) | Single Family |
ADDITIONAL DETAILS | |
AIR | Central Air |
---|---|
AIR CONDITIONING | Yes |
AREA | Bolingbrook |
BASEMENT | Full, Unfinished, Yes |
CONSTRUCTION | Vinyl Siding |
FIREPLACE | Yes |
GARAGE | Yes |
HEAT | Electric, Natural Gas |
LOT | 0 |
LOT DIMENSIONS | 4800 |
PARKING | On Site, Attached, Garage |
SEWER | Public Sewer |
TAXES | 5887 |
WATER | Public |
MORTGAGE CALCULATOR
TOTAL MONTHLY PAYMENT
0
P
I
*Estimate only
SATELLITE VIEW |
/ | |
We respect your online privacy and will never spam you. By submitting this form with your telephone number
you are consenting for Humderto
Garcia to contact you even if your name is on a Federal or State
"Do not call List".
Listed with Fulton Grace Realty
The data relating to real estate for sale on this web site comes in part from the Broker ReciprocitySM Program of MRED. All real estate listings are marked with the Broker ReciprocitySM logo or the MRED Broker ReciprocitySM thumbnail logo (a little black house) and detailed information about them includes the name of the listing brokers.
The broker providing these data believes them to be correct, but advises interested parties to confirm them before relying on them in a purchase decision.
Copyright 2025 MRED. All rights reserved.

The broker providing these data believes them to be correct, but advises interested parties to confirm them before relying on them in a purchase decision.
Copyright 2025 MRED. All rights reserved.

This IDX solution is (c) Diverse Solutions 2025.