|
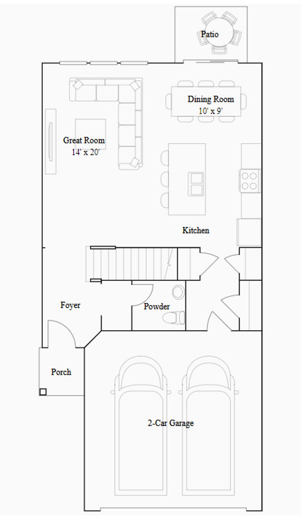
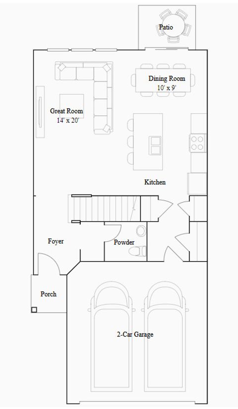
Construction is already underway on this QUICK MOVE IN HOME for fall 2025! BRAND NEW Townhomes at Talamore's clubhouse community! The Marianne model... 3 Bed / 2.1 Bath / 2-Car Garage / 1767 Sq Ft. Traditional, 2-story townhome is spacious and offers a wonderful layout! First floors has an open-concept, easy flowing floorplan. Kitchen opens to the great room, with a separate dining space. Kitchen includes large center island, quartz countertops, large undermount sinks. Plenty of cabinet space and stainless steel GE appliances. 2-panel interior doors and colonist trim. Energy efficient LED lighting... The new homes are built to today's energy codes, and will help you save money on utility bills! The switchback staircase takes you up to 3 spacious bedrooms with 2 full bathrooms upstairs. The main owner's suite has a private bathroom and a walk-in closet. Upstairs laundry! Smart home features like Ring doorbell, digital thermostat... Talamore is builders clubhouse community in the highly desired town of Huntley, servicing the D-158 Huntley Schools! Conveniently located just off of Rte. 47 in the top rated D-158 Huntley schools. This community features an 8000 sq ft clubhouse with a fitness center, game room, kiddie pool, spray and play area and a swimming pool with an 18-foot water slide, fishing pond, parks on-site, and more! Come experience Talamore living today and see why this community is the place to be! Pics are of previously built home, NOT actual home. Home/model is not built yet. Actual finishes and colors may vary.
DAYS ON MARKET | 125 | LAST UPDATED | 6/28/2025 |
---|---|---|---|
TRACT | Talamore | YEAR BUILT | 2024 |
COMMUNITY | Huntley | GARAGE SPACES | 2.0 |
COUNTY | McHenry | STATUS | Conditional |
PROPERTY TYPE(S) | Condo/Townhouse/Co-Op |
School District | Huntley High School |
---|---|
Jr. High School | Marlowe Middle School |
High School | Huntley High School |
PRICE HISTORY | |
Prior to Jun 12, '25 | $369,900 |
---|---|
Jun 12, '25 - Jun 18, '25 | $359,900 |
Jun 18, '25 - Today | $357,705 |
ADDITIONAL DETAILS | |
AIR | Central Air |
---|---|
AIR CONDITIONING | Yes |
AMENITIES | Insurance, Snow Removal |
AREA | Huntley |
BASEMENT | None |
CONSTRUCTION | Stone, Vinyl Siding |
GARAGE | Yes |
HEAT | Natural Gas |
HOA DUES | 120 |
INTERIOR | Entrance Foyer |
LOT | 0 |
LOT DIMENSIONS | 30X60 |
PARKING | Asphalt, On Site, Attached, Garage |
SEWER | Public Sewer |
STORIES | 2 |
SUBDIVISION | Talamore |
WATER | Public |
MORTGAGE CALCULATOR
TOTAL MONTHLY PAYMENT
0
P
I
*Estimate only
SATELLITE VIEW |
/ | |
We respect your online privacy and will never spam you. By submitting this form with your telephone number
you are consenting for Humderto
Garcia to contact you even if your name is on a Federal or State
"Do not call List".
Listed with 103 Realty LLC
The data relating to real estate for sale on this web site comes in part from the Broker ReciprocitySM Program of MRED. All real estate listings are marked with the Broker ReciprocitySM logo or the MRED Broker ReciprocitySM thumbnail logo (a little black house) and detailed information about them includes the name of the listing brokers.
The broker providing these data believes them to be correct, but advises interested parties to confirm them before relying on them in a purchase decision.
Copyright 2025 MRED. All rights reserved.

The broker providing these data believes them to be correct, but advises interested parties to confirm them before relying on them in a purchase decision.
Copyright 2025 MRED. All rights reserved.

This IDX solution is (c) Diverse Solutions 2025.