|
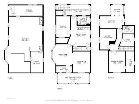
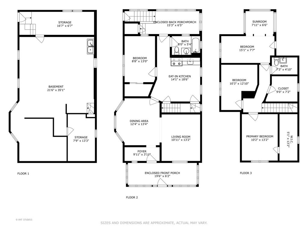
Amazing opportunity! This charming vintage home featuring front and back enclosed porches sits on an oversized fenced partially shaded lot with mature trees in a great walkable Berwyn location. The enclosed front porch is the perfect spot to relax or gather with family or friends. Original oak and glass front door open to entry foyer. Hardwood floors have been protected under carpet in living room, dining room and foyer. The eat-in kitchen features two large windows an oak buffet hutch with plenty of space for a table or kitchen island. Bring your renovation ideas, this kitchen could be expanded into the adjacent first floor bedroom. Most of the windows throughout are newer. First floor full bath is located off kitchen hall. Upstairs features three good size bedrooms with hardwood floors and large walk in closets. Don't miss the sun room off the back bedroom. The half bath upstairs located next to another large closet could be expanded into a new full bathroom or ensuite. If you love the outdoors look no further, this is it! Plenty of room for outdoor living, entertaining and gardening. There is an existing patio with plenty of space for a table or outdoor furniture and BBQ. The basement is full and unfinished. Bring your ideas into this home and make it your own! Imagine living in this beautiful spacious home in a fantastic urban walk to everything location! Shopping, restaurants, live music are just steps away. Easy access to I-290, commuter bus and train. This home is being sold As-Is. Buyer will be responsible for Berwyn Compliance Inspection items. The Inspection has been completed and report is available for buyer review.
DAYS ON MARKET | 109 | LAST UPDATED | 10/6/2025 |
---|---|---|---|
YEAR BUILT | 1906 | COMMUNITY | Berwyn |
GARAGE SPACES | 2.0 | COUNTY | Cook |
STATUS | Conditional | PROPERTY TYPE(S) | Single Family |
School District | J Sterling Morton East High Scho |
---|---|
Elementary School | Jefferson Elementary School |
Jr. High School | Lincoln Middle School |
High School | J Sterling Morton East High Scho |
PRICE HISTORY | |
Prior to Aug 27, '25 | $325,000 |
---|---|
Aug 27, '25 - Today | $299,900 |
ADDITIONAL DETAILS | |
AIR | None |
---|---|
APPLIANCES | Range |
AREA | Berwyn |
BASEMENT | Full, Unfinished, Walk-Out Access, Yes |
CONSTRUCTION | Frame |
GARAGE | Yes |
HEAT | Hot Water |
INTERIOR | High Ceilings |
LOT | 0 |
LOT DIMENSIONS | 6850 |
PARKING | Garage Door Opener, On Site, Detached, Garage |
SEWER | Public Sewer |
TAXES | 370.99 |
MORTGAGE CALCULATOR
TOTAL MONTHLY PAYMENT
0
P
I
*Estimate only
SATELLITE VIEW |
/ | |
We respect your online privacy and will never spam you. By submitting this form with your telephone number
you are consenting for Humderto
Garcia to contact you even if your name is on a Federal or State
"Do not call List".
Listed with Kale Realty
The data relating to real estate for sale on this web site comes in part from the Broker ReciprocitySM Program of MRED. All real estate listings are marked with the Broker ReciprocitySM logo or the MRED Broker ReciprocitySM thumbnail logo (a little black house) and detailed information about them includes the name of the listing brokers.
The broker providing these data believes them to be correct, but advises interested parties to confirm them before relying on them in a purchase decision.
Copyright 2025 MRED. All rights reserved.

The broker providing these data believes them to be correct, but advises interested parties to confirm them before relying on them in a purchase decision.
Copyright 2025 MRED. All rights reserved.

This IDX solution is (c) Diverse Solutions 2025.