|
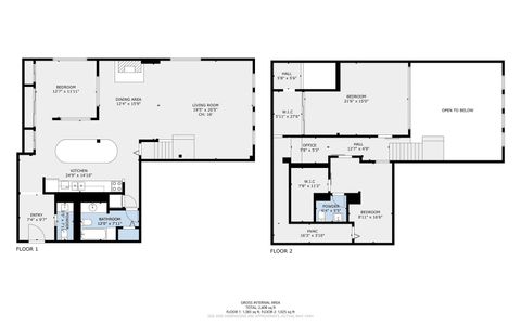
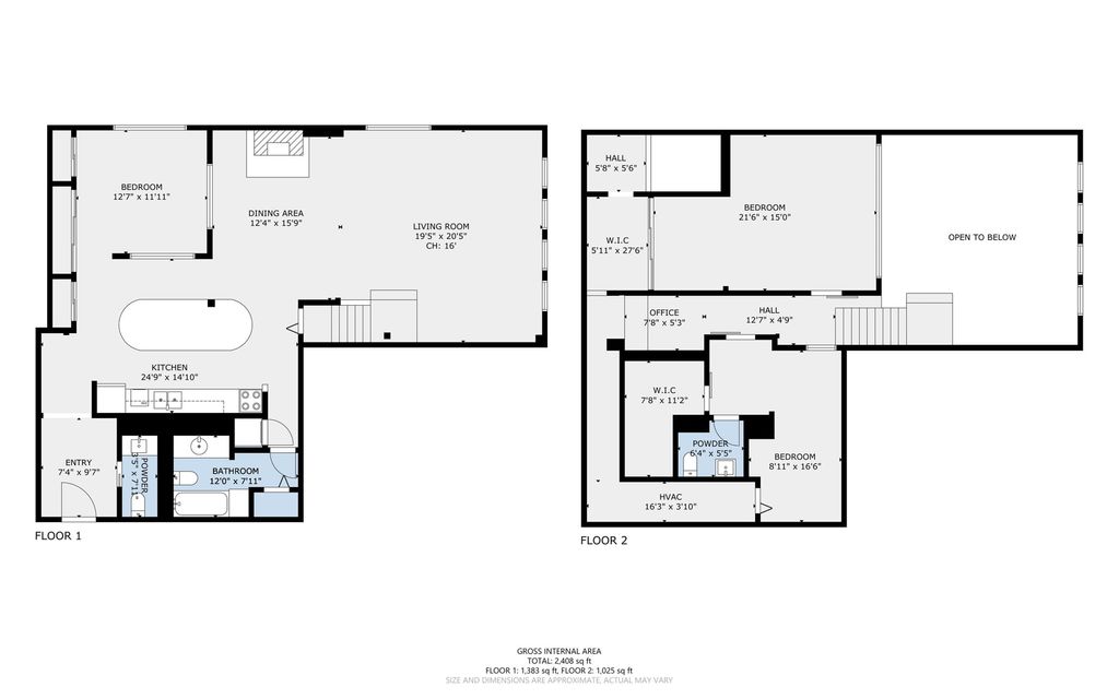
Showstopping and unique 2400 sf penthouse timber and brick loft, situated in the heart of Printers Row! Recently upgraded and remodeled duplex unit in the highly sought after Mergenthaler building. First level features modern kitchen with open shelving, concrete and quartz counter tops, Wolf, Viking and Miele appliances, and a nice dining area with electric fireplace. Cleverly designed primary bedroom with stunning windows, great closet space. The living room area has 17 ft ceiling height and amazing views. The second level features a second bedroom, an office, a half bath, a study area and fabulous closet space. Intelligent and beautiful design. Unit faces west and south. Laundry in unit, 1 full and two half baths, central air, storage. Just blocks to the Lakefront & Grant Park, the State Street Shopping District and the Cultural Mile. Unit has ample space for entertaining. Great public transportation. Building has common area landscaped garden and grill area on south side of building. Building rules allow cats but no dogs. Assessment includes heat, water, internet, snow removal and exterior maintenance, scavenger service and common area insurance. Welcome!
| DAYS ON MARKET | 188 | LAST UPDATED | 9/23/2025 |
|---|---|---|---|
| YEAR BUILT | 1893 | COMMUNITY | CHI - Loop |
| COUNTY | Cook | STATUS | Active |
| PROPERTY TYPE(S) | Condo/Townhouse/Co-Op |
| PRICE HISTORY | |
| Prior to Aug 8, '25 | $580,000 |
|---|---|
| Aug 8, '25 - Sep 23, '25 | $559,000 |
| Sep 23, '25 - Today | $535,000 |
| ADDITIONAL DETAILS | |
| AIR | Central Air |
|---|---|
| AIR CONDITIONING | Yes |
| AMENITIES | Insurance, Internet, Snow Removal, Water |
| AREA | CHI - Loop |
| BASEMENT | None |
| CONSTRUCTION | Brick |
| FIREPLACE | Yes |
| HEAT | Steam |
| HOA DUES | 1080 |
| INTERIOR | Beamed Ceilings, Built-in Features, Elevator, Open Floorplan, Storage, Walk-In Closet(s) |
| LOT | 0 |
| LOT DIMENSIONS | CONDO |
| SEWER | Public Sewer |
| STORIES | 6 |
| TAXES | 6119 |
| WATER | Public |
MORTGAGE CALCULATOR
TOTAL MONTHLY PAYMENT
0
P
I
*Estimate only
| SATELLITE VIEW |
| / | |
We respect your online privacy and will never spam you. By submitting this form with your telephone number
you are consenting for Humderto
Garcia to contact you even if your name is on a Federal or State
"Do not call List".
Listed with Meliora Real Estate Group LLC
The data relating to real estate for sale on this web site comes in part from the Broker ReciprocitySM Program of MRED. All real estate listings are marked with the Broker ReciprocitySM logo or the MRED Broker ReciprocitySM thumbnail logo (a little black house) and detailed information about them includes the name of the listing brokers.
The broker providing these data believes them to be correct, but advises interested parties to confirm them before relying on them in a purchase decision.
Copyright 2025 MRED. All rights reserved.

The broker providing these data believes them to be correct, but advises interested parties to confirm them before relying on them in a purchase decision.
Copyright 2025 MRED. All rights reserved.
This IDX solution is (c) Diverse Solutions 2025.