|
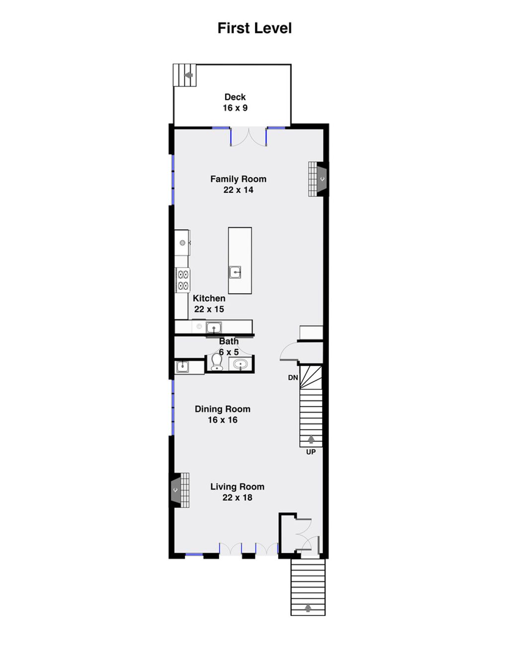
Overlooking iconic Humboldt Park, this custom-built, four-level home is where elegance meets everyday comfort. Set on an extra-wide, extra-deep lot, it's designed for both lively entertaining and quiet retreats with generous space for gatherings and intimate corners for slowing down. Step inside to soaring 10-foot ceilings, oak-stained hardwood floors, and beautifully crafted details-wainscoting, crown molding, and 8-foot doors throughout. A living room with French doors opens to stunning park views, anchored by a marble fireplace. The formal dining room and full wet bar make hosting seamless, while the chef's kitchen-with double cabinetry, quartz counters, two sinks, and a desk nook-flows into a spacious family room and backyard deck. Upstairs, the massive primary suite feels like a private retreat, complete with fireplace, French doors, and a spa-like bath featuring limestone radiant-heated floors, a soaking tub, and a steam shower wrapped in stone and marble. Two more large bedrooms, a stylish second bath, and a side-by-side laundry room round out this level. The lower level offers an expansive media room with heated radiant floors, marble fireplace, wet bar, and two additional bedrooms-plus a second laundry area and extra storage. At the top? A showstopping penthouse rooftop deck with wet bar and sweeping views of Humboldt Park's tree canopy-perfect for unforgettable summer nights and 4th of July fireworks. Other highlights: Sonos in-ceiling speakers, four fireplaces, custom closets, spa baths, dual HVAC with 3-zone control, and an oversized 2.5-car garage. Live across from the park's beach, the 606 trail, and tennis courts, and walk to Wicker Park, Logan Square, California Ave's shops and restaurant row. Truly a one-of-a-kind home in a location that has it all-a MUST SEE.
| DAYS ON MARKET | 140 | LAST UPDATED | 10/10/2025 |
|---|---|---|---|
| YEAR BUILT | 2018 | COMMUNITY | CHI - West Town |
| GARAGE SPACES | 2.5 | COUNTY | Cook |
| STATUS | Active | PROPERTY TYPE(S) | Single Family |
| PRICE HISTORY | |
| Prior to Oct 10, '25 | $1,549,000 |
|---|---|
| Oct 10, '25 - Today | $1,499,999 |
| ADDITIONAL DETAILS | |
| AIR | Central Air, Dual, Zoned |
|---|---|
| AIR CONDITIONING | Yes |
| APPLIANCES | Bar Fridge, Cooktop, Dishwasher, Disposal, Double Oven, Dryer, Electric Oven, Microwave, Oven, Range Hood, Stainless Steel Appliance(s), Washer, Wine Refrigerator |
| AREA | CHI - West Town |
| BASEMENT | Daylight, Finished, Full, Yes |
| CONSTRUCTION | Brick |
| EXTERIOR | Barbecue, Lighting, Outdoor Grill |
| FIREPLACE | Yes |
| GARAGE | Yes |
| HEAT | Forced Air, Natural Gas, Radiant |
| INTERIOR | Pantry, Walk-In Closet(s) |
| LOT | 3755 sq ft |
| LOT DESCRIPTION | Garden, Landscaped, Views |
| LOT DIMENSIONS | 27X140 |
| PARKING | Concrete, Garage Door Opener, Garage, On Site, Detached |
| SEWER | Public Sewer |
| STYLE | Contemporary |
| TAXES | 18555 |
| VIEW | Yes |
| VIEW DESCRIPTION | Water |
| WATER | Public |
| WATERFRONT DESCRIPTION | Lake Front, Pond |
MORTGAGE CALCULATOR
TOTAL MONTHLY PAYMENT
0
P
I
*Estimate only
| SATELLITE VIEW |
| / | |
We respect your online privacy and will never spam you. By submitting this form with your telephone number
you are consenting for Humderto
Garcia to contact you even if your name is on a Federal or State
"Do not call List".
Listed with Betancourt Realty
The data relating to real estate for sale on this web site comes in part from the Broker ReciprocitySM Program of MRED. All real estate listings are marked with the Broker ReciprocitySM logo or the MRED Broker ReciprocitySM thumbnail logo (a little black house) and detailed information about them includes the name of the listing brokers.
The broker providing these data believes them to be correct, but advises interested parties to confirm them before relying on them in a purchase decision.
Copyright 2025 MRED. All rights reserved.

The broker providing these data believes them to be correct, but advises interested parties to confirm them before relying on them in a purchase decision.
Copyright 2025 MRED. All rights reserved.
This IDX solution is (c) Diverse Solutions 2025.