|
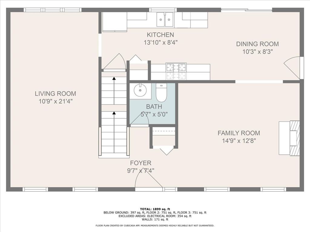
Welcome to 133 Autumn Ridge Dr in Seasons Ridge, a beautifully updated home offering 4 spacious bedrooms and 2.1 bathrooms. Step inside to gleaming hardwood floors and a modern kitchen featuring quartz countertops and all new appliances (2022). Enjoy peace of mind with recent upgrades including new windows throughout 2022, a new furnace (2023), air conditioner (2023), and water heater (2016). The upstairs rooms feature newly installed carpet as of 2024. The finished basement offers a spacious rec room and an additional flex room perfect for an exercise room or office. The fireplace brings a cozy and inviting atmosphere to the Family Room. Outside, the large private yard is perfect for entertaining, complete with a deck and cozy firepit. The exterior has been meticulously cared for, with a new roof (2023), gutters (2023), and siding (2023). Additional highlights include a new washing machine (2023), making this home move-in ready and worry-free. Experience comfort and style in this exceptional property! Fantastic Oswego Schools! Close to shopping and dining, easy access to highways-schedule your visit today!
| DAYS ON MARKET | 131 | LAST UPDATED | 10/29/2025 |
|---|---|---|---|
| TRACT | Seasons Ridge | YEAR BUILT | 1991 |
| COMMUNITY | Montgomery | GARAGE SPACES | 2.0 |
| COUNTY | Kendall | STATUS | Conditional |
| PROPERTY TYPE(S) | Single Family |
| ADDITIONAL DETAILS | |
| AIR | Ceiling Fan(s), Central Air |
|---|---|
| AIR CONDITIONING | Yes |
| APPLIANCES | Dishwasher, Disposal, Dryer, Freezer, Microwave, Range, Refrigerator, Stainless Steel Appliance(s), Washer |
| AREA | Montgomery |
| BASEMENT | Full, Partially Finished, Sump Pump, Yes |
| CONSTRUCTION | Vinyl Siding |
| EXTERIOR | Fire Pit |
| FIREPLACE | Yes |
| GARAGE | Attached Garage, Yes |
| HEAT | Forced Air, Natural Gas |
| INTERIOR | Entrance Foyer, Vaulted Ceiling(s), Walk-In Closet(s) |
| LOT | 0.3 acre(s) |
| LOT DIMENSIONS | 70 X 203.61 X 79.76 X 165.34 |
| PARKING | Asphalt, Garage Door Opener, On Site, Attached, Garage |
| SEWER | Public Sewer |
| STYLE | Traditional |
| SUBDIVISION | Seasons Ridge |
| TAXES | 7181 |
| WATER | Public |
MORTGAGE CALCULATOR
TOTAL MONTHLY PAYMENT
0
P
I
*Estimate only
| SATELLITE VIEW |
| / | |
We respect your online privacy and will never spam you. By submitting this form with your telephone number
you are consenting for Humderto
Garcia to contact you even if your name is on a Federal or State
"Do not call List".
Listed with Century 21 Integra
The data relating to real estate for sale on this web site comes in part from the Broker ReciprocitySM Program of MRED. All real estate listings are marked with the Broker ReciprocitySM logo or the MRED Broker ReciprocitySM thumbnail logo (a little black house) and detailed information about them includes the name of the listing brokers.
The broker providing these data believes them to be correct, but advises interested parties to confirm them before relying on them in a purchase decision.
Copyright 2025 MRED. All rights reserved.

The broker providing these data believes them to be correct, but advises interested parties to confirm them before relying on them in a purchase decision.
Copyright 2025 MRED. All rights reserved.
This IDX solution is (c) Diverse Solutions 2025.