|
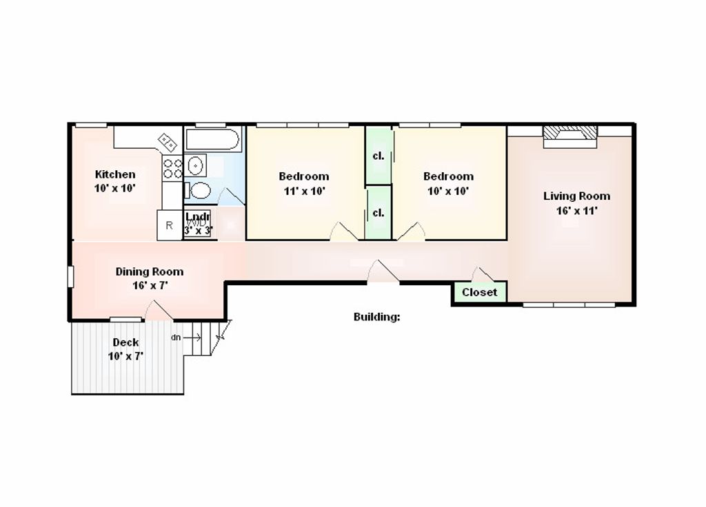
Bright and spacious East Albany Park top floor 2 bed/1 bath condo at the Manors of Leland on a quiet tree lined street. Kitchen w/granite countertops, full tiled backsplash & stainless steel appliances. Large living room features decorative fireplace & charming built-in cabinets. Separate dining room with access to a shared deck. Two nice sized bedrooms with large closets. Ceramic tile bath, hardwood floors, three ceiling fans, full-size front-loading washer/dryer. Private storage S-6 in basement & shared courtyard. Heat & water included in assessments. Amazing location is close to Ravenswood Manor, Lincoln Square, restaurants & shopping including Starbucks, Noon O Kabab, First Slice, and Khepri Cafe, Kedzie Brown Line stop, Horner Park & the Chicago River. Pet & investor friendly building! Deeded parking space P-3 available for $15,000.
DAYS ON MARKET | 95 | LAST UPDATED | 7/8/2025 |
---|---|---|---|
TRACT | Manors of Leland | YEAR BUILT | 0 |
COMMUNITY | CHI - Albany Park | COUNTY | Cook |
STATUS | Active | PROPERTY TYPE(S) | Condo/Townhouse/Co-Op |
School District | Roosevelt High School |
---|---|
Elementary School | Hibbard Elementary School |
Jr. High School | Albany Park Multicultural Elemen |
High School | Roosevelt High School |
ADDITIONAL DETAILS | |
AIR | Ceiling Fan(s), Wall Unit(s) |
---|---|
AIR CONDITIONING | Yes |
AMENITIES | Insurance, Snow Removal, Water |
APPLIANCES | Dishwasher, Dryer, Freezer, Microwave, Range, Refrigerator, Washer |
AREA | CHI - Albany Park |
BASEMENT | None |
CONSTRUCTION | Brick |
FIREPLACE | Yes |
HEAT | Hot Water, Natural Gas, Radiant, Steam |
HOA DUES | 444 |
INTERIOR | Storage |
LOT | 0 |
LOT DIMENSIONS | COMMON |
PARKING | On Site, Deeded |
SEWER | Public Sewer |
STORIES | 3 |
SUBDIVISION | Manors of Leland |
TAXES | 3108.94 |
MORTGAGE CALCULATOR
TOTAL MONTHLY PAYMENT
0
P
I
*Estimate only
SATELLITE VIEW |
/ | |
We respect your online privacy and will never spam you. By submitting this form with your telephone number
you are consenting for Humderto
Garcia to contact you even if your name is on a Federal or State
"Do not call List".
Listed with Keller Williams Preferred Realty
The data relating to real estate for sale on this web site comes in part from the Broker ReciprocitySM Program of MRED. All real estate listings are marked with the Broker ReciprocitySM logo or the MRED Broker ReciprocitySM thumbnail logo (a little black house) and detailed information about them includes the name of the listing brokers.
The broker providing these data believes them to be correct, but advises interested parties to confirm them before relying on them in a purchase decision.
Copyright 2025 MRED. All rights reserved.

The broker providing these data believes them to be correct, but advises interested parties to confirm them before relying on them in a purchase decision.
Copyright 2025 MRED. All rights reserved.

This IDX solution is (c) Diverse Solutions 2025.