|
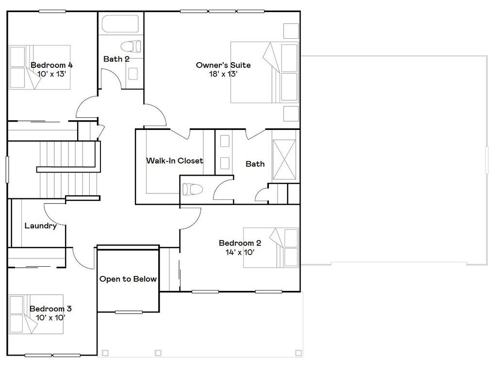
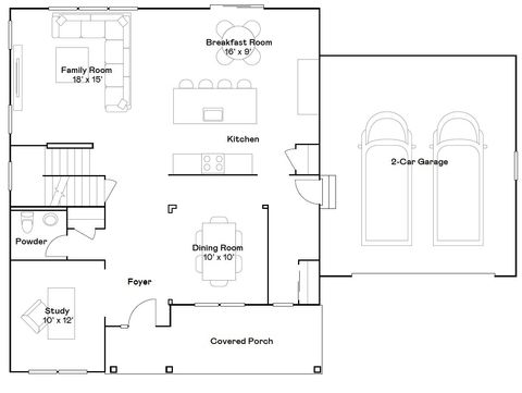
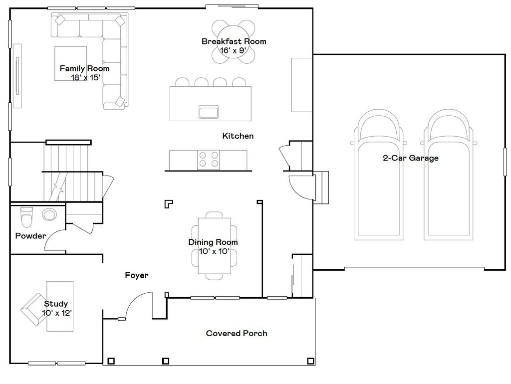
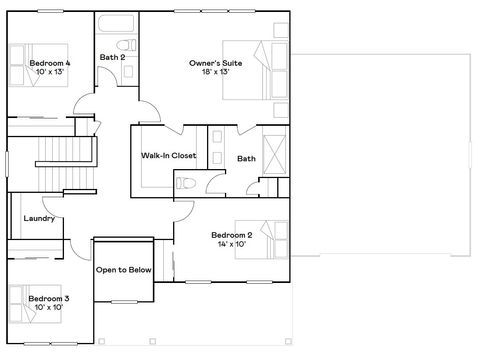
Exterior will be James Hardie Deep Ocean color siding with Manor House exterior color brick. (pic for reference ONLY) Introducing the Auburn model-a thoughtfully crafted two-story home that combines timeless elegance with everyday practicality. This spacious residence features four well-appointed bedrooms, two full baths, and a convenient powder room-ideal for family living and hosting guests. A private study and formal dining room flank the welcoming foyer, offering versatile spaces for both work and special gatherings. At the heart of the home, the kitchen-with its oversized center island, premium cabinetry, and sleek countertops-flows effortlessly into the breakfast room and the adjacent family room, creating a seamless open-concept layout perfect for daily life and entertaining. Upstairs, the owner's suite provides a serene retreat, complete with a generous walk-in closet and a spacious en-suite bathroom. Three additional bedrooms share the level, along with a second-floor laundry room-adding layout flexibility and modern convenience. With its thoughtful floor plan-formal living and dining areas, a dedicated study, open yet distinct kitchen-family spaces, and a well-equipped upper level-the Auburn model offers a perfect balance of sophistication and functional design. It's a brilliant option for today's modern families. *Photos are not this actual home* This is a corner homesite. This community features an array of great amenities, including a splash park, tot lot, picnic area and meandering multi-use trails. Situated on the Fox River, downtown Elgin is filled with historic buildings, shops and restaurants for families to enjoy. Spend time along the Elgin Riverwalk, partake in thrilling games at Grand Victoria Casino and attend lively festivities and events throughout the year.
DAYS ON MARKET | 98 | LAST UPDATED | 10/1/2025 |
---|---|---|---|
TRACT | Ponds of Stony Creek | YEAR BUILT | 2025 |
COMMUNITY | Elgin | GARAGE SPACES | 2.0 |
COUNTY | Kane | STATUS | Active |
PROPERTY TYPE(S) | Single Family |
School District | St Charles North High School |
---|---|
Elementary School | Ferson Creek Elementary School |
Jr. High School | Thompson Middle School |
High School | St Charles North High School |
PRICE HISTORY | |
Prior to Jul 8, '25 | $599,820 |
---|---|
Jul 8, '25 - Jul 15, '25 | $599,570 |
Jul 15, '25 - Jul 29, '25 | $589,900 |
Jul 29, '25 - Aug 26, '25 | $582,970 |
Aug 26, '25 - Sep 3, '25 | $576,020 |
Sep 3, '25 - Sep 9, '25 | $572,420 |
Sep 9, '25 - Oct 1, '25 | $565,220 |
Oct 1, '25 - Today | $556,670 |
ADDITIONAL DETAILS | |
AIR | Central Air |
---|---|
AIR CONDITIONING | Yes |
AMENITIES | Insurance |
APPLIANCES | Cooktop, Dishwasher, Disposal, Microwave, Oven, Range Hood, Stainless Steel Appliance(s) |
AREA | Elgin |
BASEMENT | Full, Unfinished, Yes |
CONSTRUCTION | Brick, Other |
GARAGE | Yes |
HEAT | Forced Air, Natural Gas |
HOA DUES | 500 |
LOT | 0 |
LOT DIMENSIONS | 14000 |
PARKING | Asphalt, Garage Door Opener, On Site, Attached, Garage |
SEWER | Public Sewer |
SUBDIVISION | Ponds of Stony Creek |
WATER | Public |
MORTGAGE CALCULATOR
TOTAL MONTHLY PAYMENT
0
P
I
*Estimate only
SATELLITE VIEW |
/ | |
We respect your online privacy and will never spam you. By submitting this form with your telephone number
you are consenting for Humderto
Garcia to contact you even if your name is on a Federal or State
"Do not call List".
Listed with HomeSmart Connect LLC
The data relating to real estate for sale on this web site comes in part from the Broker ReciprocitySM Program of MRED. All real estate listings are marked with the Broker ReciprocitySM logo or the MRED Broker ReciprocitySM thumbnail logo (a little black house) and detailed information about them includes the name of the listing brokers.
The broker providing these data believes them to be correct, but advises interested parties to confirm them before relying on them in a purchase decision.
Copyright 2025 MRED. All rights reserved.

The broker providing these data believes them to be correct, but advises interested parties to confirm them before relying on them in a purchase decision.
Copyright 2025 MRED. All rights reserved.

This IDX solution is (c) Diverse Solutions 2025.