|
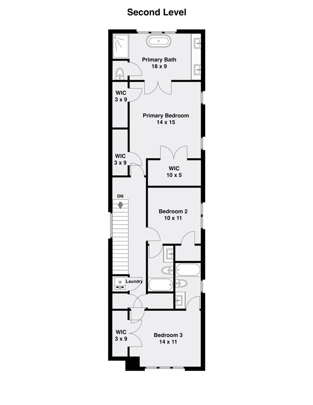
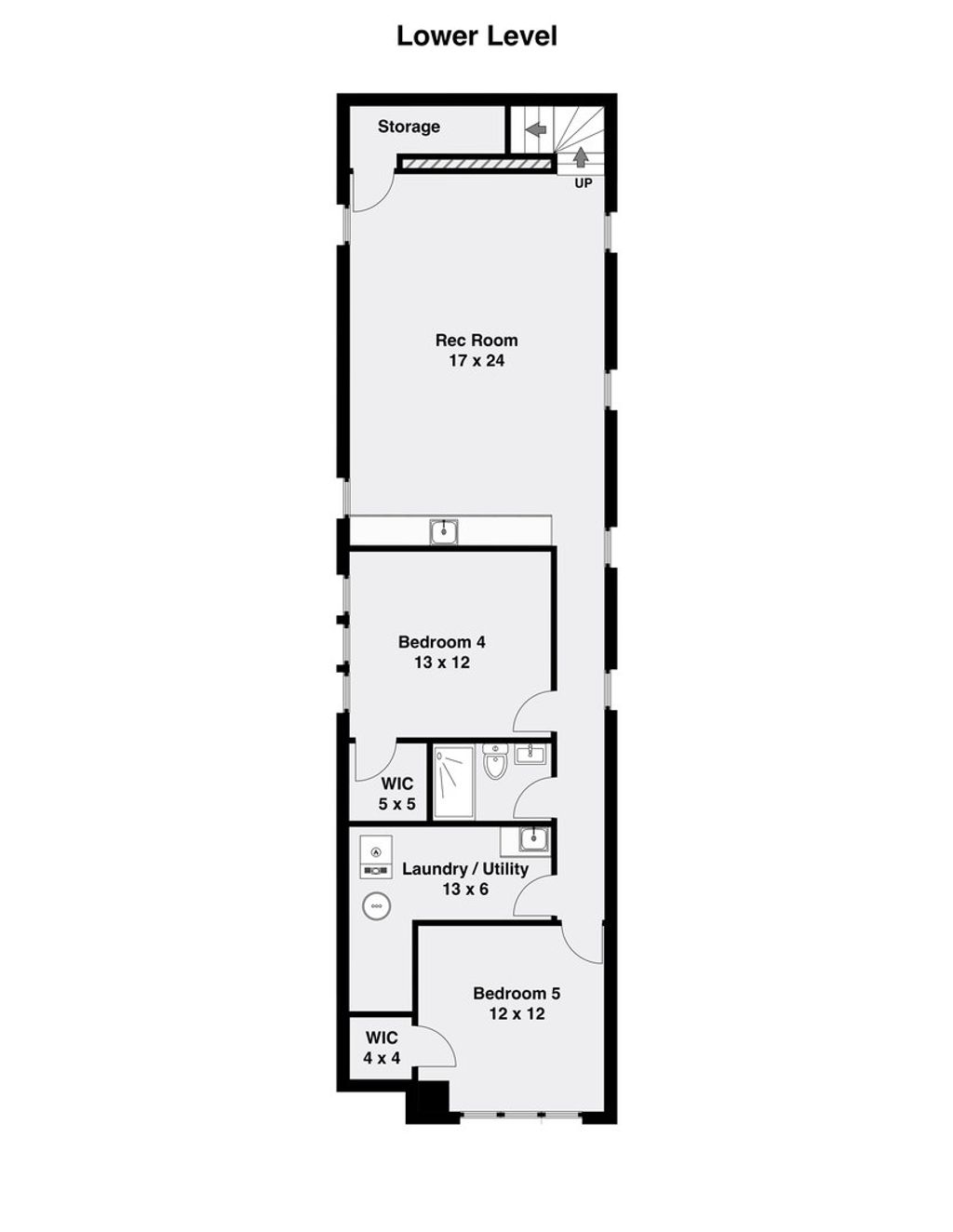
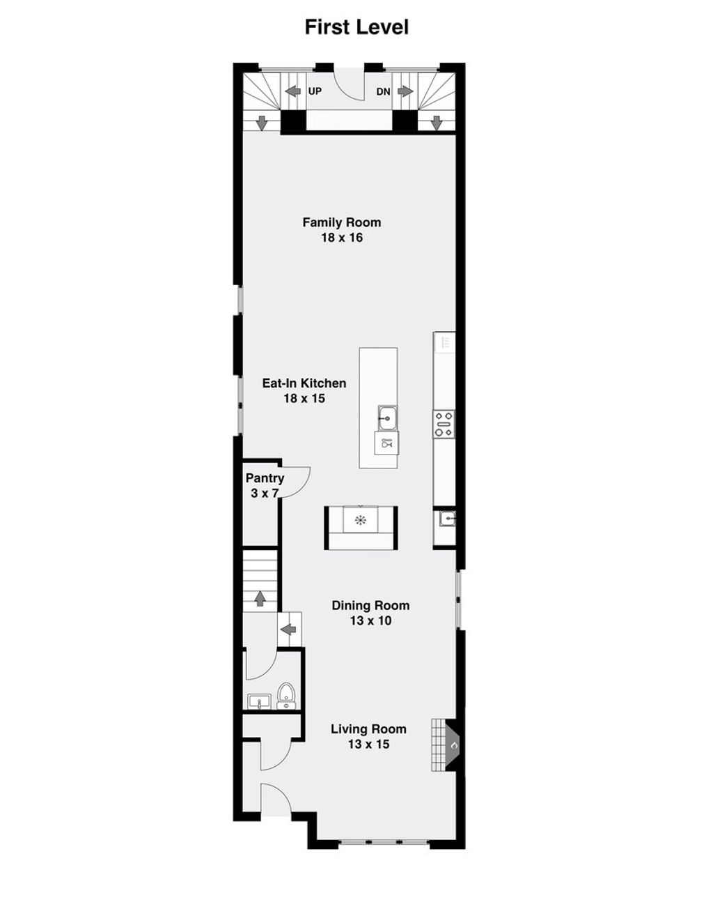
Impeccable 5 bedroom, 4.1 bath new construction single-family home steps from Clark Street in Andersonville. Spacious floor plan featuring design forward interiors with great consideration given to fixtures and finish materials. Open concept living/dining area with direct vent gas fireplace and beautiful oak hardwood flooring. Chef quality eat-in kitchen perfect for entertaining features Sub-Zero/Thermador appliances, oversized island, and butler pantry. Adjoining family room with ample windows overlooking the backyard. Rear mudroom with built-in storage. Primary bedroom with tons of closet space and spa like ensuite bath. Finished lower level includes spacious recreation room with full wet bar, two bedrooms, full bath, utilities/second laundry hookup, and radiant heated LVP flooring throughout. Vaulted ceilings in upper bedrooms, skylights, 8' doors, statement lighting, heated flooring, custom closets, and more! Extra long lot with back patio and a detached two-car garage with roof deck offer plenty of outdoor space. Close to restaurants, entertainment, shopping, public transportation, parks, and other great neighborhoods. Exceptional quality home by top developer. Photos are from the completed home next door which is the same floor plan and comparable finishes.
| DAYS ON MARKET | 116 | LAST UPDATED | 9/3/2025 |
|---|---|---|---|
| YEAR BUILT | 2025 | COMMUNITY | CHI - Uptown |
| GARAGE SPACES | 2.0 | COUNTY | Cook |
| STATUS | Active | PROPERTY TYPE(S) | Single Family |
| ADDITIONAL DETAILS | |
| AIR | Central Air |
|---|---|
| AIR CONDITIONING | Yes |
| APPLIANCES | Cooktop, Dishwasher, Disposal, Dryer, Humidifier, Microwave, Oven, Range Hood, Refrigerator, Washer, Wine Refrigerator |
| AREA | CHI - Uptown |
| BASEMENT | Finished, Full, Sump Pump, Yes |
| CONSTRUCTION | Fiber Cement |
| FIREPLACE | Yes |
| GARAGE | Yes |
| HEAT | Forced Air, Natural Gas |
| INTERIOR | Cathedral Ceiling(s), Walk-In Closet(s), Wet Bar |
| LOT | 0 |
| LOT DIMENSIONS | 25 X 129 |
| PARKING | Garage Door Opener, On Site, Detached, Garage |
| SEWER | Public Sewer |
| WATER | Public |
MORTGAGE CALCULATOR
TOTAL MONTHLY PAYMENT
0
P
I
*Estimate only
| SATELLITE VIEW |
| / | |
We respect your online privacy and will never spam you. By submitting this form with your telephone number
you are consenting for Humderto
Garcia to contact you even if your name is on a Federal or State
"Do not call List".
Listed with Jameson Sotheby's Intl Realty
The data relating to real estate for sale on this web site comes in part from the Broker ReciprocitySM Program of MRED. All real estate listings are marked with the Broker ReciprocitySM logo or the MRED Broker ReciprocitySM thumbnail logo (a little black house) and detailed information about them includes the name of the listing brokers.
The broker providing these data believes them to be correct, but advises interested parties to confirm them before relying on them in a purchase decision.
Copyright 2025 MRED. All rights reserved.

The broker providing these data believes them to be correct, but advises interested parties to confirm them before relying on them in a purchase decision.
Copyright 2025 MRED. All rights reserved.
This IDX solution is (c) Diverse Solutions 2025.