|
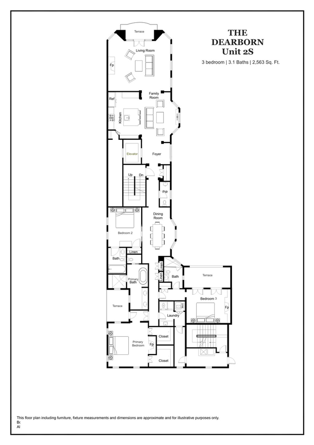
Eight new construction, exclusive, full-floor residences offer a refined lifestyle that blends eclectic interiors with unparalleled luxury and an estimated delivery date of 12 months. Discover an extraordinary opportunity to live boldly at 1447 N. Dearborn, an enduring Gold Coast icon. Nestled on a quiet street, these residences overlook treelined and courtyard views, offering a sense of peace in the heart of the city. Each residence at 1447 N. Dearborn boasts direct elevator access and expansive private outdoor spaces. Residence 2S is a 3 bedroom, 3.1 bath, single-floor residence with 9.5 ft ceilings and exquisite selections for all finishes. With 2563 SQFT of living space, this sprawling condominium lives more like a single-family home. Common areas include a beautifully landscaped courtyard with a graceful fountain that offers a moment of stillness, a wellness room for yoga, meditation, and light exercise, and tandem, attached, heated garage parking for 2-cars. Estimated delivery is 12 months from the date of the executed contract.
| DAYS ON MARKET | 164 | LAST UPDATED | 12/4/2025 |
|---|---|---|---|
| YEAR BUILT | 1901 | COMMUNITY | CHI - Near North Side |
| GARAGE SPACES | 2.0 | COUNTY | Cook |
| STATUS | Conditional | PROPERTY TYPE(S) | Condo/Townhouse/Co-Op |
| School District | Lincoln Park High School |
|---|---|
| Elementary School | Ogden Elementary |
| Jr. High School | Ogden Elementary |
| High School | Lincoln Park High School |
| ADDITIONAL DETAILS | |
| AIR | Central Air |
|---|---|
| AIR CONDITIONING | Yes |
| AMENITIES | Insurance, Snow Removal, Water |
| APPLIANCES | Dishwasher, Disposal, Double Oven, Dryer, Freezer, Microwave, Range, Range Hood, Refrigerator, Washer, Wine Refrigerator |
| AREA | CHI - Near North Side |
| BASEMENT | None |
| CONSTRUCTION | Brick, Stone |
| EXTERIOR | Balcony |
| FIREPLACE | Yes |
| GARAGE | Attached Garage, Yes |
| HEAT | Natural Gas, Radiant Floor |
| HOA DUES | 1503 |
| INTERIOR | Built-in Features, Elevator, Pantry, Walk-In Closet(s) |
| LOT | 0 |
| LOT DIMENSIONS | COMMON |
| PARKING | Tandem, Attached, Garage |
| SEWER | Public Sewer |
| STORIES | 5 |
MORTGAGE CALCULATOR
TOTAL MONTHLY PAYMENT
0
P
I
*Estimate only
| SATELLITE VIEW |
| / | |
We respect your online privacy and will never spam you. By submitting this form with your telephone number
you are consenting for Humderto
Garcia to contact you even if your name is on a Federal or State
"Do not call List".
Listed with @properties Christie's International Real Estate
The data relating to real estate for sale on this web site comes in part from the Broker ReciprocitySM Program of MRED. All real estate listings are marked with the Broker ReciprocitySM logo or the MRED Broker ReciprocitySM thumbnail logo (a little black house) and detailed information about them includes the name of the listing brokers.
The broker providing these data believes them to be correct, but advises interested parties to confirm them before relying on them in a purchase decision.
Copyright 2025 MRED. All rights reserved.

The broker providing these data believes them to be correct, but advises interested parties to confirm them before relying on them in a purchase decision.
Copyright 2025 MRED. All rights reserved.
This IDX solution is (c) Diverse Solutions 2025.