|
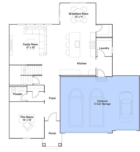
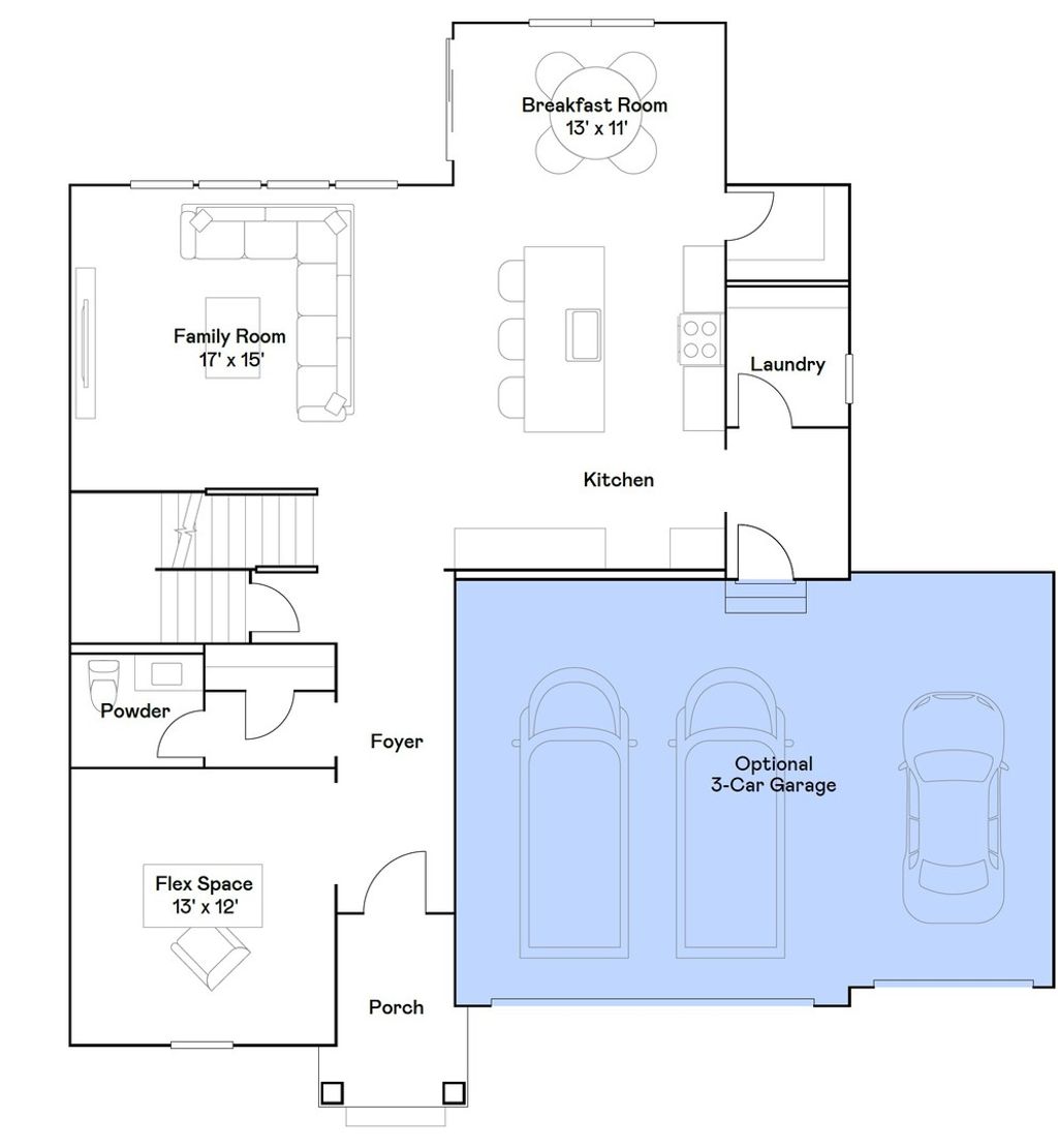
*PRE-CONSTRUCTION PRICING AVAILABLE* The first level of this two-story home is dedicated to the communal living and dining spaces, arranged among a convenient and contemporary open floorplan. The well-equipped kitchen is complemented by a spacious walk-in pantry, and a flex space off the entry is ideal as a home office. All four bedrooms surround a versatile loft on the second floor, including the owner's suite with a private bathroom and spacious walk-in closet. Exterior will be James Hardie Aged Pewter color siding with Old World Ledge - Huron exterior color stone. (pic for reference ONLY). *Photos are not this actual home* Waterford offers fantastic onsite amenities including a clubhouse, swimming pool, fitness center, two community parks, walking trails and a tot lot. Elgin provides a serene lifestyle and convenient access to unique boutiques, shops and entertainment in a charming and vibrant downtown area, with tranquil parks, local recreation and much more all within reach.
DAYS ON MARKET | 88 | LAST UPDATED | 7/11/2025 |
---|---|---|---|
TRACT | Waterford | YEAR BUILT | 2025 |
COMMUNITY | Elgin | GARAGE SPACES | 3.0 |
COUNTY | Kane | STATUS | Active |
PROPERTY TYPE(S) | Single Family |
School District | Central High School |
---|---|
Elementary School | Prairie View Grade School |
Jr. High School | Prairie Knolls Middle School |
High School | Central High School |
ADDITIONAL DETAILS | |
AIR | Central Air |
---|---|
AIR CONDITIONING | Yes |
AMENITIES | Insurance |
APPLIANCES | Dishwasher, Disposal, Microwave, Range, Stainless Steel Appliance(s) |
AREA | Elgin |
BASEMENT | Full, Unfinished, Walk-Out Access, Yes |
CONSTRUCTION | Other, Stone |
GARAGE | Yes |
HEAT | Forced Air, Natural Gas |
HOA DUES | 129 |
LOT | 0 |
LOT DIMENSIONS | 13232 |
PARKING | Asphalt, Garage Door Opener, On Site, Attached, Garage |
SEWER | Public Sewer |
SUBDIVISION | Waterford |
WATER | Public |
MORTGAGE CALCULATOR
TOTAL MONTHLY PAYMENT
0
P
I
*Estimate only
SATELLITE VIEW |
/ | |
We respect your online privacy and will never spam you. By submitting this form with your telephone number
you are consenting for Humderto
Garcia to contact you even if your name is on a Federal or State
"Do not call List".
Listed with HomeSmart Connect LLC
The data relating to real estate for sale on this web site comes in part from the Broker ReciprocitySM Program of MRED. All real estate listings are marked with the Broker ReciprocitySM logo or the MRED Broker ReciprocitySM thumbnail logo (a little black house) and detailed information about them includes the name of the listing brokers.
The broker providing these data believes them to be correct, but advises interested parties to confirm them before relying on them in a purchase decision.
Copyright 2025 MRED. All rights reserved.

The broker providing these data believes them to be correct, but advises interested parties to confirm them before relying on them in a purchase decision.
Copyright 2025 MRED. All rights reserved.

This IDX solution is (c) Diverse Solutions 2025.