|
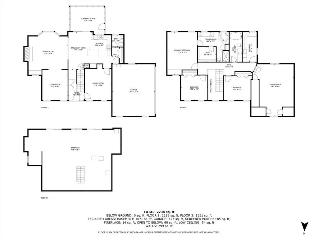
Situated on 1.8 private acres with deeded water rights to the Fox River, this 4-bedroom, 2.1-bath home blends comfort, space, and thoughtful updates in a serene natural setting. Step inside to a striking two-story foyer, with French doors leading to the formal living room on one side and a separate formal dining room on the opposite side-perfect for hosting gatherings. The kitchen features stainless steel appliances, an island, and a generous eating area that opens to the family room with a cozy brick fireplace. From here, step out to the expansive screened-in deck, ideal for relaxing or entertaining while enjoying the tranquil views. Upstairs, the primary suite serves as a spa-like retreat with a double vanity, heated floors, whirlpool tub, and separate shower. Two additional generously sized bedrooms and a third oversized bedroom over the garage share a full bath. The convenience of second-floor laundry adds ease to daily living. The walk-out basement provides flexibility for future living space or storage. Outside, the private backyard is surrounded by mature trees and features a firepit-perfect for quiet evenings under the stars. Recent updates include a brand-new roof, two new furnaces installed in March, and a tankless water heater for energy efficiency. Don't miss the opportunity to enjoy the Fox River lifestyle on this beautiful, expansive property!
DAYS ON MARKET | 94 | LAST UPDATED | 8/16/2025 |
---|---|---|---|
YEAR BUILT | 1990 | COMMUNITY | Cary / Oakwood Hills / Trout Valley |
GARAGE SPACES | 2.5 | COUNTY | Lake |
STATUS | Conditional | PROPERTY TYPE(S) | Single Family |
School District | Cary-Grove Community High School |
---|---|
Elementary School | Three Oaks School |
Jr. High School | Cary Junior High School |
High School | Cary-Grove Community High School |
ADDITIONAL DETAILS | |
AIR | Central Air |
---|---|
AIR CONDITIONING | Yes |
APPLIANCES | Dishwasher, Dryer, Microwave, Range, Refrigerator, Stainless Steel Appliance(s), Washer, Water Softener |
AREA | Cary / Oakwood Hills / Trout Valley |
BASEMENT | Full, Sump Pump, Unfinished, Yes |
CONSTRUCTION | Brick, Cedar |
EXTERIOR | Fire Pit |
FIREPLACE | Yes |
GARAGE | Yes |
HEAT | Forced Air, Natural Gas |
INTERIOR | Central Vacuum, Vaulted Ceiling(s), Walk-In Closet(s) |
LOT | 1.8693 acre(s) |
LOT DESCRIPTION | Wooded |
LOT DIMENSIONS | 254x322x254x311 |
PARKING | Asphalt, Garage Door Opener, On Site, Attached, Garage |
SEWER | Septic Tank |
STYLE | Traditional |
TAXES | 10298.12 |
WATER | Well |
MORTGAGE CALCULATOR
TOTAL MONTHLY PAYMENT
0
P
I
*Estimate only
SATELLITE VIEW |
/ | |
We respect your online privacy and will never spam you. By submitting this form with your telephone number
you are consenting for Humderto
Garcia to contact you even if your name is on a Federal or State
"Do not call List".
Listed with Keller Williams Success Realty
The data relating to real estate for sale on this web site comes in part from the Broker ReciprocitySM Program of MRED. All real estate listings are marked with the Broker ReciprocitySM logo or the MRED Broker ReciprocitySM thumbnail logo (a little black house) and detailed information about them includes the name of the listing brokers.
The broker providing these data believes them to be correct, but advises interested parties to confirm them before relying on them in a purchase decision.
Copyright 2025 MRED. All rights reserved.

The broker providing these data believes them to be correct, but advises interested parties to confirm them before relying on them in a purchase decision.
Copyright 2025 MRED. All rights reserved.

This IDX solution is (c) Diverse Solutions 2025.