|
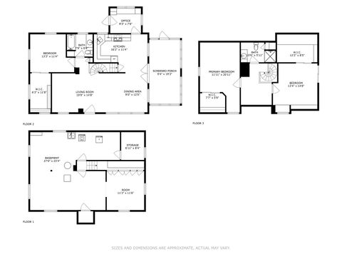
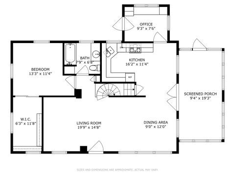
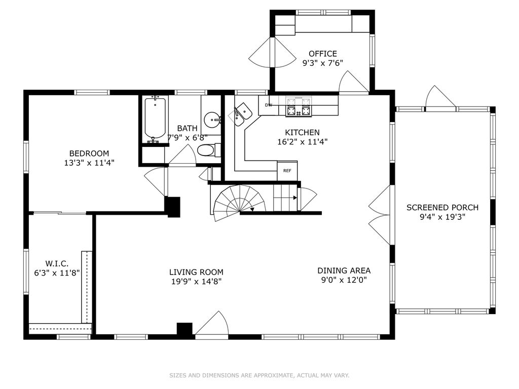
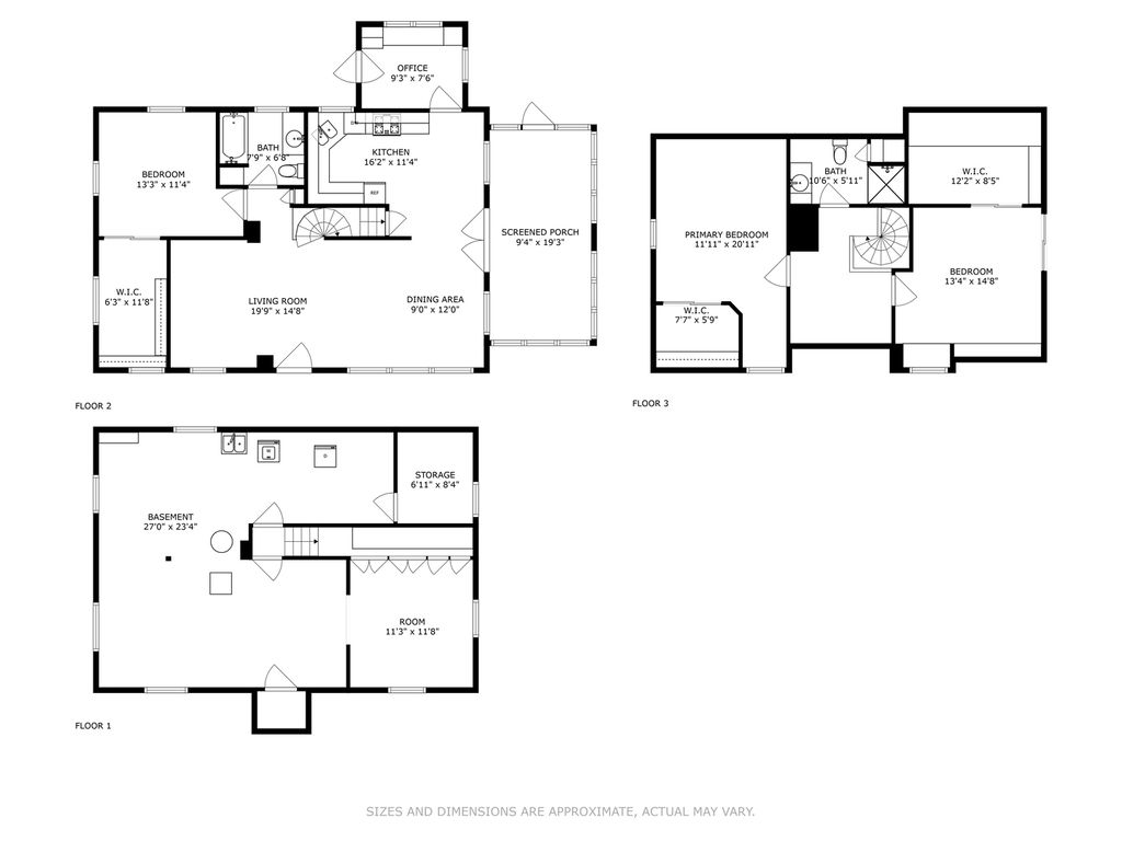
RARE OPPORTUNITY to purchase a 2-story home on almost 2.5 ACRES of property in conveniently located Wood Dale! This charming 3 bedroom, 2 full bath with basement home is nestled in privately on this expansive wooded parcel. Spacious mudroom off back of home and screened in porch. Home is in need of updating and repairs but has potential. Property extends back to Salt Creek. Bedroom located on main floor along with full bathroom. Newer windows and roof. Detached 2-car garage. Excellent location near Route 390 Elgin-O'Hare expressway, O'Hare airport, Wood Dale train station, Park District "The Beach" water park, dining and shopping. *Property is sold strictly AS-IS.* Listing agents have very limited knowledge of property details. Vacant property south of this parcel is owned by the Forrest Preserve District of DuPage County. For specifics regarding lot restrictions and building codes contact the City of Wood Dale.
| DAYS ON MARKET | 110 | LAST UPDATED | 10/20/2025 |
|---|---|---|---|
| YEAR BUILT | 1923 | COMMUNITY | Wood Dale |
| GARAGE SPACES | 2.0 | COUNTY | DuPage |
| STATUS | Conditional | PROPERTY TYPE(S) | Single Family |
| School District | Fenton High School |
|---|---|
| Elementary School | Westview Elementary School |
| Jr. High School | Wood Dale Junior High School |
| High School | Fenton High School |
| PRICE HISTORY | |
| Prior to Oct 9, '25 | $420,000 |
|---|---|
| Oct 9, '25 - Today | $399,000 |
| ADDITIONAL DETAILS | |
| AIR | Central Air |
|---|---|
| AIR CONDITIONING | Yes |
| APPLIANCES | Dishwasher, Dryer, Range, Refrigerator, Washer |
| AREA | Wood Dale |
| BASEMENT | Full, Unfinished, Yes |
| CONSTRUCTION | Vinyl Siding |
| GARAGE | Yes |
| HEAT | Natural Gas |
| INTERIOR | Bookcases, Walk-In Closet(s) |
| LOT | 2.39 acre(s) |
| LOT DESCRIPTION | Wooded |
| LOT DIMENSIONS | 2.39 |
| PARKING | Asphalt, On Site, Detached, Garage |
| SEWER | Public Sewer |
| TAXES | 7627 |
| WATER | Public |
MORTGAGE CALCULATOR
TOTAL MONTHLY PAYMENT
0
P
I
*Estimate only
| SATELLITE VIEW |
| / | |
We respect your online privacy and will never spam you. By submitting this form with your telephone number
you are consenting for Humderto
Garcia to contact you even if your name is on a Federal or State
"Do not call List".
Listed with Coldwell Banker Realty
The data relating to real estate for sale on this web site comes in part from the Broker ReciprocitySM Program of MRED. All real estate listings are marked with the Broker ReciprocitySM logo or the MRED Broker ReciprocitySM thumbnail logo (a little black house) and detailed information about them includes the name of the listing brokers.
The broker providing these data believes them to be correct, but advises interested parties to confirm them before relying on them in a purchase decision.
Copyright 2025 MRED. All rights reserved.

The broker providing these data believes them to be correct, but advises interested parties to confirm them before relying on them in a purchase decision.
Copyright 2025 MRED. All rights reserved.
This IDX solution is (c) Diverse Solutions 2025.