|
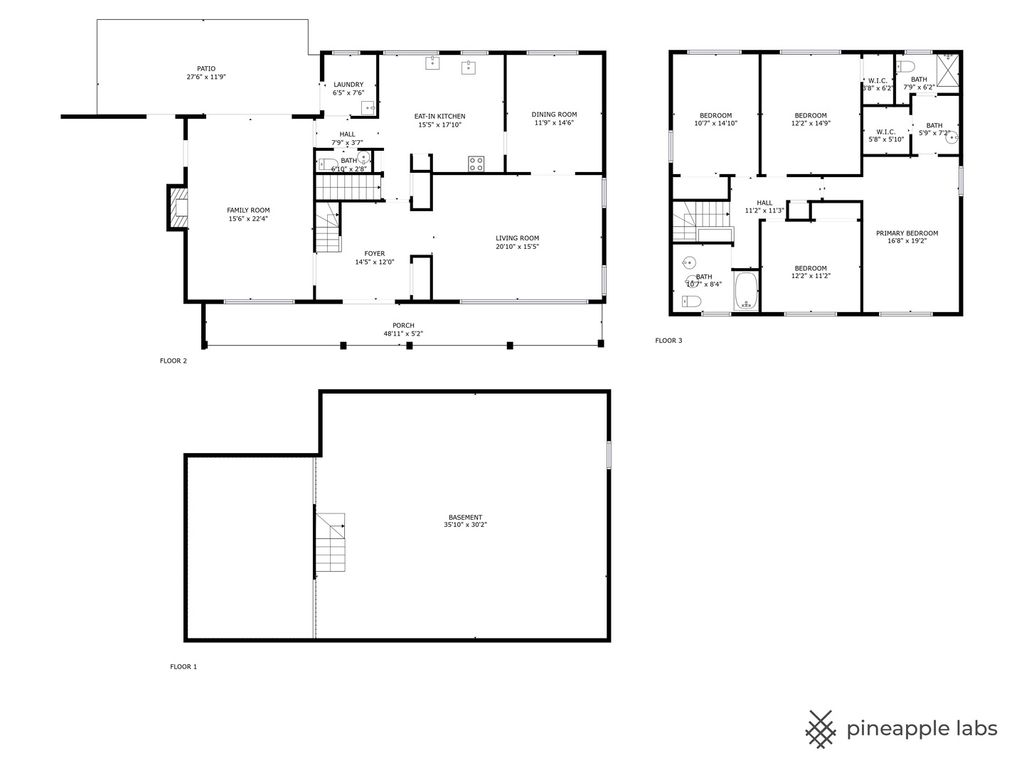
***Great new price and such an excellent value*** Gracious colonial is nestled on a cul-de-sac lot in sought after Charlemagne! Greet your guests in the spacious foyer. Entertainment size living room and dining room with loads of windows. The sunny kitchen is well appointed with plenty of maple cabinets, corian counters, tumbled stone backsplash, Grohe faucet, and porcelain tile floor. The grand family room is the perfect place to relax with charming fireplace and sliders to the patio for grilling or easy indoor/outdoor entertaining. Upstairs you will be delighted by the lovely primary suite! En-suite bath boasts double vanity, spa like shower and walk-in-closet! Additional three large family bedrooms wtih great closet space served by the updated hall bath featuring a double vanity. New neutral carpet flows through the upstairs level. **Special feature** there is Hardwood under all carpet throughout the home! Huge basement is perfect storage or awaiting your finishing touches. Side load attached garage and additional parking apron. So many recent updates and improvements include: Architectural shingle roof 2014, 2nd floor carpet 2024, family room carpet 2022, refrigerator 2023, sump pump with battery backup 2021, Bosch dishwasher 2019, washer/dryer 2018, Furnace and A/C 2013, Windows/sliders, siding and gutters 2002! Enjoy your outdoor space and the beautiful professional landscaping from the charming front porch or the rear patio! District 27 schools and Glenbrook North High School! Close to metra, restaurants, shops and all the wonderful Northbrook parks and recreation facilities!
DAYS ON MARKET | 92 | LAST UPDATED | 8/28/2025 |
---|---|---|---|
TRACT | Charlemagne | YEAR BUILT | 1970 |
COMMUNITY | Northbrook | GARAGE SPACES | 2.0 |
COUNTY | Cook | STATUS | Conditional |
PROPERTY TYPE(S) | Single Family |
School District | Glenbrook North High School |
---|---|
High School | Glenbrook North High School |
PRICE HISTORY | |
Prior to Jul 14, '25 | $879,000 |
---|---|
Jul 14, '25 - Jul 27, '25 | $829,000 |
Jul 27, '25 - Today | $799,000 |
ADDITIONAL DETAILS | |
AIR | Ceiling Fan(s), Central Air |
---|---|
AIR CONDITIONING | Yes |
APPLIANCES | Cooktop, Dishwasher, Disposal, Double Oven, Dryer, Humidifier, Microwave, Oven, Refrigerator, Washer |
AREA | Northbrook |
BASEMENT | Crawl Space, Partial, Sump Pump, Unfinished, Yes |
CONSTRUCTION | Brick, Vinyl Siding |
FIREPLACE | Yes |
GARAGE | Yes |
HEAT | Forced Air, Natural Gas |
HOA DUES | 150 |
INTERIOR | Pantry, Walk-In Closet(s) |
LOT | 0 |
LOT DESCRIPTION | Corner Lot, Cul-de-sac, Landscaped |
LOT DIMENSIONS | 11802 |
PARKING | Concrete, Garage Door Opener, On Site, Attached, Garage |
STYLE | Colonial |
SUBDIVISION | Charlemagne |
TAXES | 12475.26 |
UTILITIES | Cable Available |
MORTGAGE CALCULATOR
TOTAL MONTHLY PAYMENT
0
P
I
*Estimate only
SATELLITE VIEW |
/ | |
We respect your online privacy and will never spam you. By submitting this form with your telephone number
you are consenting for Humderto
Garcia to contact you even if your name is on a Federal or State
"Do not call List".
Listed with Coldwell Banker Realty
The data relating to real estate for sale on this web site comes in part from the Broker ReciprocitySM Program of MRED. All real estate listings are marked with the Broker ReciprocitySM logo or the MRED Broker ReciprocitySM thumbnail logo (a little black house) and detailed information about them includes the name of the listing brokers.
The broker providing these data believes them to be correct, but advises interested parties to confirm them before relying on them in a purchase decision.
Copyright 2025 MRED. All rights reserved.

The broker providing these data believes them to be correct, but advises interested parties to confirm them before relying on them in a purchase decision.
Copyright 2025 MRED. All rights reserved.

This IDX solution is (c) Diverse Solutions 2025.