|
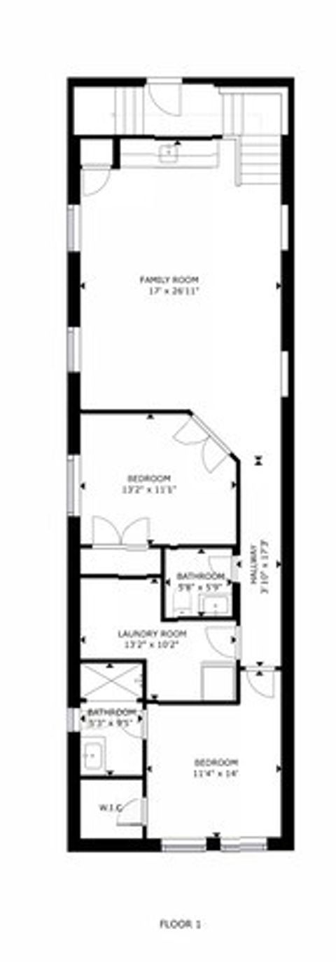
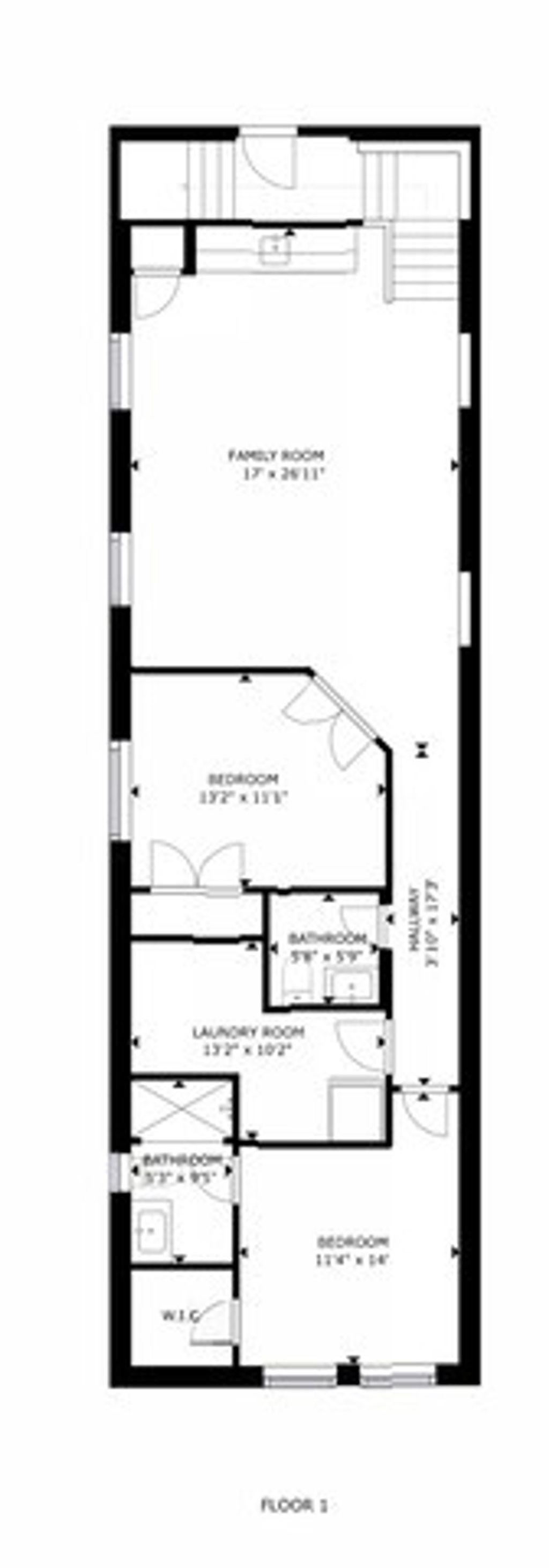
3851 N. Hermitage is a highly upgraded custom single-family home. The meticulous attention to detail is apparent the minute you walk into this gorgeous home. The many details include a natural stone mosaic-tiled entry with a coat closet, hardwood flooring throughout, and beautiful custom millwork with coffered, vaulted, and beamed ceiling accents. The stunning light fixtures are custom from Restoration Hardware. The chef's kitchen has high-end appliances, including a Sub-Zero refrigerator and a Wolf double oven with 6 burners and a griddle. The cabinetry is ceiling height with inset doors and a double row; the butler's pantry houses a wine refrigerator, coffee bar, plus a water line with flat, sparkling, and ultra sparkling water options. You will also find an oversized island with seating for four and gorgeous, natural stone, leather-finished countertops. The formal living room has a gas-burning fireplace, a separate dining room, and a tucked-away, elegant powder room across from the second coat closet that this level offers. The spectacular, private upper level has spacious bedrooms, large closets, a laundry room, and a phenomenal primary suite with 2 walk-in closets, a stand-alone tub, a separate shower with steam, 2 stand-alone vanities, and a private commode room. The fully appointed lower level has a wet bar with a gas hookup for an optional full kitchen, radiant heated bamboo flooring, plus two large bedrooms, one of which has an ensuite bathroom that is great for guests. Enjoy the many additional luxuries this home offers, such as remote-controlled window treatments, 2 fireplaces, 2 wine refrigerators, ingenious custom built-ins to increase storage throughout, 2 powder rooms great for entertaining, a built-out mudroom area, and sophisticated mechanicals with 3 Nest-controlled zones for heating and cooling and 2 new high-efficiency AC compressors. If that isn't enough, there are Sonos-controlled smart systems for hardwired sound across multiple zones, along with Sonos-controlled color-changing lighting, hardwired for wi-fi and internet, 3 separate breaker boxes, one on each level, professionally organized closets, and 2 laundry rooms for convenience. Enjoy the outdoors with brick paved patios in the front and back yards, enhanced garage roof deck with pergola and brick fireplace, tasteful landscaping with a raised planter box blooming with perennials, surrounded by a rust-proof decorative metal fence. Nestled on a tree-lined street in the Hamilton school district. Close to restaurants and shopping on Lincoln Ave, along with the Southport Corridor. Welcome home! Broker Owned.
DAYS ON MARKET | 87 | LAST UPDATED | 10/5/2025 |
---|---|---|---|
YEAR BUILT | 2013 | COMMUNITY | CHI - Lake View |
GARAGE SPACES | 2.0 | COUNTY | Cook |
STATUS | Conditional | PROPERTY TYPE(S) | Single Family |
PRICE HISTORY | |
Prior to Sep 30, '25 | $1,795,000 |
---|---|
Sep 30, '25 - Today | $1,695,000 |
ADDITIONAL DETAILS | |
AIR | Central Air, Zoned |
---|---|
AIR CONDITIONING | Yes |
AREA | CHI - Lake View |
BASEMENT | Daylight, Finished, Full, Yes |
CONSTRUCTION | Frame |
GARAGE | Yes |
HEAT | Forced Air, Natural Gas, Zoned |
INTERIOR | Entrance Foyer, Walk-In Closet(s) |
LOT | 0 |
LOT DIMENSIONS | 25X108 |
PARKING | On Site, Detached, Garage |
SEWER | Public Sewer |
TAXES | 26729 |
WATER | Public |
MORTGAGE CALCULATOR
TOTAL MONTHLY PAYMENT
0
P
I
*Estimate only
SATELLITE VIEW |
/ | |
We respect your online privacy and will never spam you. By submitting this form with your telephone number
you are consenting for Humderto
Garcia to contact you even if your name is on a Federal or State
"Do not call List".
Listed with Victory Real Estate, LLC
The data relating to real estate for sale on this web site comes in part from the Broker ReciprocitySM Program of MRED. All real estate listings are marked with the Broker ReciprocitySM logo or the MRED Broker ReciprocitySM thumbnail logo (a little black house) and detailed information about them includes the name of the listing brokers.
The broker providing these data believes them to be correct, but advises interested parties to confirm them before relying on them in a purchase decision.
Copyright 2025 MRED. All rights reserved.

The broker providing these data believes them to be correct, but advises interested parties to confirm them before relying on them in a purchase decision.
Copyright 2025 MRED. All rights reserved.

This IDX solution is (c) Diverse Solutions 2025.