|
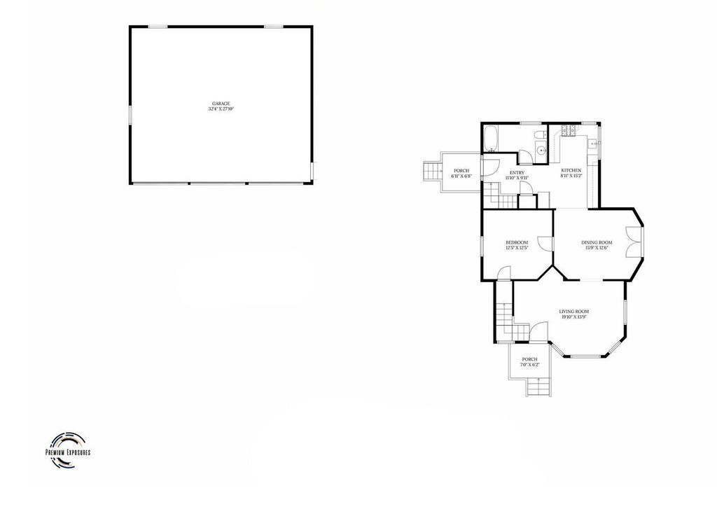
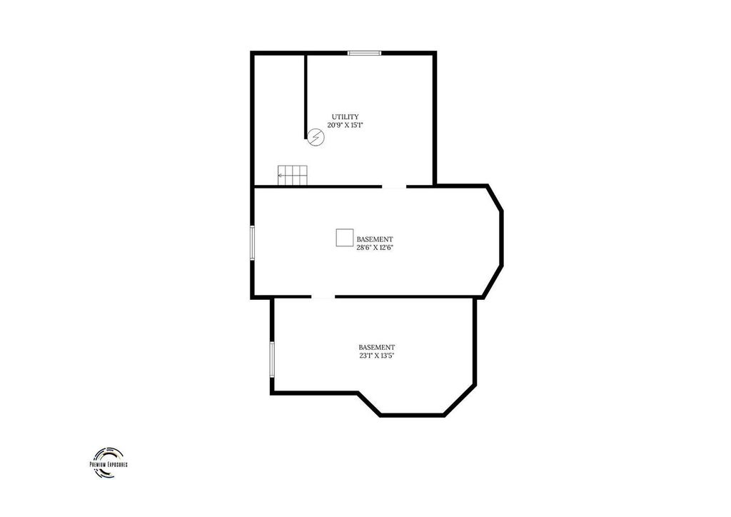
Enjoy the peace and quiet of country living on 3 acres outside of Pontiac! This 2 story home features 4 bedrooms, 2 full bathrooms, and is full of updates! Step into the new mudroom w/ utility closet and full bath, which leads to either the full basement w/ 2 sump pumps, or the beautifully updated kitchen w/ a copper farm sink and new appliances. The main level has hardwood flooring and original woodwork throughout, including pocket doors between the separate dining room and living room. The main level bedroom could also be used as an office or playroom. The 2nd level holds 3 more bedrooms with newer carpet and paint, and the 2nd full bath. This massive bathroom has floor heat, a claw foot tub, a HUGE shower with a rain showerhead, contains the laundry area, AND leads out to a balcony overlooking the backyard! Go up the stairs to the 3rd level attic for even more living space! It's been started, so you can finish it to add more bedrooms, storage, whatever you'd like! The 3 car garage was added in January 2025, as well as a 2nd gravel lane and parking area. Plenty of land to plant a garden next to the apple trees, add an outbuilding, put up fence, tons of possibilities! *NEW* in 2021/2022; furnace, AC, some first level windows, some interior lighting, all kitchen appliances. *NEW* roof 2025. Chest freezer in basement will stay as well.
| DAYS ON MARKET | 201 | LAST UPDATED | 1/24/2026 |
|---|---|---|---|
| TRACT | Not Applicable | YEAR BUILT | 1912 |
| COMMUNITY | Pontiac | GARAGE SPACES | 3.0 |
| COUNTY | Livingston | STATUS | Conditional |
| PROPERTY TYPE(S) | Single Family |
| School District | Pontiac High School |
|---|---|
| Elementary School | Central Elementary School |
| Jr. High School | Pontiac Junior High School |
| High School | Pontiac High School |
| PRICE HISTORY | |
| Prior to Aug 6, '25 | $360,000 |
|---|---|
| Aug 6, '25 - Sep 25, '25 | $350,000 |
| Sep 25, '25 - Nov 1, '25 | $340,000 |
| Nov 1, '25 - Nov 15, '25 | $335,000 |
| Nov 15, '25 - Dec 12, '25 | $325,000 |
| Dec 12, '25 - Today | $315,000 |
| ADDITIONAL DETAILS | |
| AIR | Central Air |
|---|---|
| AIR CONDITIONING | Yes |
| APPLIANCES | Dishwasher, Dryer, Freezer, Microwave, Range, Refrigerator, Water Softener Rented |
| AREA | Pontiac |
| BASEMENT | Full, Unfinished, Yes |
| CONSTRUCTION | Vinyl Siding |
| EXTERIOR | Balcony |
| GARAGE | Yes |
| HEAT | Propane, Radiant Floor |
| LOT | 3 acre(s) |
| LOT DIMENSIONS | 3 |
| PARKING | Gravel, Detached, Garage |
| SEWER | Septic Tank |
| STYLE | Farmhouse |
| SUBDIVISION | Not Applicable |
| TAXES | 6749 |
| WATER | Well |
MORTGAGE CALCULATOR
TOTAL MONTHLY PAYMENT
0
P
I
*Estimate only
| SATELLITE VIEW |
| / | |
We respect your online privacy and will never spam you. By submitting this form with your telephone number
you are consenting for Humderto
Garcia to contact you even if your name is on a Federal or State
"Do not call List".
Listed with Green Street Realty
The data relating to real estate for sale on this web site comes in part from the Broker ReciprocitySM Program of MRED. All real estate listings are marked with the Broker ReciprocitySM logo or the MRED Broker ReciprocitySM thumbnail logo (a little black house) and detailed information about them includes the name of the listing brokers.
The broker providing these data believes them to be correct, but advises interested parties to confirm them before relying on them in a purchase decision.
Copyright 2026 MRED. All rights reserved.

The broker providing these data believes them to be correct, but advises interested parties to confirm them before relying on them in a purchase decision.
Copyright 2026 MRED. All rights reserved.
This IDX solution is (c) Diverse Solutions 2026.