|
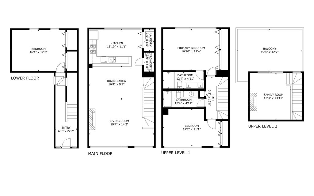
Incredible 4-story, spacious townhome located in a gated boutique community in the highly sought-after River West neighborhood, within the Ogden School District. This 3 bedroom + den, 2.1 bathroom townhome features an extra-wide floor plan, a 1 car attached garage, and a large private roof deck. The main level offers an open kitchen, living, and dining area-perfect for entertaining-complete with hardwood floors, floor-to-ceiling windows, tall ceilings, and a fireplace. The spacious gourmet kitchen is equipped with granite countertops, stainless steel appliances, and a large dining area, offering a perfect blend of style and functionality for cooking and entertaining. The large bedrooms include an expansive master suite with a luxurious double vanity and walk-in shower. The guest full bath and powder room add extra convenience. The cozy lofted den on the 4th floor features a second fireplace and opens to the roof top deck. Additional highlights include organized closets throughout and a full-sized washer/dryer for added convenience. Enjoy a 'close to everything' location, with easy access to the Blue Line, Fulton Market, shopping, dining, as well as quick connections to 90/94 and the Metra. Must see!!
| DAYS ON MARKET | 22 | LAST UPDATED | 3/10/2026 |
|---|---|---|---|
| YEAR BUILT | 1992 | COMMUNITY | CHI - West Town |
| GARAGE SPACES | 1.0 | COUNTY | Cook |
| STATUS | Conditional | PROPERTY TYPE(S) | Condo/Townhouse/Co-Op |
| School District | Wells Community Academy Senior H |
|---|---|
| Elementary School | Ogden Elementary |
| Jr. High School | Ogden Elementary |
| High School | Wells Community Academy Senior H |
| ADDITIONAL DETAILS | |
| AIR | Central Air |
|---|---|
| AIR CONDITIONING | Yes |
| AMENITIES | Insurance, Snow Removal |
| APPLIANCES | Dishwasher, Disposal, Dryer, Freezer, Microwave, Range, Refrigerator, Stainless Steel Appliance(s), Washer |
| AREA | CHI - West Town |
| BASEMENT | None |
| CONSTRUCTION | Block |
| FIREPLACE | Yes |
| GARAGE | Attached Garage, Yes |
| HEAT | Forced Air, Natural Gas |
| HOA DUES | 250 |
| INTERIOR | Entrance Foyer |
| LOT | 0 |
| LOT DIMENSIONS | 20x38 |
| PARKING | Shared Driveway, Garage Door Opener, Attached, Garage |
| SEWER | Public Sewer |
| STORIES | 4 |
| TAXES | 13299.32 |
| WATER | Public |
MORTGAGE CALCULATOR
TOTAL MONTHLY PAYMENT
0
P
I
*Estimate only
| SATELLITE VIEW |
| / | |
We respect your online privacy and will never spam you. By submitting this form with your telephone number
you are consenting for Humderto
Garcia to contact you even if your name is on a Federal or State
"Do not call List".
Listed with Chicago Properties Firm
The data relating to real estate for sale on this web site comes in part from the Broker ReciprocitySM Program of MRED. All real estate listings are marked with the Broker ReciprocitySM logo or the MRED Broker ReciprocitySM thumbnail logo (a little black house) and detailed information about them includes the name of the listing brokers.
The broker providing these data believes them to be correct, but advises interested parties to confirm them before relying on them in a purchase decision.
Copyright 2026 MRED. All rights reserved.

The broker providing these data believes them to be correct, but advises interested parties to confirm them before relying on them in a purchase decision.
Copyright 2026 MRED. All rights reserved.
This IDX solution is (c) Diverse Solutions 2026.