|
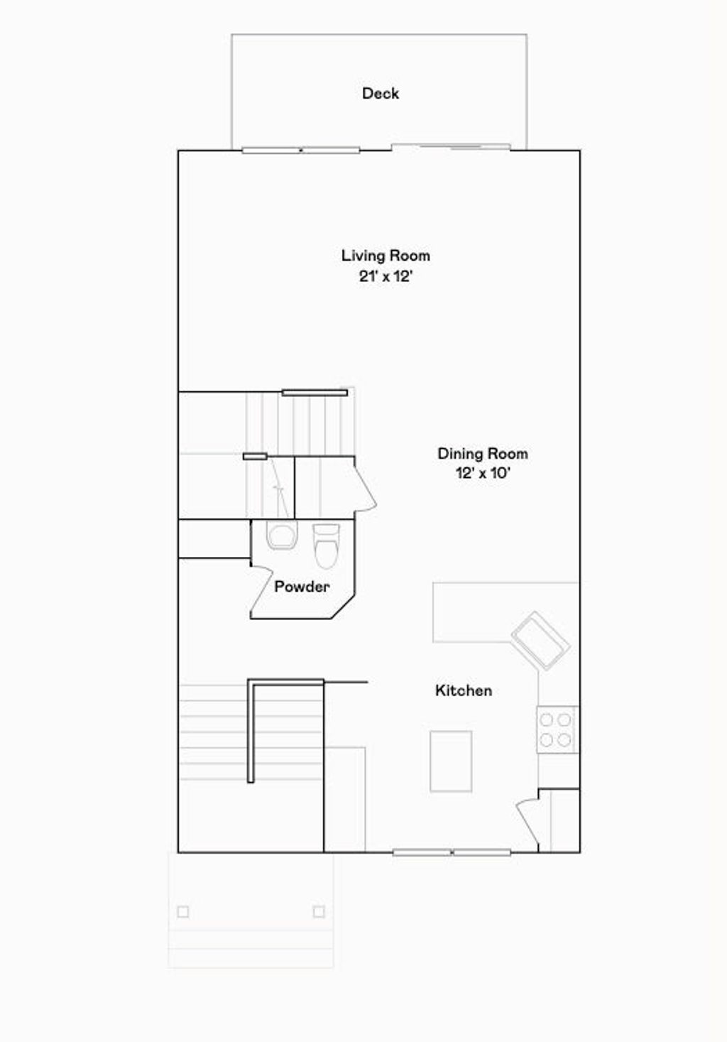
BRAND NEW END-UNIT TOWNHOME IN PLAINFIELD'S SOUGHT AFTER AUTUMN GLEN COMMUNITY! Welcome to the Chatham, a popular 2- story Urban townhome featuring 3 bedrooms and 2.5 baths. This home is the open floor plan that everybody wants.. perfect for entertaining and everyday life. The light-flooded kitchen on the main level is a showstopper with huge quartz island and breakfast bar, stainless appliances, and upgraded cabinets. It's truly a great space for gathering and is open to the dining and family rooms! Don't forget to check out the oversized deck, the perfect spot to enjoy your morning coffee. Retreat to your luxurious owner's suite featuring a walk-in closet and spa-like bath with walk-in shower. 2 other spacious bedrooms round out the upper level. The english basement is flooded with natural light and offers a great flex space that could be used as an office, playroom or workout room. You will appreciate the upgraded luxury features that come included... LVP flooring, upgraded prairie style railings, and more! Enjoy the good life...exterior maintenance with snow and lawn care included! Buy with peace of mind... everything is brand new and a 10-year builder structural warranty is included. Autumn Glen offers onsite amenities across 7.6 acres, including a park with a tot play area, a natural preserve area, and a central courtyard with walking paths! Enjoy all that Plainfield has to offer with its charming downtown, beautiful nature preserves, and convenient shopping and dining. Highly acclaimed Plainfield North schools! Chatham model/ Exterior/Interior photos of similar model/homesite 3404
DAYS ON MARKET | 83 | LAST UPDATED | 7/15/2025 |
---|---|---|---|
YEAR BUILT | 2025 | COMMUNITY | Plainfield |
GARAGE SPACES | 2.0 | COUNTY | Will |
STATUS | Conditional | PROPERTY TYPE(S) | Condo/Townhouse/Co-Op |
School District | Plainfield North High School |
---|---|
High School | Plainfield North High School |
ADDITIONAL DETAILS | |
AIR | Central Air |
---|---|
AIR CONDITIONING | Yes |
AMENITIES | Insurance, Snow Removal |
APPLIANCES | Dishwasher, Disposal, Microwave, Range, Stainless Steel Appliance(s) |
AREA | Plainfield |
BASEMENT | Daylight, Finished, Partial, Yes |
CONSTRUCTION | Vinyl Siding |
GARAGE | Yes |
HEAT | Forced Air, Natural Gas |
HOA DUES | 200 |
INTERIOR | High Ceilings, Open Floorplan, Pantry, Walk-In Closet(s) |
LOT | 0 |
LOT DIMENSIONS | 101X56 |
PARKING | Asphalt, On Site, Attached, Garage |
SEWER | Public Sewer |
STORIES | 2 |
MORTGAGE CALCULATOR
TOTAL MONTHLY PAYMENT
0
P
I
*Estimate only
SATELLITE VIEW |
/ | |
We respect your online privacy and will never spam you. By submitting this form with your telephone number
you are consenting for Humderto
Garcia to contact you even if your name is on a Federal or State
"Do not call List".
Listed with @properties Christie's International Real Estate
The data relating to real estate for sale on this web site comes in part from the Broker ReciprocitySM Program of MRED. All real estate listings are marked with the Broker ReciprocitySM logo or the MRED Broker ReciprocitySM thumbnail logo (a little black house) and detailed information about them includes the name of the listing brokers.
The broker providing these data believes them to be correct, but advises interested parties to confirm them before relying on them in a purchase decision.
Copyright 2025 MRED. All rights reserved.

The broker providing these data believes them to be correct, but advises interested parties to confirm them before relying on them in a purchase decision.
Copyright 2025 MRED. All rights reserved.

This IDX solution is (c) Diverse Solutions 2025.