|
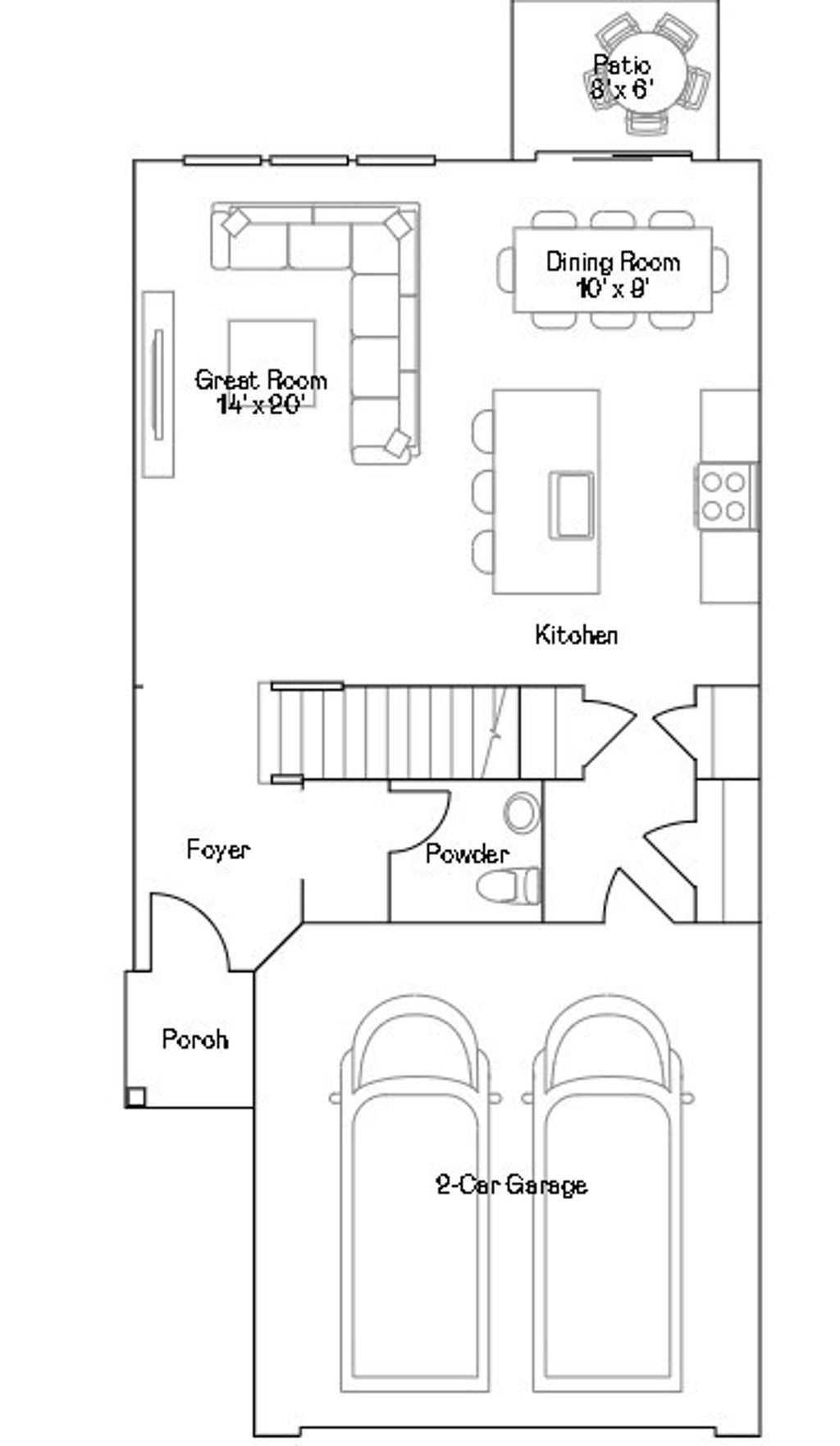
READY FOR September DELIVERY!!Introducing the Marianne, a newly designed two-story townhome that seamlessly blends comfort and elegance. This model offers three spacious bedrooms, two full baths, a half bath, and a contemporary open-concept living space, complete with a two-car garage for added convenience. The first floor features the great room, the focal point of the home, effortlessly flowing into the dining area and the chef-inspired kitchen. The kitchen boasts a magnificent island with a breakfast bar, 42" cabinets, polished quartz countertops, and top-of-the-line stainless steel appliances. Luxury vinyl plank flooring spans the main floor, while sliding glass doors open to the patio, ideal for outdoor relaxation. On the second floor, you'll find two generously sized secondary bedrooms, along with the exquisite owner's suite-a true sanctuary to unwind after a busy day. This serene retreat includes a generous walk-in closet and a spa-inspired bath, complete with a deluxe shower for the ultimate relaxation experience. Complete with a convenient upstairs laundry room, the Marianne combines thoughtful design and modern amenities, offering both comfort and style in every corner. *Photos are not this actual home* Focused lifestyle in the heart of Plainfield, Illinois. Designed with both nature and neighborhood connection in mind, Autumn Glen features 7.6 acres of open space and detention areas, along with a 0.77-acre park in the southwest corner that includes a tot lot for little ones to enjoy. In the northern portion of the community, a 2.3-acre native prairie grass area adds natural beauty and a touch of local ecology. At the heart of Autumn Glen is a central courtyard complete with looping walking paths, perfect for peaceful strolls, dog walking, or connecting with neighbors. The layout encourages a relaxing, walkable lifestyle within a setting that feels both private and open. Just beyond the community, residents can explore all that Plainfield has to offer. Known for its blend of small-town charm and urban convenience, Plainfield is home to a bustling downtown district filled with boutique shopping, local dining, and all the major stores and supermarkets you need for everyday living. Community spirit thrives in Plainfield, where events like the lively St. Patrick's Day parade, seasonal artisan markets, and the popular Plainfield Fest bring residents together throughout the year. Whether you're enjoying a weekend stroll downtown or unwinding in your own neighborhood park, Autumn Glen offers a warm and connected place to call home.
DAYS ON MARKET | 72 | LAST UPDATED | 9/22/2025 |
---|---|---|---|
TRACT | Autumn Glen | YEAR BUILT | 2025 |
COMMUNITY | Plainfield | GARAGE SPACES | 2.0 |
COUNTY | Will | STATUS | Conditional |
PROPERTY TYPE(S) | Condo/Townhouse/Co-Op |
School District | Plainfield North High School |
---|---|
Elementary School | Lincoln Elementary School |
Jr. High School | Ira Jones Middle School |
High School | Plainfield North High School |
PRICE HISTORY | |
Prior to Aug 12, '25 | $374,994 |
---|---|
Aug 12, '25 - Aug 19, '25 | $377,144 |
Aug 19, '25 - Aug 26, '25 | $375,044 |
Aug 26, '25 - Sep 3, '25 | $365,594 |
Sep 3, '25 - Sep 9, '25 | $358,994 |
Sep 9, '25 - Today | $352,344 |
ADDITIONAL DETAILS | |
AIR | Central Air |
---|---|
AIR CONDITIONING | Yes |
AMENITIES | Insurance, Snow Removal |
APPLIANCES | Dishwasher, Disposal, Microwave, Range, Stainless Steel Appliance(s) |
AREA | Plainfield |
BASEMENT | None |
CONSTRUCTION | Vinyl Siding |
GARAGE | Yes |
HEAT | Forced Air, Natural Gas |
HOA DUES | 200 |
LOT | 0 |
LOT DIMENSIONS | 0 |
PARKING | Asphalt, Garage Door Opener, On Site, Attached, Garage |
SEWER | Public Sewer |
STORIES | 2 |
SUBDIVISION | Autumn Glen |
WATER | Public |
MORTGAGE CALCULATOR
TOTAL MONTHLY PAYMENT
0
P
I
*Estimate only
SATELLITE VIEW |
/ | |
We respect your online privacy and will never spam you. By submitting this form with your telephone number
you are consenting for Humderto
Garcia to contact you even if your name is on a Federal or State
"Do not call List".
Listed with HomeSmart Connect LLC
The data relating to real estate for sale on this web site comes in part from the Broker ReciprocitySM Program of MRED. All real estate listings are marked with the Broker ReciprocitySM logo or the MRED Broker ReciprocitySM thumbnail logo (a little black house) and detailed information about them includes the name of the listing brokers.
The broker providing these data believes them to be correct, but advises interested parties to confirm them before relying on them in a purchase decision.
Copyright 2025 MRED. All rights reserved.

The broker providing these data believes them to be correct, but advises interested parties to confirm them before relying on them in a purchase decision.
Copyright 2025 MRED. All rights reserved.

This IDX solution is (c) Diverse Solutions 2025.