|
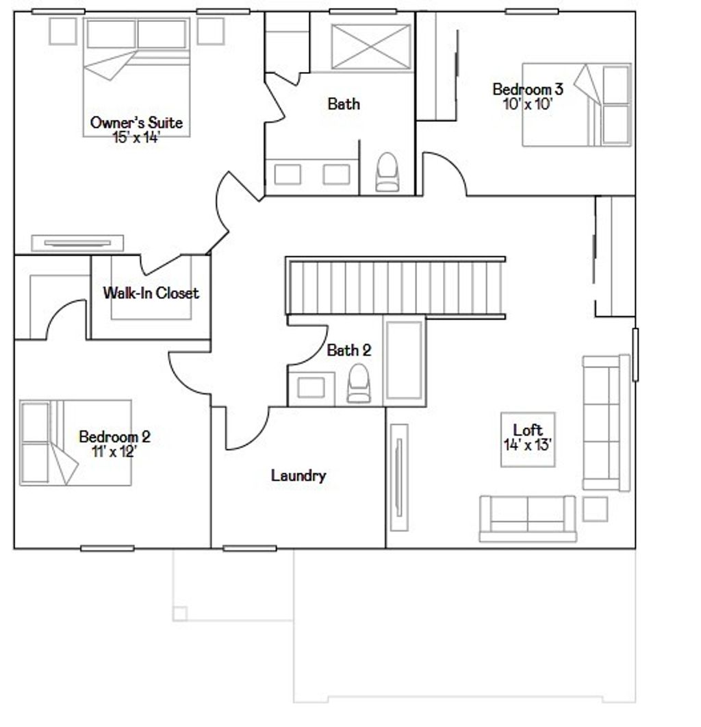
READY FOR NOVEMBER DELIVERY!! Experience the Meadowlark model, a masterfully designed two-story home combining style and convenience. With three bedrooms, two bathrooms, and a powder room, this home offers the perfect space for modern living. The first floor features a bright, open-concept layout, with a spacious family room, accessible dining area, and an impressive kitchen. The kitchen includes a large island with beautiful countertops, ample cabinetry, stainless steel appliances, and a built-in pantry for added storage. Situated on the second floor, the owner's suite provides a peaceful haven, complete with a walk-in closet and a spa-inspired bathroom with double sinks, a deluxe shower, and high-end finishes. Two additional bedrooms share a full bathroom, and the practicality of a second-floor laundry room enhances the home's livability. The versatile loft and flex space offer endless possibilities for a home office, entertainment area, or extra living space to suit your needs. Throughout the home, thoughtful details like luxury vinyl plank flooring, quartz countertops, LED lighting, and decorative railings enhance both the aesthetic and functionality of every room. *Photos are not this actual home* Welcome to Lakewood Prairie, a vibrant new master-planned community offering beautifully designed new homes in Joliet, Illinois. This thoughtfully developed neighborhood features family-friendly amenities including multi-use trails, a tot lot, and plenty of open green space-perfect for enjoying the outdoors and building a connected community. Situated in the heart of Joliet, Lakewood Prairie offers more than just a place to live-it offers a lifestyle. Joliet is a city rich in history, culture, and recreation, with easy access to world-class entertainment and everyday conveniences. Explore the charm of Downtown Joliet, located along the scenic Des Plaines River. This dynamic and walkable area is filled with local restaurants, boutique shops, and renowned museums. Signature events like the Taste of Joliet festival and the Joliet Christmas Parade bring the community together year-round for celebration and fun. Lakewood Prairie combines modern suburban living with the energy and accessibility of Joliet-offering the best of both worlds for families, professionals, and everyone in between.
DAYS ON MARKET | 69 | LAST UPDATED | 10/1/2025 |
---|---|---|---|
TRACT | Lakewood Prairie | YEAR BUILT | 2025 |
COMMUNITY | Joliet | GARAGE SPACES | 3.0 |
COUNTY | Kendall | STATUS | Conditional |
PROPERTY TYPE(S) | Single Family |
School District | Minooka Community High School |
---|---|
Elementary School | Jones Elementary School |
Jr. High School | Minooka Junior High School |
High School | Minooka Community High School |
PRICE HISTORY | |
Prior to Aug 26, '25 | $455,140 |
---|---|
Aug 26, '25 - Sep 3, '25 | $447,440 |
Sep 3, '25 - Sep 9, '25 | $439,490 |
Sep 9, '25 - Sep 23, '25 | $431,490 |
Sep 23, '25 - Sep 30, '25 | $437,840 |
Sep 30, '25 - Today | $434,690 |
ADDITIONAL DETAILS | |
AIR | Central Air |
---|---|
AIR CONDITIONING | Yes |
APPLIANCES | Dishwasher, Disposal, Microwave, Range, Stainless Steel Appliance(s) |
AREA | Joliet |
BASEMENT | Daylight, Unfinished, Yes |
CONSTRUCTION | Brick, Vinyl Siding |
GARAGE | Yes |
HEAT | Forced Air, Natural Gas |
HOA DUES | 450 |
LOT | 0 |
LOT DIMENSIONS | 9150 |
PARKING | Asphalt, Garage Door Opener, On Site, Attached, Garage |
SEWER | Public Sewer |
SUBDIVISION | Lakewood Prairie |
WATER | Public |
MORTGAGE CALCULATOR
TOTAL MONTHLY PAYMENT
0
P
I
*Estimate only
SATELLITE VIEW |
/ | |
We respect your online privacy and will never spam you. By submitting this form with your telephone number
you are consenting for Humderto
Garcia to contact you even if your name is on a Federal or State
"Do not call List".
Listed with HomeSmart Connect LLC
The data relating to real estate for sale on this web site comes in part from the Broker ReciprocitySM Program of MRED. All real estate listings are marked with the Broker ReciprocitySM logo or the MRED Broker ReciprocitySM thumbnail logo (a little black house) and detailed information about them includes the name of the listing brokers.
The broker providing these data believes them to be correct, but advises interested parties to confirm them before relying on them in a purchase decision.
Copyright 2025 MRED. All rights reserved.

The broker providing these data believes them to be correct, but advises interested parties to confirm them before relying on them in a purchase decision.
Copyright 2025 MRED. All rights reserved.

This IDX solution is (c) Diverse Solutions 2025.