|
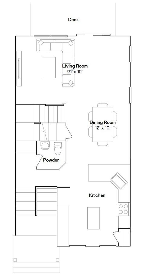
READY FOR NOVEMBER DELIVERY!! Welcome to the Chatham - a beautifully designed, three-story urban townhome where premium design and everyday ease converge harmoniously. This home offers three spacious bedrooms, two full bathrooms, and a convenient half bath. Luxury vinyl plank flooring spans the main level adding a warm and welcoming atmosphere throughout. The designer kitchen is the soul of the home, thoughtfully appointed with 42" cabinetry, elegant quartz countertops, a built-in pantry, and a jaw-dropping kitchen island. Upstairs, the primary suite is a serene sanctuary, featuring a spacious walk-in closet and a luxurious en-suite bathroom. Two additional bedrooms, a full bath, and a convenient second-floor laundry room complete the floor. Located on the lower level, the study offers endless possibilities and can be customized to suit your unique needs -limited only by your imagination. *Photos are not this actual home* This is an end unit home. Welcome to Heritage Park, a thoughtfully planned community where scenic living meets everyday convenience. Surrounded by peaceful ponds, open green spaces, and a community park at the heart of the neighborhood, Heritage Park offers a tranquil and connected lifestyle. Lindenhurst residents enjoy access to upscale shopping and dining just a short drive away in nearby metropolitan areas - perfect for both daily needs and weekend adventures. Just minutes from home, the Thomas J. Lippert Community Center provides endless outdoor recreation opportunities with walking paths, sports courts, and event spaces. For nature lovers, Hastings Lake is close by, offering boating, fishing, and scenic trails to explore year-round. Whether you're looking to relax by the water, stay active outdoors, or enjoy modern conveniences, Heritage Park places you in the center of it all - with a neighborhood design that truly feels like home.
DAYS ON MARKET | 76 | LAST UPDATED | 10/6/2025 |
---|---|---|---|
TRACT | Heritage Park | YEAR BUILT | 2025 |
COMMUNITY | Lake Villa / Lindenhurst | GARAGE SPACES | 2.0 |
COUNTY | Lake | STATUS | Conditional |
PROPERTY TYPE(S) | Condo/Townhouse/Co-Op |
School District | Lakes Community High School |
---|---|
Elementary School | Millburn C C School |
Jr. High School | Millburn C C School |
High School | Lakes Community High School |
PRICE HISTORY | |
Prior to Jul 29, '25 | $431,906 |
---|---|
Jul 29, '25 - Aug 12, '25 | $431,907 |
Aug 12, '25 - Aug 19, '25 | $421,907 |
Aug 19, '25 - Aug 26, '25 | $413,857 |
Aug 26, '25 - Sep 3, '25 | $389,857 |
Sep 3, '25 - Sep 9, '25 | $382,457 |
Sep 9, '25 - Sep 16, '25 | $371,657 |
Sep 16, '25 - Sep 23, '25 | $380,407 |
Sep 23, '25 - Today | $386,357 |
ADDITIONAL DETAILS | |
AIR | Central Air |
---|---|
AIR CONDITIONING | Yes |
AMENITIES | Insurance, Snow Removal |
APPLIANCES | Dishwasher, Disposal, Microwave, Range, Stainless Steel Appliance(s) |
AREA | Lake Villa / Lindenhurst |
BASEMENT | None |
CONSTRUCTION | Brick, Vinyl Siding |
GARAGE | Yes |
HEAT | Forced Air, Natural Gas |
HOA DUES | 225 |
LOT | 0 |
LOT DIMENSIONS | 0 |
PARKING | Asphalt, Garage Door Opener, On Site, Attached, Garage |
SEWER | Public Sewer |
STORIES | 3 |
SUBDIVISION | Heritage Park |
VIEW | Yes |
VIEW DESCRIPTION | Water |
WATER | Public |
MORTGAGE CALCULATOR
TOTAL MONTHLY PAYMENT
0
P
I
*Estimate only
SATELLITE VIEW |
/ | |
We respect your online privacy and will never spam you. By submitting this form with your telephone number
you are consenting for Humderto
Garcia to contact you even if your name is on a Federal or State
"Do not call List".
Listed with HomeSmart Connect LLC
The data relating to real estate for sale on this web site comes in part from the Broker ReciprocitySM Program of MRED. All real estate listings are marked with the Broker ReciprocitySM logo or the MRED Broker ReciprocitySM thumbnail logo (a little black house) and detailed information about them includes the name of the listing brokers.
The broker providing these data believes them to be correct, but advises interested parties to confirm them before relying on them in a purchase decision.
Copyright 2025 MRED. All rights reserved.

The broker providing these data believes them to be correct, but advises interested parties to confirm them before relying on them in a purchase decision.
Copyright 2025 MRED. All rights reserved.

This IDX solution is (c) Diverse Solutions 2025.