|
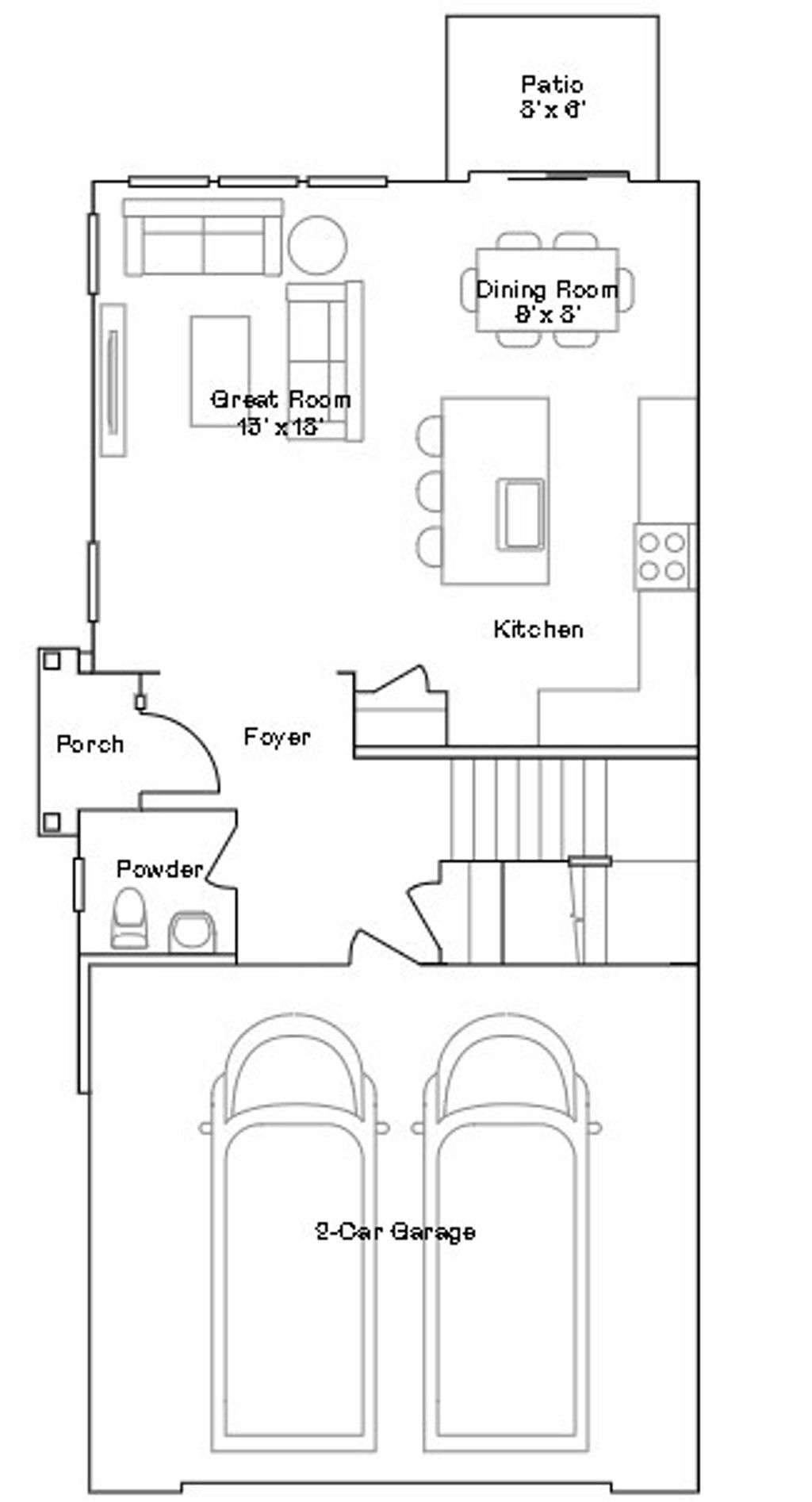
READY FOR OCTOBER DELIVERY!! Homesite #1141 Enter a sanctuary of comfort and charm in this stunning Darcy model. This three-bedroom, two-and-a-half-bathroom townhome showcases a striking contemporary design, thoughtfully crafted for modern living. The main level boasts an open-concept layout where the kitchen, great room, and dining area flow together seamlessly. Notable kitchen features include a spacious center island, sleek quartz countertops, ample cabinetry, a undermount sink, and top-of-the-line stainless steel appliances. Elegant touches-such as two-panel interior doors, classic colonist trim, luxury vinyl plank flooring, and energy-efficient LED lighting-further enhance the home's appeal. Perched on the second floor, a spacious, the light-filled loft offers a heightened sense of openness and possibility. Whether imagined as a home office, an inspiring creative studio, or a cozy reading nook, this adaptable space meets your needs with style. Completing the upstairs are three inviting bedrooms, including a luxe owner's suite designed for ultimate comfort and sophistication. The owner's suite offers a private retreat with a spacious walk-in closet, and a spa-inspired deluxe shower-your personal haven after a long day. *Photos are not this actual home* The community features an impressive collection of state-of-the-art amenities, including an 8,000-square-foot clubhouse and Tomaso Sports Park, an onsite park that is also available to the public. Talamore residents are surrounded by golf courses, recreation-rich parks and nature preserves ideal for outdoor enthusiasts. There is also a weekly farmer's market, annual events and more nearby in Downtown Huntley. Under an hour away is Chicago for big city living and access to Lake Michigan.
DAYS ON MARKET | 76 | LAST UPDATED | 8/12/2025 |
---|---|---|---|
TRACT | Talamore | YEAR BUILT | 2025 |
COMMUNITY | Huntley | GARAGE SPACES | 2.0 |
COUNTY | McHenry | STATUS | Conditional |
PROPERTY TYPE(S) | Condo/Townhouse/Co-Op |
School District | Huntley High School |
---|---|
Elementary School | Leggee Elementary School |
Jr. High School | Marlowe Middle School |
High School | Huntley High School |
ADDITIONAL DETAILS | |
AIR | Central Air |
---|---|
AIR CONDITIONING | Yes |
AMENITIES | Insurance, Snow Removal |
APPLIANCES | Dishwasher, Disposal, Microwave, Range, Stainless Steel Appliance(s) |
AREA | Huntley |
BASEMENT | None |
CONSTRUCTION | Stone, Vinyl Siding |
GARAGE | Yes |
HEAT | Forced Air, Natural Gas |
HOA DUES | 120 |
LOT | 0 |
LOT DIMENSIONS | 0 |
PARKING | Asphalt, Garage Door Opener, On Site, Attached, Garage |
SEWER | Public Sewer |
STORIES | 2 |
SUBDIVISION | Talamore |
WATER | Public |
MORTGAGE CALCULATOR
TOTAL MONTHLY PAYMENT
0
P
I
*Estimate only
SATELLITE VIEW |
/ | |
We respect your online privacy and will never spam you. By submitting this form with your telephone number
you are consenting for Humderto
Garcia to contact you even if your name is on a Federal or State
"Do not call List".
Listed with HomeSmart Connect LLC
The data relating to real estate for sale on this web site comes in part from the Broker ReciprocitySM Program of MRED. All real estate listings are marked with the Broker ReciprocitySM logo or the MRED Broker ReciprocitySM thumbnail logo (a little black house) and detailed information about them includes the name of the listing brokers.
The broker providing these data believes them to be correct, but advises interested parties to confirm them before relying on them in a purchase decision.
Copyright 2025 MRED. All rights reserved.

The broker providing these data believes them to be correct, but advises interested parties to confirm them before relying on them in a purchase decision.
Copyright 2025 MRED. All rights reserved.

This IDX solution is (c) Diverse Solutions 2025.