|
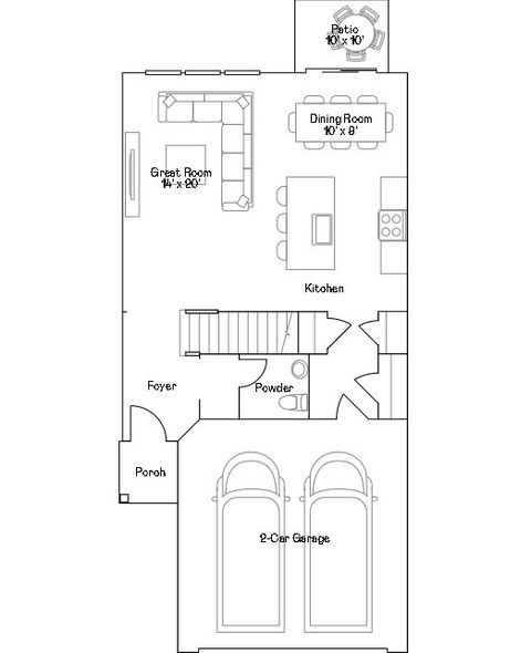
READY FOR DECEMBER DELIVERY!! Introducing the Marianne, a newly designed two-story townhome that seamlessly blends comfort and elegance. This model offers three spacious bedrooms, two full baths, a half bath, and a contemporary open-concept living space, complete with a two-car garage for added convenience. The first floor features the great room, the focal point of the home, effortlessly flowing into the dining area and the chef-inspired kitchen. The kitchen boasts a magnificent island with a breakfast bar, 42" cabinets, polished quartz countertops, and top-of-the-line stainless steel appliances. Luxury vinyl plank flooring spans the main floor, while sliding glass doors open to the patio, ideal for outdoor relaxation. On the second floor, you'll find two generously sized secondary bedrooms, along with the exquisite owner's suite-a true sanctuary to unwind after a busy day. This serene retreat includes a generous walk-in closet and a spa-inspired bath, complete with a deluxe shower for the ultimate relaxation experience. Complete with a convenient upstairs laundry room, the Marianne combines thoughtful design and modern amenities, offering both comfort and style in every corner. *Photos are not this actual home* Discover the charm and convenience of Oak Valley Townhomes, a new community offering beautifully designed townhomes in the heart of Lockport, Illinois. Nestled within a serene setting, this neighborhood features nearly nine acres of open space, including thoughtfully designed detention areas, a scenic pond overlook, and a park that seamlessly connects to nearby Creekside Park. Perfectly positioned to take advantage of both urban amenities and outdoor recreation, Oak Valley Townhomes offers a balanced lifestyle within a tight-knit, community-focused environment. Just around the corner, Heritage Park provides a welcoming mix of sports fields, picnic areas, and a well-maintained playground. Meandering walking trails, peaceful ponds, and lush green spaces make it ideal for morning jogs, family outings, or simply soaking up nature. For a deeper escape into the outdoors, the Lockport Prairie Nature Reserve invites you to explore its untouched landscapes, rare Midwest plant species, and scenic paths along the Des Plaines River. Whether you're an outdoor enthusiast, a birdwatcher, or someone looking for quiet moments in nature, the reserve offers a truly unique and calming experience. When it's time for shopping or entertainment, Orland Square is just minutes away. This vibrant retail destination features high-end stores, popular brands, and a variety of dining options. Whether you're browsing Nordstrom, catching the latest movie, or enjoying a gourmet meal, everything you need is close to home. At Oak Valley Townhomes, you'll find a perfect combination of modern living, natural beauty, and community warmth-making it an ideal place to call home.
| DAYS ON MARKET | 104 | LAST UPDATED | 10/1/2025 |
|---|---|---|---|
| TRACT | Oak Valley | YEAR BUILT | 2025 |
| COMMUNITY | Homer / Lockport | GARAGE SPACES | 2.0 |
| COUNTY | Will | STATUS | Conditional |
| PROPERTY TYPE(S) | Condo/Townhouse/Co-Op |
| School District | Lockport Township High School |
|---|---|
| Elementary School | Ludwig Elementary School |
| Jr. High School | Oak Prairie Junior High School |
| High School | Lockport Township High School |
| PRICE HISTORY | |
| Prior to Sep 30, '25 | $395,490 |
|---|---|
| Sep 30, '25 - Today | $378,490 |
| ADDITIONAL DETAILS | |
| AIR | Central Air |
|---|---|
| AIR CONDITIONING | Yes |
| AMENITIES | Insurance, Snow Removal |
| APPLIANCES | Dishwasher, Disposal, Microwave, Range, Stainless Steel Appliance(s) |
| AREA | Homer / Lockport |
| BASEMENT | None |
| CONSTRUCTION | Brick, Vinyl Siding |
| GARAGE | Yes |
| HEAT | Forced Air, Natural Gas |
| HOA DUES | 165 |
| LOT | 0 |
| LOT DIMENSIONS | 0 |
| PARKING | Asphalt, Garage Door Opener, On Site, Attached, Garage |
| SEWER | Public Sewer |
| STORIES | 2 |
| SUBDIVISION | Oak Valley |
| WATER | Public |
MORTGAGE CALCULATOR
TOTAL MONTHLY PAYMENT
0
P
I
*Estimate only
| SATELLITE VIEW |
| / | |
We respect your online privacy and will never spam you. By submitting this form with your telephone number
you are consenting for Humderto
Garcia to contact you even if your name is on a Federal or State
"Do not call List".
Listed with HomeSmart Connect LLC
The data relating to real estate for sale on this web site comes in part from the Broker ReciprocitySM Program of MRED. All real estate listings are marked with the Broker ReciprocitySM logo or the MRED Broker ReciprocitySM thumbnail logo (a little black house) and detailed information about them includes the name of the listing brokers.
The broker providing these data believes them to be correct, but advises interested parties to confirm them before relying on them in a purchase decision.
Copyright 2025 MRED. All rights reserved.

The broker providing these data believes them to be correct, but advises interested parties to confirm them before relying on them in a purchase decision.
Copyright 2025 MRED. All rights reserved.
This IDX solution is (c) Diverse Solutions 2025.