|
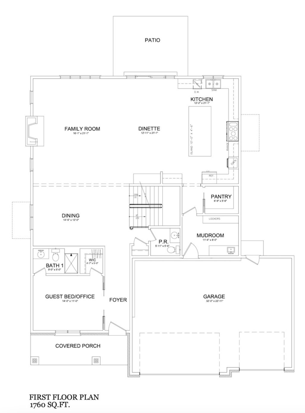
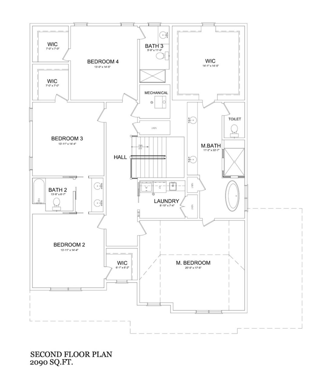
Envision your future home in the esteemed Hinsdale Central High School District, where a magnificent new construction is set to rise. This planned residence will feature 5 bedrooms and 4.1 baths, designed with modern living in mind. The family room will include a cozy gas fireplace and will seamlessly flow into the dining room and a gourmet kitchen. The kitchen will be equipped with custom cabinetry, soft-close doors and drawers, Quartz countertops with undermount sinks, a premium Subzero/Wolf appliance package, and a spacious walk-in pantry. The first floor will offer flexibility with an office space or 5th bedroom, complete with an ensuite bathroom. The design also includes a convenient mudroom with built-in lockers, cubbies, a sink, and cabinetry. Four second floor bedrooms including an expansive primary suite and second floor laundry. A 3-car attached garage with an EV charging port and a concrete driveway completes the plan, all set on a generous 75 x 400-foot lot located on a quiet street surrounded by luxury homes. Quality construction will include Stone and Hardie Board siding, a waterproofing membrane on the foundation, and architectural lifetime shingles. A covered front porch will provide a welcoming entrance, while Energy Star insulated Pella windows ensure efficiency. Two Aprilaire humidifiers, and zoned heating and cooling systems will provide comfort. A 75-gallon water heater will support all your needs, and with 10-foot ceilings in the basement and first floor, and 9-foot ceilings on the second floor, the home will offer an expansive feel. White oak hardwood flooring will grace the entire first floor, staircase, and second-floor hallway, highlighted by a custom white oak staircase with elegant black iron spindles. Anticipate enjoying this future home, with an estimated completion of April 2026, conveniently located near shopping, restaurants and major highways.
| DAYS ON MARKET | 194 | LAST UPDATED | 8/26/2025 |
|---|---|---|---|
| YEAR BUILT | 2026 | COMMUNITY | Willowbrook |
| GARAGE SPACES | 3.0 | COUNTY | DuPage |
| STATUS | Active | PROPERTY TYPE(S) | Single Family |
| School District | Hinsdale Central High School |
|---|---|
| Elementary School | Holmes Elementary School |
| Jr. High School | Westview Hills Middle School |
| High School | Hinsdale Central High School |
| ADDITIONAL DETAILS | |
| AIR | Central Air, Zoned |
|---|---|
| AIR CONDITIONING | Yes |
| APPLIANCES | Humidifier |
| AREA | Willowbrook |
| BASEMENT | Full, Unfinished, Yes |
| CONSTRUCTION | Fiber Cement, Stone |
| FIREPLACE | Yes |
| GARAGE | Attached Garage, Yes |
| HEAT | Forced Air, Natural Gas, Zoned |
| INTERIOR | In-Law Floorplan, Pantry, Walk-In Closet(s) |
| LOT | 0 |
| LOT DIMENSIONS | 75 x 404 x 83 x 405 |
| PARKING | Concrete, Garage Door Opener, Attached, Garage |
| SEWER | Public Sewer |
MORTGAGE CALCULATOR
TOTAL MONTHLY PAYMENT
0
P
I
*Estimate only
| SATELLITE VIEW |
| / | |
We respect your online privacy and will never spam you. By submitting this form with your telephone number
you are consenting for Humderto
Garcia to contact you even if your name is on a Federal or State
"Do not call List".
Listed with Compass
The data relating to real estate for sale on this web site comes in part from the Broker ReciprocitySM Program of MRED. All real estate listings are marked with the Broker ReciprocitySM logo or the MRED Broker ReciprocitySM thumbnail logo (a little black house) and detailed information about them includes the name of the listing brokers.
The broker providing these data believes them to be correct, but advises interested parties to confirm them before relying on them in a purchase decision.
Copyright 2026 MRED. All rights reserved.

The broker providing these data believes them to be correct, but advises interested parties to confirm them before relying on them in a purchase decision.
Copyright 2026 MRED. All rights reserved.
This IDX solution is (c) Diverse Solutions 2026.