|
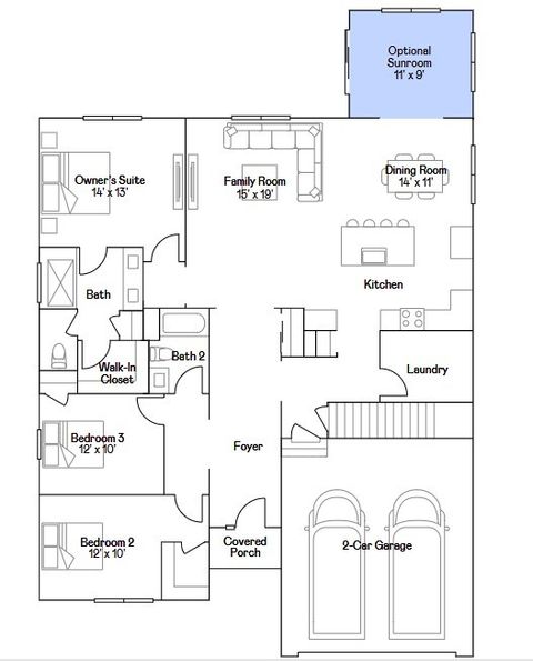
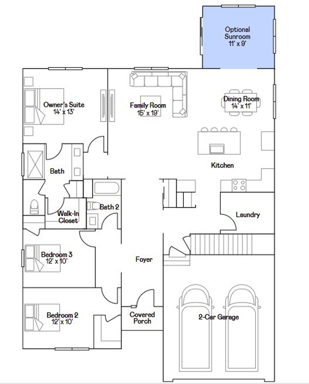
READY FOR OCTOBER DELIVERY!! Homesite #253 Step into the Siena, a thoughtfully designed single-story home that blends comfort, efficiency, and modern style. This layout features three bedrooms and two bathrooms in an open-concept design that creates a seamless flow between the family room, dining area, and kitchen. At the center of it all, the kitchen offers a spacious island, stainless steel appliances, and generous cabinetry-perfect for both daily living and casual entertaining. Luxury vinyl plank flooring extends throughout the main living areas, offering both durability and a refined look. The private owner's suite serves as a quiet retreat, complete with an expansive walk-in closet and a spa-like en-suite bathroom. Two additional bedrooms are situated near a shared hallway bath, providing flexibility for guests, family, or a home office. A two-car garage and a conveniently located laundry room add to the home's functional appeal. The Siena delivers modern living in a streamlined, practical layout designed to suit a variety of lifestyles. Exterior will be Oceanside colored siding with Sand Dune colored brick. (pic for reference ONLY). *Photos are not this actual home* Reston Ponds is a welcoming community of new single-family homes now selling in Sycamore, IL-offering residents the perfect balance of small-town charm and easy access to outdoor recreation, education, and culture. For nature lovers, nearby Shabbona Lake State Park is a year-round destination featuring a 105-acre lake ideal for fishing, boating, and water sports, along with wooded trails perfect for birdwatching, hiking, and peaceful nature walks. Adventure continues along the Great Western Trail, a scenic 18.5-mile path that provides a quiet escape from city life. Whether you're biking, walking, or simply soaking in the views, the trail's lush landscapes and abundant wildlife make every visit unforgettable. Just a short drive away, the Northern Illinois University (NIU) campus adds a vibrant layer to life in Sycamore. Enjoy cultural performances, sporting events, and art exhibits, or take advantage of world-class academic programs and research opportunities-all within reach. At Reston Ponds, you'll find more than a home-you'll discover a lifestyle surrounded by natural beauty, educational enrichment, and everyday convenience.
DAYS ON MARKET | 68 | LAST UPDATED | 8/7/2025 |
---|---|---|---|
TRACT | Reston Ponds | YEAR BUILT | 2025 |
COMMUNITY | Sycamore | GARAGE SPACES | 2.0 |
COUNTY | DeKalb | STATUS | Conditional |
PROPERTY TYPE(S) | Single Family |
School District | Sycamore High School |
---|---|
Elementary School | Southeast Elementary School |
Jr. High School | Sycamore Middle School |
High School | Sycamore High School |
PRICE HISTORY | |
Prior to Aug 5, '25 | $440,100 |
---|---|
Aug 5, '25 - Today | $425,800 |
ADDITIONAL DETAILS | |
AIR | Central Air |
---|---|
AIR CONDITIONING | Yes |
APPLIANCES | Dishwasher, Disposal, Microwave, Range, Stainless Steel Appliance(s) |
AREA | Sycamore |
BASEMENT | Full, Unfinished, Yes |
CONSTRUCTION | Stone, Vinyl Siding |
GARAGE | Yes |
HEAT | Forced Air, Natural Gas |
HOA DUES | 369 |
LOT | 0 |
LOT DIMENSIONS | 9348 |
PARKING | Asphalt, Garage Door Opener, On Site, Attached, Garage |
SEWER | Public Sewer |
SUBDIVISION | Reston Ponds |
WATER | Public |
MORTGAGE CALCULATOR
TOTAL MONTHLY PAYMENT
0
P
I
*Estimate only
SATELLITE VIEW |
/ | |
We respect your online privacy and will never spam you. By submitting this form with your telephone number
you are consenting for Humderto
Garcia to contact you even if your name is on a Federal or State
"Do not call List".
Listed with HomeSmart Connect LLC
The data relating to real estate for sale on this web site comes in part from the Broker ReciprocitySM Program of MRED. All real estate listings are marked with the Broker ReciprocitySM logo or the MRED Broker ReciprocitySM thumbnail logo (a little black house) and detailed information about them includes the name of the listing brokers.
The broker providing these data believes them to be correct, but advises interested parties to confirm them before relying on them in a purchase decision.
Copyright 2025 MRED. All rights reserved.

The broker providing these data believes them to be correct, but advises interested parties to confirm them before relying on them in a purchase decision.
Copyright 2025 MRED. All rights reserved.

This IDX solution is (c) Diverse Solutions 2025.