|
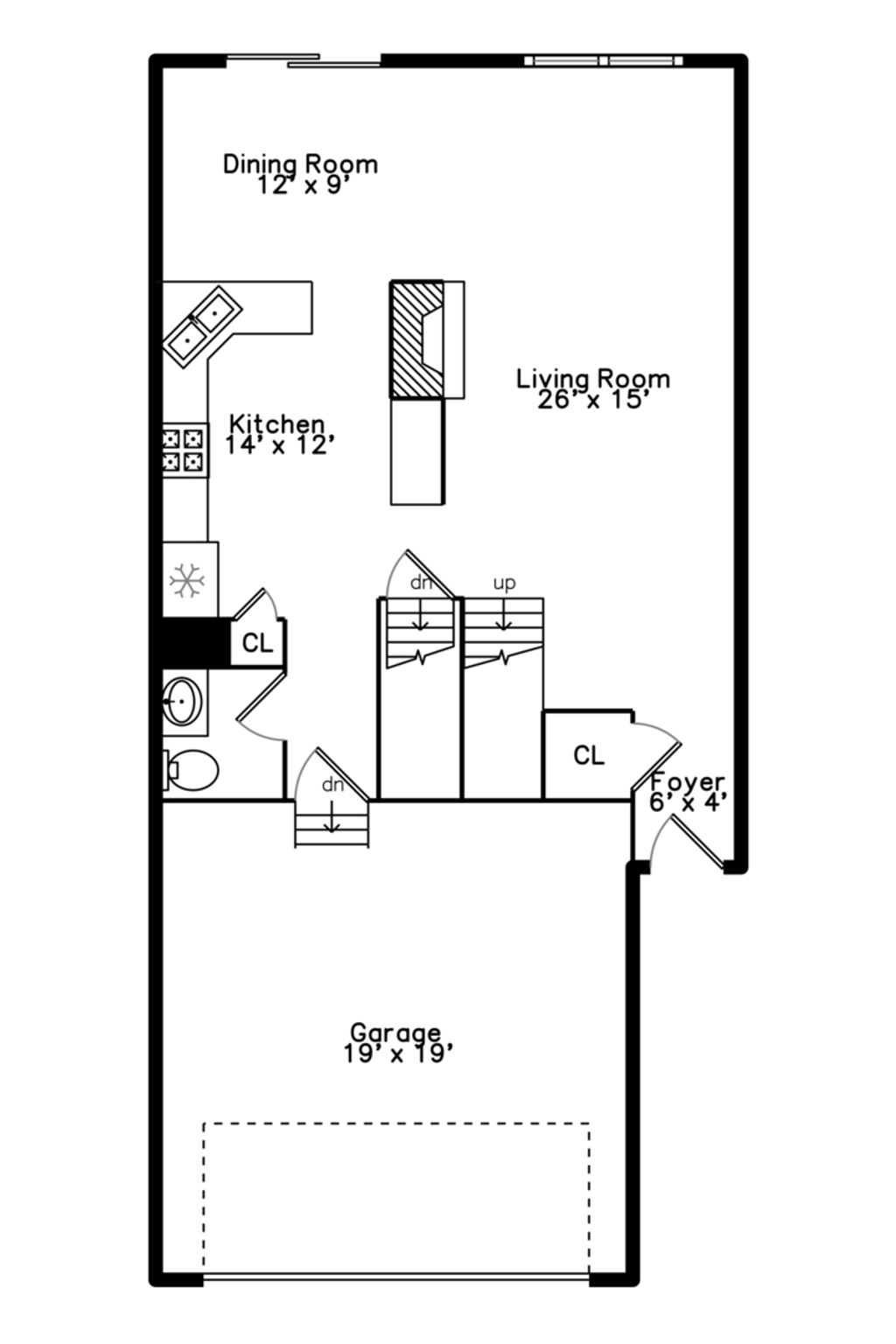
FHA APPROVED SUBDIVISION! Beautifully updated 3 bedroom/2.5 bath townhome in Southwicke. Renovated in 2019. You will be greeted by a private entrance to the first level with a large 2-story foyer - spacious living room w/abundant natural lighting and cozy fireplace - separate dining room with slider out to the patio and an updated white kitchen with multiple cabinets for storage, crown molding, granite countertops and stainless steel appliances. Upstairs you will find that the master suite boasts a remodeled bath and walk in closet. The other 2 bedrooms round out this level along with a 2nd story laundry room for ease. Newer light fixtures throughout. Full basement ready to be finished with your individual ideas. New washing machine 2024, A/C unit 2021 and roof 2020. Close to I-90, Metra, dining & shopping. Walk to park and playground and bike trails. Welcome Home!
DAYS ON MARKET | 72 | LAST UPDATED | 9/3/2025 |
---|---|---|---|
TRACT | Southwicke | YEAR BUILT | 2000 |
COMMUNITY | Streamwood | GARAGE SPACES | 2.0 |
COUNTY | Cook | STATUS | Conditional |
PROPERTY TYPE(S) | Condo/Townhouse/Co-Op |
School District | Streamwood High School |
---|---|
Elementary School | Woodland Heights Elementary Scho |
Jr. High School | Canton Middle School |
High School | Streamwood High School |
ADDITIONAL DETAILS | |
AIR | Central Air |
---|---|
AIR CONDITIONING | Yes |
AMENITIES | Insurance, Snow Removal |
APPLIANCES | Dishwasher, Dryer, Microwave, Range, Refrigerator, Stainless Steel Appliance(s), Washer |
AREA | Streamwood |
BASEMENT | Full, Unfinished, Yes |
CONSTRUCTION | Brick |
GARAGE | Yes |
HEAT | Forced Air, Natural Gas |
HOA DUES | 214 |
INTERIOR | Cathedral Ceiling(s), Entrance Foyer, Walk-In Closet(s) |
LOT | 0 |
LOT DIMENSIONS | 1700 |
PARKING | Asphalt, Garage Door Opener, On Site, Attached, Garage |
SEWER | Public Sewer |
STORIES | 2 |
SUBDIVISION | Southwicke |
TAXES | 6238 |
MORTGAGE CALCULATOR
TOTAL MONTHLY PAYMENT
0
P
I
*Estimate only
SATELLITE VIEW |
/ | |
We respect your online privacy and will never spam you. By submitting this form with your telephone number
you are consenting for Humderto
Garcia to contact you even if your name is on a Federal or State
"Do not call List".
Listed with RE/MAX Suburban
The data relating to real estate for sale on this web site comes in part from the Broker ReciprocitySM Program of MRED. All real estate listings are marked with the Broker ReciprocitySM logo or the MRED Broker ReciprocitySM thumbnail logo (a little black house) and detailed information about them includes the name of the listing brokers.
The broker providing these data believes them to be correct, but advises interested parties to confirm them before relying on them in a purchase decision.
Copyright 2025 MRED. All rights reserved.

The broker providing these data believes them to be correct, but advises interested parties to confirm them before relying on them in a purchase decision.
Copyright 2025 MRED. All rights reserved.

This IDX solution is (c) Diverse Solutions 2025.