|
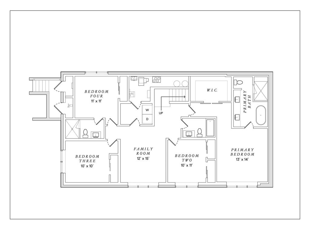
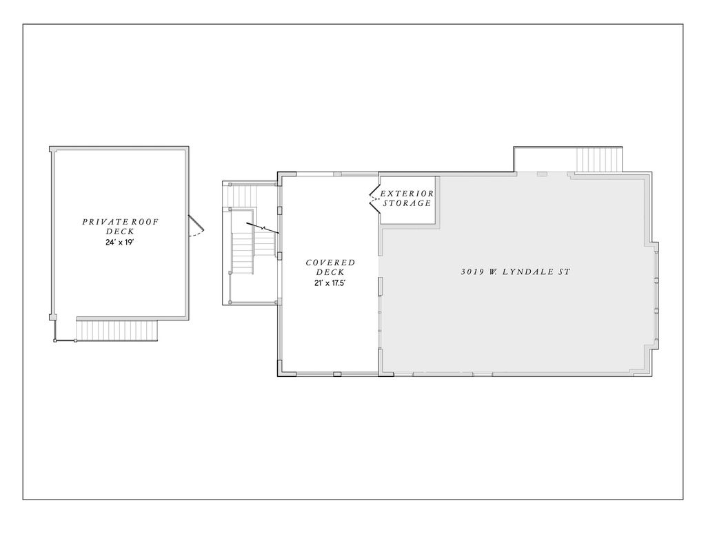
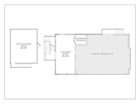
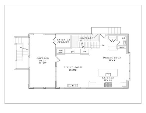
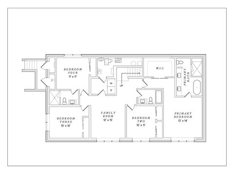
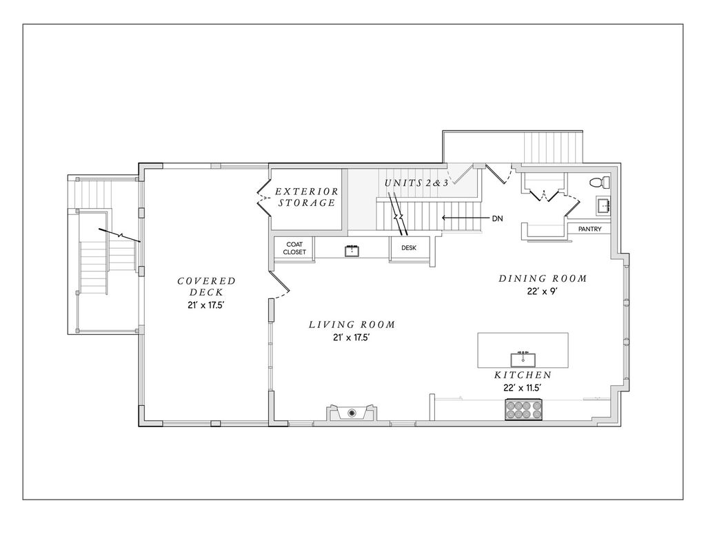
Extra Wide, New Construction Duplex Down designed by Studio Group and Built by V&M Development Delivering in October 2025. This home features a one of a kind floor plan with 4 bedrooms, 3.5 Bathrooms, 2 family rooms and separate levels, 2 outdoor spaces and 2 parking spaces. The amazing kitchen has a massive 12' center island with seating on three sides, hand-built custom cabinetry, a 48" Wolf Range with double ovens, a built in Sub-Zero refrigerator, designer lighting, quartz countertops and a separate pantry with a custom door. The living room features a fireplace and the designer's custom pocket bar with 2 rolling panel doors, oak shelving with brass hardware, antique tile backsplash, quartz countertop, bar sink and a Sub Zero beverage refrigerator. The wet bar is flanked on each side with a built in mud room & work station/desk. The entertainment space continues from the family room & wet bar to a private, massive covered patio, built out with stone pavers, water and natural gas. The second outdoor space is the private roof deck of the 3 car garage. On the lower level, the large primary suite is features a large walk in closet and a spa like bathroom with a Steam shower with a bench & multiple shower heads, a separate soaking tub, heated floors, gold fixtures and a huge double vanity with lots of storage. The lower level has a second family room, in additional to the primary suite and 3 additional bedrooms. The two middle bedrooms are large are served by a full bath with a tub and large vanity with lots of storage. The third bedroom has an on suite bathroom perfect for overnight guests. Hot water radiant heat on the lower level, on demand hot water, high efficiency HVAC system with smart thermostat, hardwired security system included and fully pre-wired for audio & technology upgrades. Professionally designed, with thoughtfully curated, top of the line finishes throughout and meticulous attention to detail, this is truly a one of kind home. All of this in the heart of Logan Square, around the corner from beautiful Palmer Square Park, within walking distance to your favorite restaurants bars & shops, and the California or Logan Blue Line stops.
DAYS ON MARKET | 65 | LAST UPDATED | 8/15/2025 |
---|---|---|---|
YEAR BUILT | 2025 | COMMUNITY | CHI - Logan Square |
GARAGE SPACES | 1.0 | COUNTY | Cook |
STATUS | Conditional | PROPERTY TYPE(S) | Condo/Townhouse/Co-Op |
ADDITIONAL DETAILS | |
AIR | Central Air |
---|---|
AIR CONDITIONING | Yes |
AMENITIES | Insurance, Snow Removal, Water |
AREA | CHI - Logan Square |
BASEMENT | Daylight, Finished, Yes |
CONSTRUCTION | Brick, Concrete, Fiber Cement |
FIREPLACE | Yes |
GARAGE | Yes |
HEAT | Natural Gas, Radiant Floor |
HOA DUES | 300 |
INTERIOR | Walk-In Closet(s), Wet Bar |
LOT | 0 |
LOT DIMENSIONS | Common |
PARKING | On Site, Detached, Assigned, Garage |
SEWER | Public Sewer |
STORIES | 3 |
TAXES | 5143 |
WATER | Public |
MORTGAGE CALCULATOR
TOTAL MONTHLY PAYMENT
0
P
I
*Estimate only
SATELLITE VIEW |
/ | |
We respect your online privacy and will never spam you. By submitting this form with your telephone number
you are consenting for Humderto
Garcia to contact you even if your name is on a Federal or State
"Do not call List".
Listed with @properties Christie's International Real Estate
The data relating to real estate for sale on this web site comes in part from the Broker ReciprocitySM Program of MRED. All real estate listings are marked with the Broker ReciprocitySM logo or the MRED Broker ReciprocitySM thumbnail logo (a little black house) and detailed information about them includes the name of the listing brokers.
The broker providing these data believes them to be correct, but advises interested parties to confirm them before relying on them in a purchase decision.
Copyright 2025 MRED. All rights reserved.

The broker providing these data believes them to be correct, but advises interested parties to confirm them before relying on them in a purchase decision.
Copyright 2025 MRED. All rights reserved.

This IDX solution is (c) Diverse Solutions 2025.