|
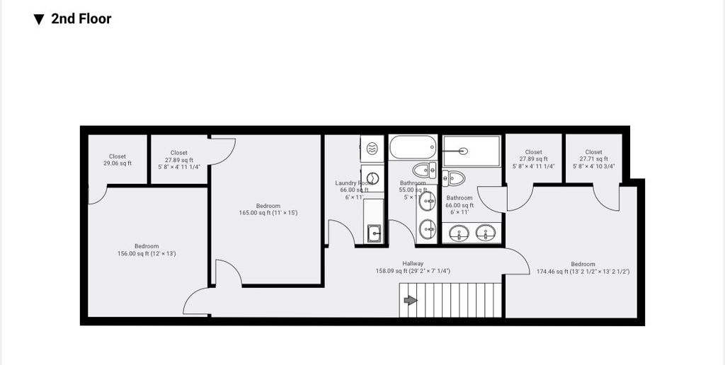
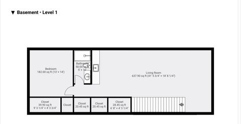
Welcome to 4548 N. Kildare, an extraordinary newer construction home built in 2017 that perfectly blends suburban-like tranquility with city convenience in the heart of the desirable Mayfair neighborhood. Nestled on a serene, tree-lined street and set on an extra-deep lot with stunning curb appeal, this 4-bedroom, 3.5-bath residence offers architectural elegance, thoughtful design and luxury finishes throughout. From the charming cedar board front porch to the inviting foyer with gleaming hardwood floors, detailed ceiling and lighting, every space is crafted for both style and comfort. The formal living and dining areas boast a cozy fireplace and flow seamlessly into a chef's dream kitchen featuring high-end Bosch appliances, ceiling-height cabinetry, built-in pantry with pull out shelving, and a sleek butler's pantry with beverage fridge. The adjacent family room overlooks a professionally landscaped backyard oasis complete with a spacious patio perfect for entertaining. Upstairs, the luxurious primary suite includes a spa-inspired ensuite bath with heated floors, a walk-in shower, and two custom walk-in closets. Two additional generously sized bedrooms feature custom wall moldings and Elfa closet systems. A full laundry room with cabinetry, folding counter, and utility sink, plus a double vanity hall bath, round out the second floor. The fully finished lower level offers a massive recreation room, wet bar with beverage fridge, a versatile fourth bedroom with a built-in Murphy bed, and a full bath - ideal for hosting guests or creating a home office or gym. Additional features include 9-foot ceilings on all three levels, Hunter Douglas window treatments, unbeatable access to the Montrose Blue Line, I-90/94, and neighborhood favorites like Mayfair Park, the North Branch Trail, and acclaimed dining such as Old Irving Brewery. This home is a rare opportunity to enjoy sophisticated city living while embracing the warmth and charm of a close-knit neighborhood.
| DAYS ON MARKET | 90 | LAST UPDATED | 8/13/2025 |
|---|---|---|---|
| YEAR BUILT | 2017 | COMMUNITY | CHI - Irving Park |
| GARAGE SPACES | 2.0 | COUNTY | Cook |
| STATUS | Conditional | PROPERTY TYPE(S) | Single Family |
| ADDITIONAL DETAILS | |
| AIR | Central Air, Zoned |
|---|---|
| AIR CONDITIONING | Yes |
| APPLIANCES | Dishwasher, Disposal, Dryer, Humidifier, Microwave, Range, Range Hood, Refrigerator, Stainless Steel Appliance(s), Washer |
| AREA | CHI - Irving Park |
| BASEMENT | Daylight, Finished, Full, Sump Pump, Yes |
| CONSTRUCTION | Other |
| FIREPLACE | Yes |
| GARAGE | Yes |
| HEAT | Forced Air, Natural Gas, Zoned |
| LOT | 0 |
| LOT DIMENSIONS | 25X143.5 |
| PARKING | On Site, Detached, Garage |
| SEWER | Public Sewer |
| TAXES | 13575 |
| WATER | Public |
MORTGAGE CALCULATOR
TOTAL MONTHLY PAYMENT
0
P
I
*Estimate only
| SATELLITE VIEW |
| / | |
We respect your online privacy and will never spam you. By submitting this form with your telephone number
you are consenting for Humderto
Garcia to contact you even if your name is on a Federal or State
"Do not call List".
Listed with Fulton Grace Realty
The data relating to real estate for sale on this web site comes in part from the Broker ReciprocitySM Program of MRED. All real estate listings are marked with the Broker ReciprocitySM logo or the MRED Broker ReciprocitySM thumbnail logo (a little black house) and detailed information about them includes the name of the listing brokers.
The broker providing these data believes them to be correct, but advises interested parties to confirm them before relying on them in a purchase decision.
Copyright 2025 MRED. All rights reserved.

The broker providing these data believes them to be correct, but advises interested parties to confirm them before relying on them in a purchase decision.
Copyright 2025 MRED. All rights reserved.
This IDX solution is (c) Diverse Solutions 2025.