|
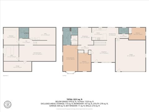
Beautiful & updated brick ranch with 2 car overside garage located on the edge of Chenoa is ready for new owners! Main level of home has 3 bedrooms, 2 full baths, a great updated kitchen with oak cabinetry and an eating nook, new microwave, fridge, and pantry which lead to a separate formal dining room. 6 inch oak trim is located throughout the entire home. The generous primary has an on suite including a walk in shower, his & her sinks with beautiful oak cabinetry, a spacious walk in closet, and laundry room! In the fully finished basement you will find custom wainscoting in the large family room area, an additional bedroom (currently utilized as a craft room/office) & full updated bathroom. There is also a great potential for a 5th bedroom (it has an egress window) which is currently setup as a workshop, but could be finished off with drywall easily. The backyard has a wonderful deck with beautiful landscaping & perennial flowers/bushes planted. Pella windows throughout. Water heater '09. Furnace & AC serviced & maintained well from '98. All appliances stay. Whole house generator (Generac) has 16 circuits & is serviced annually. Solar panels are leased to buy with EverBrite and are 2 years old. These must be sold with the house. Carpets have just been professionally cleaned & this home is move in ready! Make the call today to make it yours!
| DAYS ON MARKET | 264 | LAST UPDATED | 2/10/2026 |
|---|---|---|---|
| TRACT | Not Applicable | YEAR BUILT | 1998 |
| COMMUNITY | Chenoa | GARAGE SPACES | 2.0 |
| COUNTY | McLean | STATUS | Conditional |
| PROPERTY TYPE(S) | Single Family |
| School District | Prairie Central High School |
|---|---|
| Elementary School | Chenoa Elementary |
| Jr. High School | Prairie Central Jr High |
| High School | Prairie Central High School |
| ADDITIONAL DETAILS | |
| AIR | Ceiling Fan(s), Central Air |
|---|---|
| AIR CONDITIONING | Yes |
| APPLIANCES | Dishwasher, Disposal, Dryer, Microwave, Range, Refrigerator, Stainless Steel Appliance(s), Washer |
| AREA | Chenoa |
| BASEMENT | Finished, Full, Sump Pump, Yes |
| CONSTRUCTION | Brick, Vinyl Siding |
| GARAGE | Attached Garage, Yes |
| HEAT | Forced Air, Natural Gas |
| INTERIOR | Built-in Features, Pantry, Walk-In Closet(s) |
| LOT | 0.28 acre(s) |
| LOT DIMENSIONS | 90 x 140 |
| PARKING | Asphalt, Concrete, Garage Door Opener, Attached, Garage |
| SEWER | Public Sewer |
| STYLE | Ranch |
| SUBDIVISION | Not Applicable |
| WATER | Public |
MORTGAGE CALCULATOR
TOTAL MONTHLY PAYMENT
0
P
I
*Estimate only
| SATELLITE VIEW |
| / | |
We respect your online privacy and will never spam you. By submitting this form with your telephone number
you are consenting for Humderto
Garcia to contact you even if your name is on a Federal or State
"Do not call List".
Listed with Coldwell Banker Real Estate Group
The data relating to real estate for sale on this web site comes in part from the Broker ReciprocitySM Program of MRED. All real estate listings are marked with the Broker ReciprocitySM logo or the MRED Broker ReciprocitySM thumbnail logo (a little black house) and detailed information about them includes the name of the listing brokers.
The broker providing these data believes them to be correct, but advises interested parties to confirm them before relying on them in a purchase decision.
Copyright 2026 MRED. All rights reserved.

The broker providing these data believes them to be correct, but advises interested parties to confirm them before relying on them in a purchase decision.
Copyright 2026 MRED. All rights reserved.
This IDX solution is (c) Diverse Solutions 2026.