|
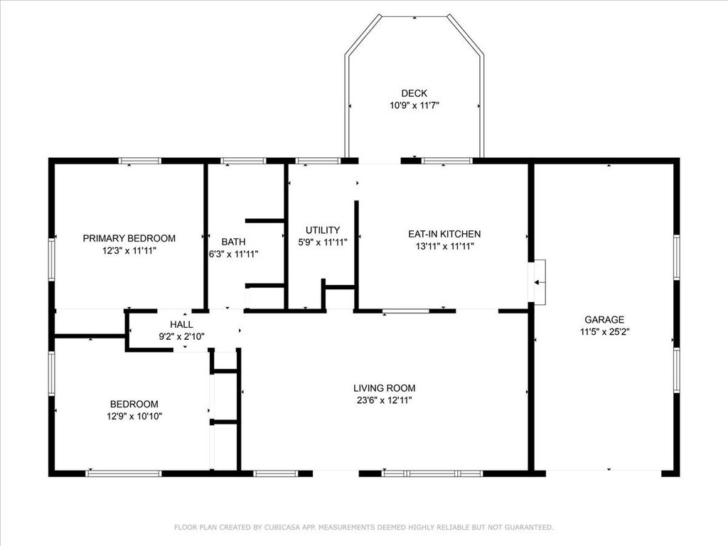
This charming ranch-style home offers comfortable, single-level living with a welcoming and functional layout. Featuring two bedrooms and one bathroom, the home boasts hard-surface flooring throughout for easy maintenance and a clean, modern feel. The spacious living areas flow seamlessly, creating a warm and inviting atmosphere. Outside, a large yard provides plenty of room for outdoor activities, gardening, or simply enjoying the fresh air, while the nice wood deck is perfect for relaxing or entertaining. An attached one-car garage adds convenience and additional storage, making this home a wonderful option for anyone seeking a move-in ready property with great outdoor space.
DAYS ON MARKET | 64 | LAST UPDATED | 9/29/2025 |
---|---|---|---|
YEAR BUILT | 1958 | COMMUNITY | Southern Champaign County / Douglas County |
GARAGE SPACES | 1.0 | COUNTY | Douglas |
STATUS | Active | PROPERTY TYPE(S) | Single Family |
School District | Tuscola High School |
---|---|
Elementary School | Tuscola Elementary School |
Jr. High School | Tuscola Junior High School |
High School | Tuscola High School |
PRICE HISTORY | |
Prior to Sep 16, '25 | $135,000 |
---|---|
Sep 16, '25 - Sep 29, '25 | $129,900 |
Sep 29, '25 - Today | $124,900 |
ADDITIONAL DETAILS | |
AIR | Wall Unit(s) |
---|---|
AIR CONDITIONING | Yes |
APPLIANCES | Dryer, Microwave, Range Hood, Refrigerator, Washer |
AREA | Southern Champaign County / Douglas County |
BASEMENT | None |
CONSTRUCTION | Aluminum Siding |
GARAGE | Yes |
HEAT | Natural Gas |
LOT | 0 |
LOT DIMENSIONS | 78 x 99 |
PARKING | On Site, Attached, Off Street, Driveway, Garage |
SEWER | Public Sewer |
TAXES | 1354.94 |
WATER | Public |
MORTGAGE CALCULATOR
TOTAL MONTHLY PAYMENT
0
P
I
*Estimate only
SATELLITE VIEW |
/ | |
We respect your online privacy and will never spam you. By submitting this form with your telephone number
you are consenting for Humderto
Garcia to contact you even if your name is on a Federal or State
"Do not call List".
Listed with Trautman Real Estate Agency & Appraisal LLC
The data relating to real estate for sale on this web site comes in part from the Broker ReciprocitySM Program of MRED. All real estate listings are marked with the Broker ReciprocitySM logo or the MRED Broker ReciprocitySM thumbnail logo (a little black house) and detailed information about them includes the name of the listing brokers.
The broker providing these data believes them to be correct, but advises interested parties to confirm them before relying on them in a purchase decision.
Copyright 2025 MRED. All rights reserved.

The broker providing these data believes them to be correct, but advises interested parties to confirm them before relying on them in a purchase decision.
Copyright 2025 MRED. All rights reserved.

This IDX solution is (c) Diverse Solutions 2025.