|
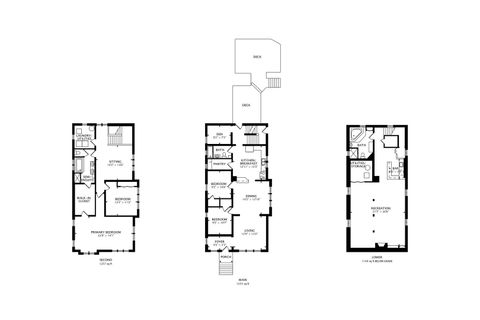
Discover the perfect blend of space, style, and comfort in this beautifully updated 4-bedroom, 3-bath home with a dedicated office, set on an expansive lot-ideal for multi-generational living. The sun-filled foyer leads into an open-concept main floor with a modern kitchen, granite countertops, stainless steel appliances (including a smart fridge), peninsula seating, and a walk-in pantry. Two spacious bedrooms, a bright office, and a full bath complete the first level. Upstairs, enjoy a large recreation room, a luxurious Jack & Jill bath with jacuzzi and walk-in shower, a huge master suite with walk-in closet, a generous fourth bedroom, full laundry room, and a walkable attic that can be finished for additional living space. The finished basement features a full bath with jacuzzi, walk-in shower, kitchenette with bar, wine rack, and dishwasher, plus a gas fireplace and pet play area-perfect for guests or extended family. Outside, relax on the massive two-level Trex deck with retractable awning, oak tree centerpiece, and grassy yard. A newer 3-car garage, shed, and long side drive provide ample parking and storage. Updates include new copper water pipes, acoustically-rated windows, newer fence, electric panel, and water heaters. Minutes from O'Hare, highways, and public transit-this home truly has it all!
| DAYS ON MARKET | 133 | LAST UPDATED | 9/4/2025 |
|---|---|---|---|
| YEAR BUILT | 1926 | COMMUNITY | Schiller Park |
| GARAGE SPACES | 3.0 | COUNTY | Cook |
| STATUS | Active | PROPERTY TYPE(S) | Single Family |
| School District | East Leyden High School |
|---|---|
| Elementary School | John F Kennedy Elementary School |
| Jr. High School | Lincoln Middle School |
| High School | East Leyden High School |
| PRICE HISTORY | |
| Prior to Sep 4, '25 | $600,000 |
|---|---|
| Sep 4, '25 - Today | $595,000 |
| ADDITIONAL DETAILS | |
| AIR | Central Air |
|---|---|
| AIR CONDITIONING | Yes |
| APPLIANCES | Dishwasher, Microwave, Range, Stainless Steel Appliance(s) |
| AREA | Schiller Park |
| BASEMENT | Bath/Stubbed, Finished, Full, Storage Space, Yes |
| CONSTRUCTION | Vinyl Siding |
| FIREPLACE | Yes |
| GARAGE | Yes |
| HEAT | Forced Air, Natural Gas |
| INTERIOR | Entrance Foyer, Granite Counters, Open Floorplan, Pantry, Walk-In Closet(s), Wet Bar |
| LOT | 10019 sq ft |
| LOT DIMENSIONS | 50X200 |
| PARKING | Asphalt, Garage Door Opener, Garage, On Site, Detached, Driveway |
| SEWER | Public Sewer |
| TAXES | 6981 |
| WATER | Public |
MORTGAGE CALCULATOR
TOTAL MONTHLY PAYMENT
0
P
I
*Estimate only
| SATELLITE VIEW |
| / | |
We respect your online privacy and will never spam you. By submitting this form with your telephone number
you are consenting for Humderto
Garcia to contact you even if your name is on a Federal or State
"Do not call List".
Listed with @properties Christie's International Real Estate
The data relating to real estate for sale on this web site comes in part from the Broker ReciprocitySM Program of MRED. All real estate listings are marked with the Broker ReciprocitySM logo or the MRED Broker ReciprocitySM thumbnail logo (a little black house) and detailed information about them includes the name of the listing brokers.
The broker providing these data believes them to be correct, but advises interested parties to confirm them before relying on them in a purchase decision.
Copyright 2025 MRED. All rights reserved.

The broker providing these data believes them to be correct, but advises interested parties to confirm them before relying on them in a purchase decision.
Copyright 2025 MRED. All rights reserved.
This IDX solution is (c) Diverse Solutions 2025.