|
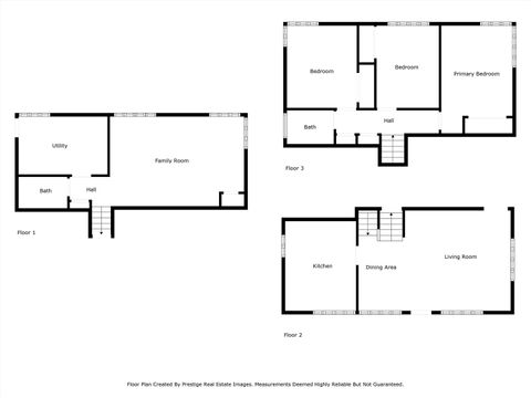
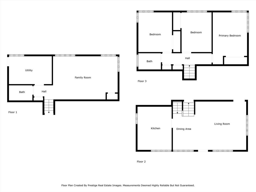
*** SELLER OFFERING ADDITIONAL $5,000 toward future taxes! BEAUTIFUL SETTING FOR THIS UPDATED 3 BR/2 BATH SPLIT LEVEL on a quiet street, backing onto a FANTASTIC GREEN SPACE WITH WALKING TRAILS! ~ You are welcomed into a LIGHT-FILLED & OPEN living & dining room area featuring NEW LUXURY VINYL PLANK FLOORING and a neutral palette ~ Follow the new flooring into the HANDSOME KITCHEN offering newer GRANITE COUNTERTOPS, BLACK STAINLESS STEEL appliances, and GLASS-TILED BACKSPLASH, plus plentiful custom wood cabinetry & ample space for a table set or baker's rack ~ The lower level also boasts newer LVP flooring in the HUGE FAMILY ROOM with abundant windows, full bathroom, and nice-sized laundry/utility room (washer & dryer included) ~ Completing the picture upstairs are 3 bedrooms with GLEAMING HARDWOOD FLOORING & another full bathroom with NEW CERAMIC FLOOR ~ GREAT STORAGE includes easy attic access in hallway, doors to area under stairs, & living room built-in ~ ROOMY 2.5 CAR GARAGE will keep your car out of the elements & handily store your outdoor items ~ OUTDOOR LIVING includes a PRIVATE, PARTIALLY FENCED YARD, patio, & fire pit, all adjoining awesome Winnebago Park ~ NEW/NEWER windows, exterior doors, hot water tank, flooring, & overhead garage door ~ CONVENIENT LOCATION near x-ways, Metra train, shopping, dining, parks (including Central Park), PF public library, & schools ~ NOTHING TO DO BUT UNPACK!
| DAYS ON MARKET | 106 | LAST UPDATED | 11/3/2025 |
|---|---|---|---|
| YEAR BUILT | 1956 | COMMUNITY | Park Forest |
| GARAGE SPACES | 2.5 | COUNTY | Cook |
| STATUS | Conditional | PROPERTY TYPE(S) | Single Family |
| School District | Fine Arts And Communications Cam |
|---|---|
| High School | Fine Arts And Communications Cam |
| PRICE HISTORY | |
| Prior to Sep 4, '25 | $205,000 |
|---|---|
| Sep 4, '25 - Sep 17, '25 | $199,900 |
| Sep 17, '25 - Oct 7, '25 | $197,500 |
| Oct 7, '25 - Today | $197,450 |
| ADDITIONAL DETAILS | |
| AIR | Central Air |
|---|---|
| AIR CONDITIONING | Yes |
| APPLIANCES | Dishwasher, Dryer, Range, Refrigerator, Stainless Steel Appliance(s), Washer |
| AREA | Park Forest |
| BASEMENT | Finished, Partial, Yes |
| CONSTRUCTION | Brick, Vinyl Siding |
| EXTERIOR | Fire Pit |
| GARAGE | Yes |
| HEAT | Forced Air, Natural Gas |
| INTERIOR | Granite Counters |
| LOT | 0 |
| LOT DIMENSIONS | 57x117x81x121 |
| PARKING | Concrete, Garage Door Opener, Detached, Garage |
| SEWER | Public Sewer |
| TAXES | 9478.38 |
| UTILITIES | Cable Available |
| WATER | Public |
MORTGAGE CALCULATOR
TOTAL MONTHLY PAYMENT
0
P
I
*Estimate only
| SATELLITE VIEW |
| / | |
We respect your online privacy and will never spam you. By submitting this form with your telephone number
you are consenting for Humderto
Garcia to contact you even if your name is on a Federal or State
"Do not call List".
Listed with Re/Max 10
The data relating to real estate for sale on this web site comes in part from the Broker ReciprocitySM Program of MRED. All real estate listings are marked with the Broker ReciprocitySM logo or the MRED Broker ReciprocitySM thumbnail logo (a little black house) and detailed information about them includes the name of the listing brokers.
The broker providing these data believes them to be correct, but advises interested parties to confirm them before relying on them in a purchase decision.
Copyright 2025 MRED. All rights reserved.

The broker providing these data believes them to be correct, but advises interested parties to confirm them before relying on them in a purchase decision.
Copyright 2025 MRED. All rights reserved.
This IDX solution is (c) Diverse Solutions 2025.