|
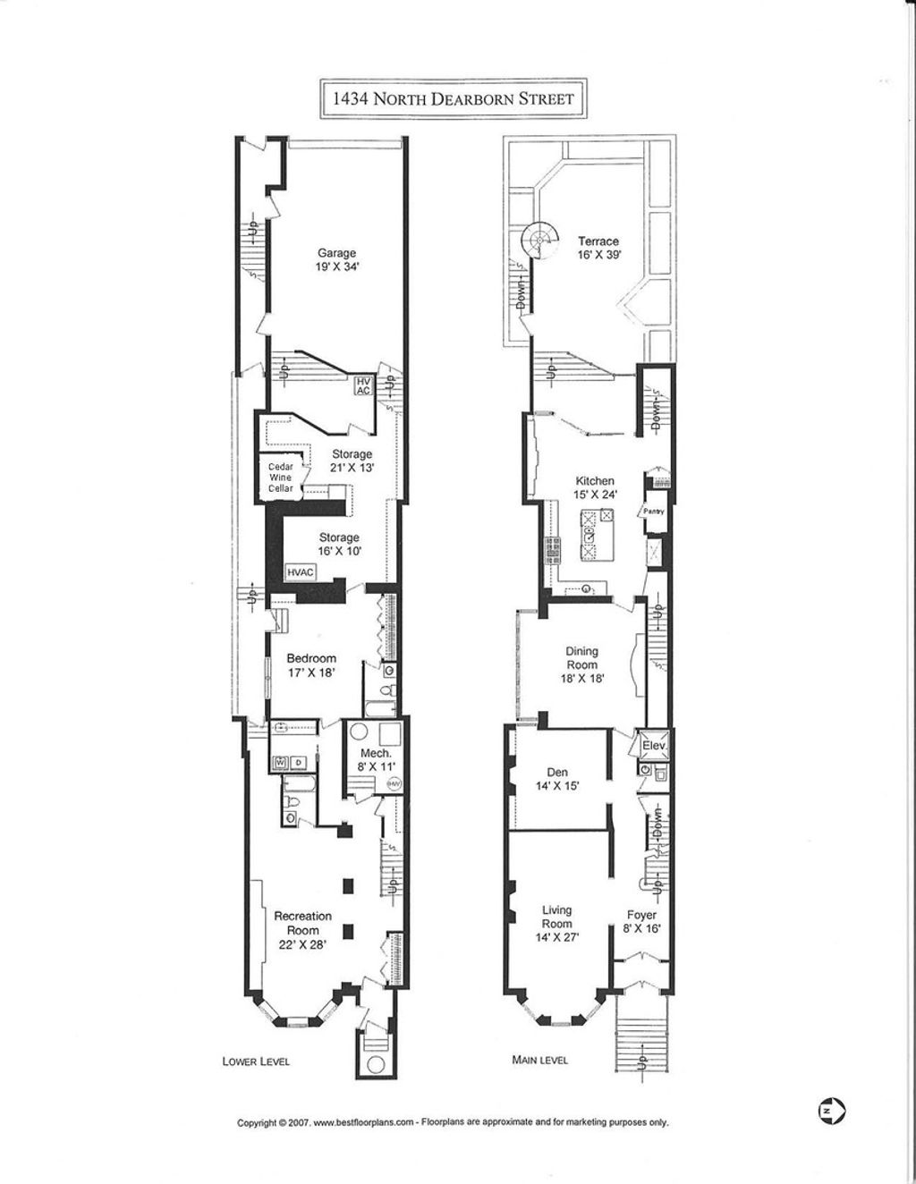
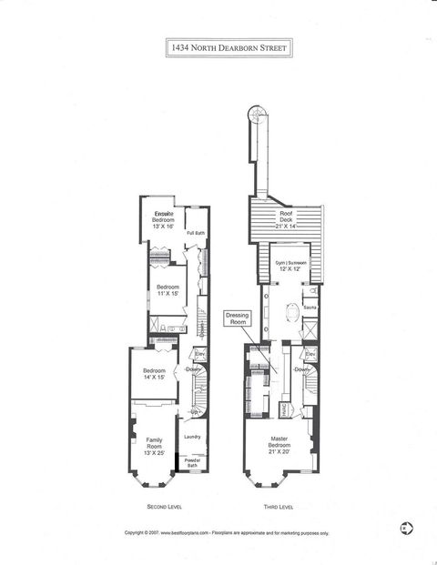
On one of the Gold Coast's most enchanting tree-lined streets, this limestone residence blends historic grace with modern sophistication. Set on an extraordinary 25x149 lot, the home offers soaring ceilings, original millwork, and elegant architectural detail seamlessly paired with subtle, natural Scandinavian design, and amazing outdoor space. Flooded with natural light throughout, every space has been designed to elevate both daily living and entertaining. The second level features three spacious bedrooms (one with its own ensuite bath), an additional 1.5 baths, and a large light-filled family room, and newly renovated laundry room, creating a functional and family-friendly layout. At the heart of the home, the kitchen and family room showcase a modern fireplace with storage and a dramatic wall of glass opening directly to a large back terrace, an ideal setting for effortless indoor-outdoor living. Expansive living and dining rooms highlight timeless proportions, while the flexible lower level with guest suite offers comfort and versatility. The top level is a private primary sanctuary, complete with an all-new spa-like bath clad in slate and travertine and accented with gorgeous hemlock wood. A soaking tub positioned beneath a skylight creates a serene focal point, while a sauna and an attached yoga/workout room extend the home's commitment to wellness. Just beyond, a private terrace provides a tranquil third floor retreat in the treetops. Additional highlights include a private elevator, updated baths, a new laundry room conveniently located on the bedroom level, and a rare attached 3.5-car garage. Multiple outdoor terraces enhance the sense of space and connection to the outdoors. Steps from the lakefront, parks, world-class shopping, dining, and the renowned Latin School of Chicago, this Gold Coast residence is more than a home, it's a lifestyle of elegance, wellness, and sophistication in the city's most iconic neighborhood.
| DAYS ON MARKET | 131 | LAST UPDATED | 8/17/2025 |
|---|---|---|---|
| YEAR BUILT | 1888 | COMMUNITY | CHI - Near North Side |
| GARAGE SPACES | 3.0 | COUNTY | Cook |
| STATUS | Active | PROPERTY TYPE(S) | Single Family |
| School District | Lincoln Park High School |
|---|---|
| Elementary School | Ogden Elementary |
| Jr. High School | Ogden Elementary |
| High School | Lincoln Park High School |
| ADDITIONAL DETAILS | |
| AIR | Central Air, Dual, Zoned |
|---|---|
| AIR CONDITIONING | Yes |
| APPLIANCES | Dishwasher, Disposal, Double Oven, Dryer, Freezer, Microwave, Range, Range Hood, Refrigerator, Washer |
| AREA | CHI - Near North Side |
| BASEMENT | Daylight, Full, Partially Finished, Yes |
| FIREPLACE | Yes |
| GARAGE | Attached Garage, Yes |
| HEAT | Natural Gas, Radiant, Radiant Floor, Steam |
| INTERIOR | Elevator, Granite Counters, Sauna, Walk-In Closet(s) |
| LOT | 0 |
| LOT DIMENSIONS | 25 x 149 |
| PARKING | Heated Garage, Attached, Garage |
| SEWER | Public Sewer |
| TAXES | 80372.9 |
MORTGAGE CALCULATOR
TOTAL MONTHLY PAYMENT
0
P
I
*Estimate only
| SATELLITE VIEW |
| / | |
We respect your online privacy and will never spam you. By submitting this form with your telephone number
you are consenting for Humderto
Garcia to contact you even if your name is on a Federal or State
"Do not call List".
Listed with @properties Christie's International Real Estate
The data relating to real estate for sale on this web site comes in part from the Broker ReciprocitySM Program of MRED. All real estate listings are marked with the Broker ReciprocitySM logo or the MRED Broker ReciprocitySM thumbnail logo (a little black house) and detailed information about them includes the name of the listing brokers.
The broker providing these data believes them to be correct, but advises interested parties to confirm them before relying on them in a purchase decision.
Copyright 2025 MRED. All rights reserved.

The broker providing these data believes them to be correct, but advises interested parties to confirm them before relying on them in a purchase decision.
Copyright 2025 MRED. All rights reserved.
This IDX solution is (c) Diverse Solutions 2025.