| 
 | 
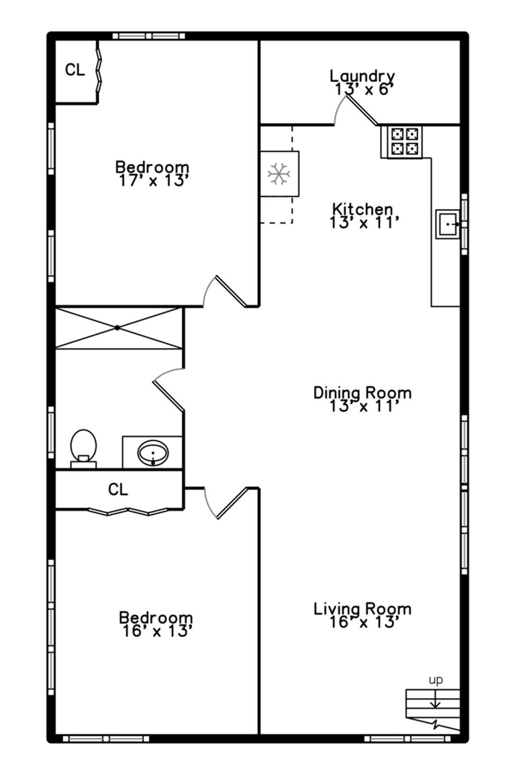
Welcome to spacious and beautifully designed 2023 new construction single family home, perfectly situated in the highly desirable Melrose Park neighborhood. The first floor features three bedrooms and one bath, offering a bright and inviting living space with hardwood flooring, large sun-filled windows, skylight windows and a modern kitchen equipped with stainless steel appliances. The fully finished basement boasts high ceiling with two bedrooms and one bath. Located in a prime location, this property provides easy access to expressways, shopping centers, restaurants, schools, and recreational activities, ensuring convenience at every turn. With central air, stylish finishes, and a well-maintained exterior, this home is the perfect blend of comfort and practicality. Don't miss your chance to own this fantastic Airbnb income-generating home in the vibrant Melrose Park community.
| DAYS ON MARKET | 78 | LAST UPDATED | 10/1/2025 | 
|---|---|---|---|
| TRACT | North Ave Home Acres | YEAR BUILT | 2023 | 
| COMMUNITY | Melrose Park | COUNTY | Cook | 
| STATUS | Conditional | PROPERTY TYPE(S) | Single Family | 
| School District | West Leyden High School | 
|---|---|
| Elementary School | Rhodes Elementary School | 
| Jr. High School | Rhodes Elementary School | 
| High School | West Leyden High School | 
| ADDITIONAL DETAILS | |
| AIR | Central Air | 
|---|---|
| AIR CONDITIONING | Yes | 
| AREA | Melrose Park | 
| BASEMENT | Crawl Space | 
| CONSTRUCTION | Other | 
| HEAT | Forced Air, Natural Gas | 
| LOT | 3354 sq ft | 
| LOT DIMENSIONS | 78X43 | 
| PARKING | Concrete, Driveway, On Site | 
| SEWER | Public Sewer | 
| SUBDIVISION | North Ave Home Acres | 
| TAXES | 6012.54 | 
            MORTGAGE CALCULATOR
        
        TOTAL MONTHLY PAYMENT
0
                    P
                        I 
                    
            *Estimate only
        
    | SATELLITE VIEW | 
| / | |
	We respect your online privacy and will never spam you. By submitting this form with your telephone number
	you are consenting for Humderto
	Garcia to contact you even if your name is on a Federal or State
	"Do not call List".
	
    Listed with Baird & Warner
	The data relating to real estate for sale on this web site comes in part from the Broker ReciprocitySM Program of MRED. All real estate listings are marked with the Broker ReciprocitySM logo or the MRED Broker ReciprocitySM thumbnail logo (a little black house) and detailed information about them includes the name of the listing brokers.
The broker providing these data believes them to be correct, but advises interested parties to confirm them before relying on them in a purchase decision.
Copyright 2025 MRED. All rights reserved.

	
	
	
    
The broker providing these data believes them to be correct, but advises interested parties to confirm them before relying on them in a purchase decision.
Copyright 2025 MRED. All rights reserved.

This IDX solution is (c) Diverse Solutions 2025.
 
				 Twitter
									        Twitter Facebook
									        Facebook Email
									        Email 
									 
									 
									 
									 
									 
									 
									 
									 
									 
									 
									 
									 
									 
									 
									 
									 
									 
									 
									 
									 
									 
									 
									 
									 
									 
									 
									 
									 
									 
									