|
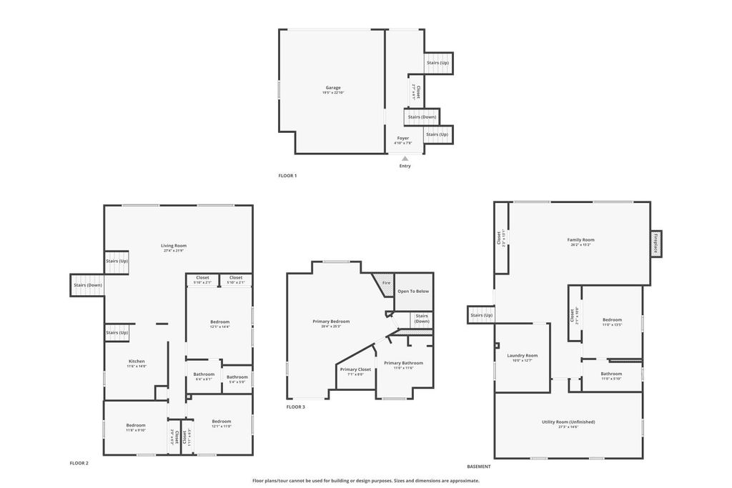
Check out the updates since original listing date (see photos)...Not your typical floor plan. Modified T-Raised Ranch with large master bedroom suite addition. 4 bedrooms above grade with an additional 5th bedroom in the lower level. This floor plan is perfect for related living with a full bath on every level. Enter into the large foyer with plenty of room to remove shoes & coats and store them away in the entry closet. The entry level features access to the spacious yard and 2 car garage. Large center island kitchen with lots of custom under cabinet lighting. Hardwood floors throughout the main level. The huge master bedroom suite features a fireplace with gas logs, entry to the upper deck where you can enjoy your morning coffee or warm evenings, ensuite bath with whirlpool tub, separate shower, and lots of cabinets, and don't forget about the spacious walk-in closet! The lower level features a large family room with wood-burning fireplace and new luxury vinyl flooring, a bedroom, full bath, laundry room, and ample storage/workroom. The multi-level deck and patio are perfect for outdoor entertaining. The large yard has plenty of trees for shade. You are sure to love the convenient location only minutes to I-355 and the Lisle train station. Come see and make this your home today!
| DAYS ON MARKET | 109 | LAST UPDATED | 10/30/2025 |
|---|---|---|---|
| TRACT | Meadows | YEAR BUILT | 1963 |
| COMMUNITY | Lisle | GARAGE SPACES | 2.0 |
| COUNTY | DuPage | STATUS | Active |
| PROPERTY TYPE(S) | Single Family |
| School District | Lisle High School |
|---|---|
| Elementary School | Tate Woods Elementary |
| Jr. High School | Lisle Junior High School |
| High School | Lisle High School |
| PRICE HISTORY | |
| Prior to Oct 30, '25 | $595,000 |
|---|---|
| Oct 30, '25 - Today | $575,000 |
| ADDITIONAL DETAILS | |
| AIR | Central Air, Zoned |
|---|---|
| AIR CONDITIONING | Yes |
| APPLIANCES | Dishwasher, Disposal, Dryer, Microwave, Range, Refrigerator, Washer |
| AREA | Lisle |
| BASEMENT | Daylight, Finished, Full, Storage Space, Yes |
| CONSTRUCTION | Vinyl Siding |
| FIREPLACE | Yes |
| GARAGE | Attached Garage, Yes |
| HEAT | Forced Air, Natural Gas |
| INTERIOR | Walk-In Closet(s) |
| LOT | 10019 sq ft |
| LOT DESCRIPTION | Wooded |
| LOT DIMENSIONS | 10094 |
| PARKING | Asphalt, Garage Door Opener, Attached, Garage |
| SEWER | Public Sewer |
| SUBDIVISION | Meadows |
| TAXES | 10743.9 |
MORTGAGE CALCULATOR
TOTAL MONTHLY PAYMENT
0
P
I
*Estimate only
| SATELLITE VIEW |
| / | |
We respect your online privacy and will never spam you. By submitting this form with your telephone number
you are consenting for Humderto
Garcia to contact you even if your name is on a Federal or State
"Do not call List".
Listed with Annette C Panzek LTD
The data relating to real estate for sale on this web site comes in part from the Broker ReciprocitySM Program of MRED. All real estate listings are marked with the Broker ReciprocitySM logo or the MRED Broker ReciprocitySM thumbnail logo (a little black house) and detailed information about them includes the name of the listing brokers.
The broker providing these data believes them to be correct, but advises interested parties to confirm them before relying on them in a purchase decision.
Copyright 2025 MRED. All rights reserved.

The broker providing these data believes them to be correct, but advises interested parties to confirm them before relying on them in a purchase decision.
Copyright 2025 MRED. All rights reserved.
This IDX solution is (c) Diverse Solutions 2025.