|
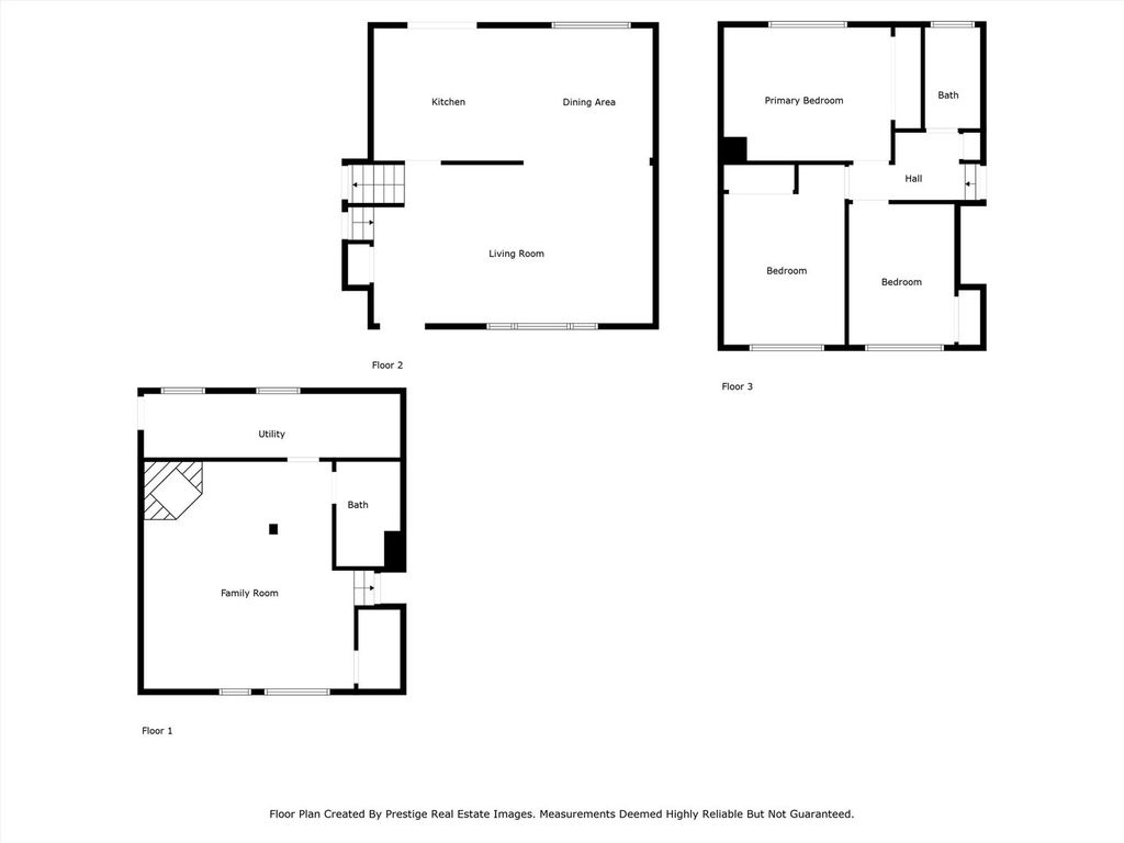
WOW! Fussiest buyers welcome! Looking for a perfect property in NORDIC PARK??? We got one for you and it is ready to move-in right away too!!! Come to take a look today at this very well maintained split level with so much to list!!! Home sits on a quiet residential street with professionally landscaped lot in sought after area! 2nd floor is featuring 3 good size bedrooms w/great closet space...each with ceiling fan w/light - custom cherry finish closet organizers - baseboards - crown moldings - 2 panel solid core doors and custom casings - blinds - hardwood floors and 1st full updated bathroom w/tub. 1st floor offers front foyer w/coat closet - bright open living room - separate dining room - fully appliance eat in kitchen w/plenty of cabinets - granite countertops - breakfast bar - stainless steel appliances - recessed lights & access to wooden deck and professionally landscaped yard. Finished lower level welcomes you to cozy family room w/wood burning fireplace & custom built-in entertainment/bookshelf unit w/ample of storage & built in lights - 2nd full bathroom w/stand up shower - utility/laundry room with new laundry sink/washer & dryer (2025)....crawlspace with sump pump and sewer clean out....plenty of storage space & access to attached 2.5 car garage with workshop as well as the beautiful backyard. There are oak hardwood floors thru-out 1st and 2nd floor - new paint thru-out including the garage (2025) - new deck (2025) - newly painted storage shed (2025) - freshly seal coated asphalt driveway (2025) - recessed lights with dimmers - crown moldings - baseboards - customized closets - blinds thru-out - ceiling fans w/light - gas forced air heat - central air-conditioning - attic fan - sump pump - 100 AMPs circuit breaker box - exterior of home was power washed (2025) - gutters & downspouts cleaned (2025)!!! It is close to expressway I-355 and 290 - public transportation...PACE buses on LAKE STREET & SWIFT/ARMY TRAIL ROAD....Medinah or Itasca METRA train station on IRVING PARK ROAD...NORDIC PARK w/playground & tennis courts - Itasca Water Park - Nature Preserve - Medinah Country Club -EagleWood Resort and SPA down the street - shopping - stores & restaurants!!! See feature sheet for impressive list of improvements... Do not wait and schedule your appointment with your real estate agent today!!!
| DAYS ON MARKET | 110 | LAST UPDATED | 10/28/2025 |
|---|---|---|---|
| TRACT | Nordic Park | YEAR BUILT | 1966 |
| COMMUNITY | Itasca | GARAGE SPACES | 2.0 |
| COUNTY | DuPage | STATUS | Active |
| PROPERTY TYPE(S) | Single Family |
| School District | Lake Park High School |
|---|---|
| Elementary School | Raymond Benson Primary School |
| Jr. High School | F E Peacock Middle School |
| High School | Lake Park High School |
| PRICE HISTORY | |
| Prior to Sep 23, '25 | $547,499 |
|---|---|
| Sep 23, '25 - Oct 13, '25 | $539,499 |
| Oct 13, '25 - Oct 28, '25 | $534,499 |
| Oct 28, '25 - Today | $524,900 |
| ADDITIONAL DETAILS | |
| AIR | Ceiling Fan(s), Central Air |
|---|---|
| AIR CONDITIONING | Yes |
| APPLIANCES | Dishwasher, Disposal, Dryer, Gas Cooktop, Gas Oven, Microwave, Range, Refrigerator, Stainless Steel Appliance(s), Washer |
| AREA | Itasca |
| BASEMENT | Concrete, Crawl Space, Daylight, Exterior Entry, Finished, Storage Space, Sump Pump, Walk-Up Access, Yes |
| CONSTRUCTION | Brick, Vinyl Siding |
| FIREPLACE | Yes |
| GARAGE | Attached Garage, Yes |
| HEAT | Forced Air, Natural Gas |
| INTERIOR | Bookcases, Built-in Features, Entrance Foyer, Granite Counters, Open Floorplan |
| LOT | 0.26 acre(s) |
| LOT DESCRIPTION | Garden, Irregular Lot, Landscaped |
| LOT DIMENSIONS | 92 X 145 X 60 X 158 |
| PARKING | Asphalt, Garage Door Opener, Attached, Off Street, Driveway, Garage |
| SEWER | Public Sewer |
| SUBDIVISION | Nordic Park |
| TAXES | 6869.88 |
| WATER | Shared Well |
MORTGAGE CALCULATOR
TOTAL MONTHLY PAYMENT
0
P
I
*Estimate only
| SATELLITE VIEW |
| / | |
We respect your online privacy and will never spam you. By submitting this form with your telephone number
you are consenting for Humderto
Garcia to contact you even if your name is on a Federal or State
"Do not call List".
Listed with Anthony J.Trotto Real Estate
The data relating to real estate for sale on this web site comes in part from the Broker ReciprocitySM Program of MRED. All real estate listings are marked with the Broker ReciprocitySM logo or the MRED Broker ReciprocitySM thumbnail logo (a little black house) and detailed information about them includes the name of the listing brokers.
The broker providing these data believes them to be correct, but advises interested parties to confirm them before relying on them in a purchase decision.
Copyright 2025 MRED. All rights reserved.

The broker providing these data believes them to be correct, but advises interested parties to confirm them before relying on them in a purchase decision.
Copyright 2025 MRED. All rights reserved.
This IDX solution is (c) Diverse Solutions 2025.