|
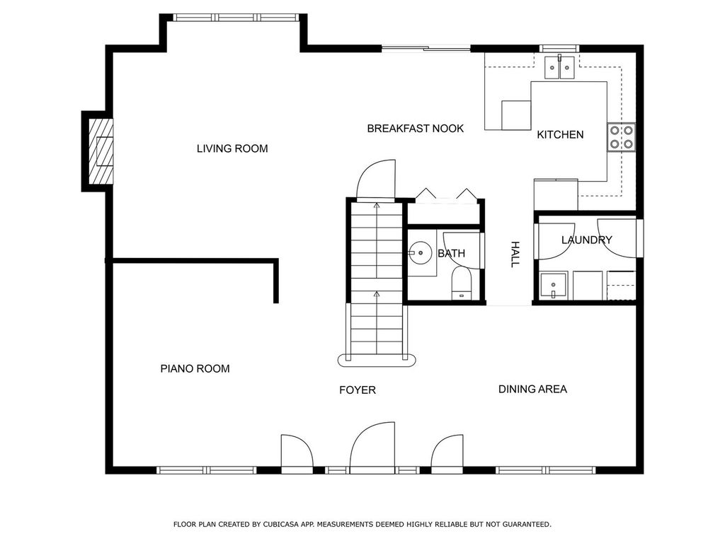
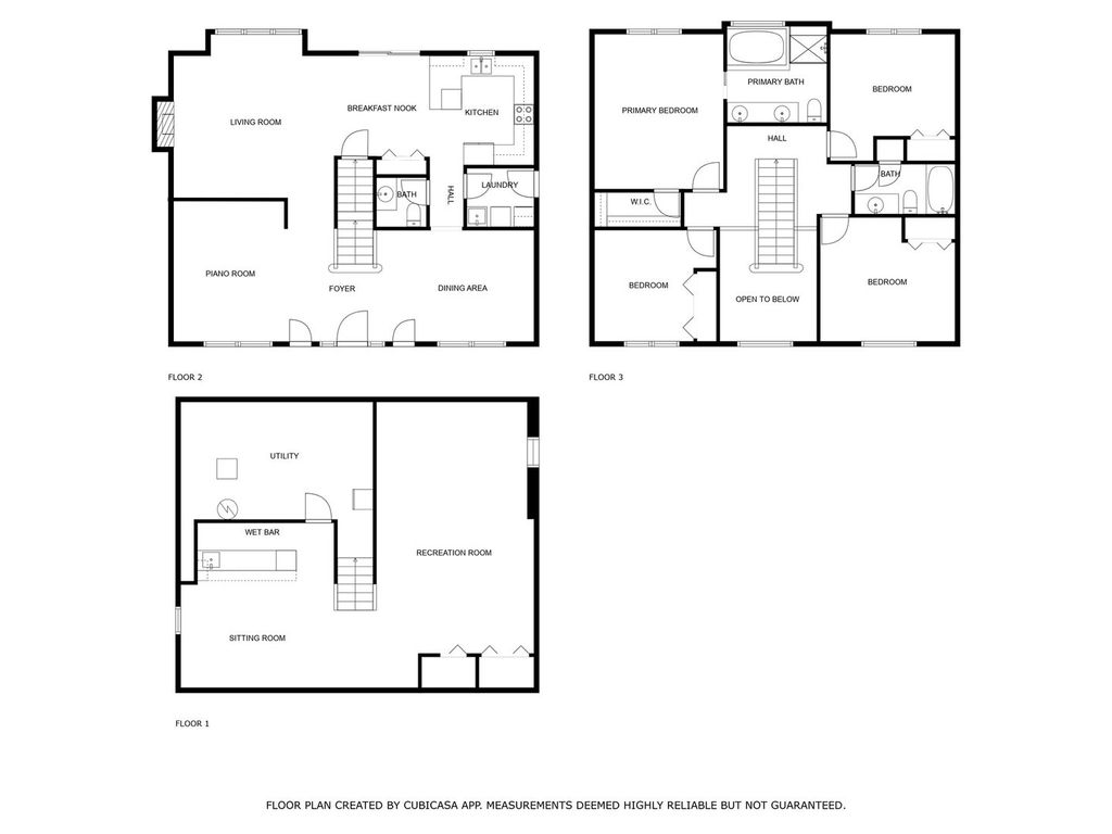
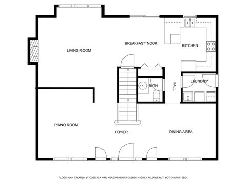
MULTIPLE OFFERS RECEIVED CALLING FOR HIGHEST AND BEST BY MON, AUG.25 @ 8PM. Welcome to 4816 Daggets Court! First time on the market, this beautiful four-bedroom, 2.5-bath home with a finished basement has everything you're looking for. Step inside to a dramatic two-story entryway that opens to a formal living room and dining room-perfect for entertaining. The updated kitchen features cabinet refacing, sleek quartz countertops, and new stainless steel appliances. The spacious family room offers a cozy fireplace, brand-new carpet, and plenty of natural light. A convenient half bath and a separate laundry room with a wash tub complete the main level. Upstairs, you'll find four generously sized bedrooms. The primary suite is a true retreat with a walk-in closet and a spa-like bath that includes a whirlpool tub, separate shower, and dual vanities. The additional three bedrooms share a full bath and provide plenty of space for family, guests, or a home office. The finished basement is built for entertaining with a wet bar, a huge recreation area, and endless possibilities for fun and relaxation. Outside, enjoy your own private oasis with a deck and patio, mature landscaping, an irrigation system, and an invisible fence. The oversized two-car garage is upgraded with epoxy flooring and custom shelving, offering exceptional storage and organization. Located in highly sought-after District 204, this home attends Neuqua Valley High School and is close to parks, shopping, and dining. Don't miss your chance to own this incredible home-it truly has it all! HVAC 2023, REFRIGERATOR, 5 ELEMENT INDUCTION COOKTOP AND OVEN, MICROWAVE 2023 WASHER/DRYER 2020 ROOF 2013 IRRIGATION SYSTEM, INVISIBLE FENCE, DRYVIT/SYNERGY INSPECTION 2025 NEW CARPET 2025 IN FAMILY ROOM AND 3 BEDROOMS
DAYS ON MARKET | 50 | LAST UPDATED | 8/26/2025 |
---|---|---|---|
TRACT | Saddle Creek | YEAR BUILT | 1996 |
COMMUNITY | Naperville | GARAGE SPACES | 2.0 |
COUNTY | Will | STATUS | Conditional |
PROPERTY TYPE(S) | Single Family |
School District | Neuqua Valley High School |
---|---|
Elementary School | Kendall Elementary School |
Jr. High School | Clifford Crone |
High School | Neuqua Valley High School |
ADDITIONAL DETAILS | |
AIR | Central Air |
---|---|
AIR CONDITIONING | Yes |
APPLIANCES | Dishwasher, Disposal, Dryer, Microwave, Range, Refrigerator, Stainless Steel Appliance(s), Washer |
AREA | Naperville |
BASEMENT | Finished, Full, Yes |
CONSTRUCTION | Synthetic Stucco, Vinyl Siding |
FIREPLACE | Yes |
GARAGE | Yes |
HEAT | Natural Gas |
HOA DUES | 310 |
INTERIOR | Entrance Foyer, Open Floorplan, Pantry, Walk-In Closet(s), Wet Bar |
LOT | 0.4 acre(s) |
LOT DESCRIPTION | Corner Lot, Cul-de-sac, Landscaped |
LOT DIMENSIONS | 17391 |
PARKING | Asphalt, Garage Door Opener, On Site, Attached, Garage |
SEWER | Public Sewer |
SUBDIVISION | Saddle Creek |
TAXES | 10868 |
MORTGAGE CALCULATOR
TOTAL MONTHLY PAYMENT
0
P
I
*Estimate only
SATELLITE VIEW |
/ | |
We respect your online privacy and will never spam you. By submitting this form with your telephone number
you are consenting for Humderto
Garcia to contact you even if your name is on a Federal or State
"Do not call List".
Listed with Baird & Warner
The data relating to real estate for sale on this web site comes in part from the Broker ReciprocitySM Program of MRED. All real estate listings are marked with the Broker ReciprocitySM logo or the MRED Broker ReciprocitySM thumbnail logo (a little black house) and detailed information about them includes the name of the listing brokers.
The broker providing these data believes them to be correct, but advises interested parties to confirm them before relying on them in a purchase decision.
Copyright 2025 MRED. All rights reserved.

The broker providing these data believes them to be correct, but advises interested parties to confirm them before relying on them in a purchase decision.
Copyright 2025 MRED. All rights reserved.

This IDX solution is (c) Diverse Solutions 2025.