|
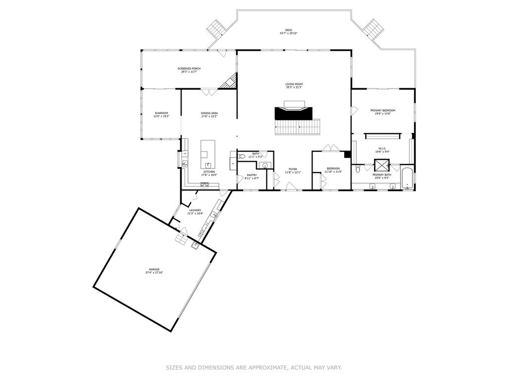
You may have just found the house of your dreams in this custom designed and built Alpine Log Cabin. Cabin is actually an understatement for this masterpiece of a home! It is privately tucked away on 3.8 acres with its own 1 acre stocked pond for fishing. From the moment you come down the private drive you will be amazed by at each and every inch of the home. Each room you enter the "wows" will continue. This 5,643 s/f was so well envisioned and designed for entertaining and living everyone that sees it will be in awe! The first floor has two bedrooms including a primary suite with gorgeous views out the back to the pond, a beautiful walk in closet/dressing room, a gorgeous bathroom with walk in shower and soaking tub. The living room with soaring ceiling and full windows (with remote window treatments) and floor to ceiling stone fireplace. Imagine your holidays here! Kitchen has 2 story volume ceilings w/Subzero refrigerator, Viking appliances, extra sub zero fridge in massive kitchen island, filtered hot and cold water, walk in pantry. Off the kitchen is the sunny Breakfast Room, which leads into the 3 season Sun Room with fireplace! The second floor has 2 bedrooms and a full bath. The walk out basement has the last 2 bedrooms, (6 in total) in-law suite with full kitchen, and full bath. Radiant heat flooring throughout, central air conditioning zoned, heated garage floor, 2.5 car garage, custom logs from Montana, new roof 2024, The home was filmed for an upcoming Netflix Movie, 6 beds 3.1 baths, the features go on and on, schedule your private showing today!
| DAYS ON MARKET | 169 | LAST UPDATED | 10/31/2025 |
|---|---|---|---|
| YEAR BUILT | 2000 | COMMUNITY | Orland Park |
| GARAGE SPACES | 2.5 | COUNTY | Cook |
| STATUS | Active | PROPERTY TYPE(S) | Single Family |
| PRICE HISTORY | |
| Prior to Sep 2, '25 | $1,300,000 |
|---|---|
| Sep 2, '25 - Oct 2, '25 | $1,250,000 |
| Oct 2, '25 - Today | $1,199,000 |
| ADDITIONAL DETAILS | |
| AIR | Ceiling Fan(s), Central Air |
|---|---|
| AIR CONDITIONING | Yes |
| APPLIANCES | Dishwasher, Disposal, Double Oven, Dryer, Microwave, Range, Range Hood, Refrigerator, Washer, Water Purifier, Water Softener |
| AREA | Orland Park |
| BASEMENT | Finished, Sump Pump, Walk-Out Access, Yes |
| CONSTRUCTION | Log |
| EXTERIOR | Fire Pit |
| FIREPLACE | Yes |
| GARAGE | Attached Garage, Yes |
| HEAT | Radiant, Radiant Floor, Steam, Wood Stove |
| INTERIOR | Built-in Features, Cathedral Ceiling(s), Dry Bar, Entrance Foyer, In-Law Floorplan, Pantry, Walk-In Closet(s) |
| LOT | 3.82 acre(s) |
| LOT DESCRIPTION | Irregular Lot, Landscaped, Wooded |
| LOT DIMENSIONS | 730X78X171X668X243 |
| PARKING | Asphalt, Garage Door Opener, Attached, Garage |
| SEWER | Septic Tank |
| TAXES | 13484 |
| UTILITIES | Cable Available |
| VIEW | Yes |
| VIEW DESCRIPTION | Water |
| WATER | Well |
| WATERFRONT | Yes |
| WATERFRONT DESCRIPTION | Pond |
MORTGAGE CALCULATOR
TOTAL MONTHLY PAYMENT
0
P
I
*Estimate only
| SATELLITE VIEW |
| / | |
We respect your online privacy and will never spam you. By submitting this form with your telephone number
you are consenting for Humderto
Garcia to contact you even if your name is on a Federal or State
"Do not call List".
Listed with Coldwell Banker Realty
The data relating to real estate for sale on this web site comes in part from the Broker ReciprocitySM Program of MRED. All real estate listings are marked with the Broker ReciprocitySM logo or the MRED Broker ReciprocitySM thumbnail logo (a little black house) and detailed information about them includes the name of the listing brokers.
The broker providing these data believes them to be correct, but advises interested parties to confirm them before relying on them in a purchase decision.
Copyright 2026 MRED. All rights reserved.

The broker providing these data believes them to be correct, but advises interested parties to confirm them before relying on them in a purchase decision.
Copyright 2026 MRED. All rights reserved.
This IDX solution is (c) Diverse Solutions 2026.