|
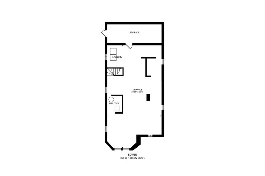
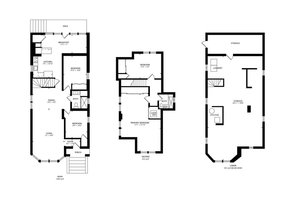
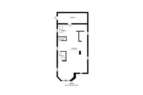
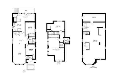
Welcome home to this beautifully renovated 5-bedroom, 2-bath all-brick bungalow in the heart of Jefferson Park - where modern luxury meets timeless Chicago charm. Step inside to a bright, open interior filled with natural light, featuring elegant, recessed lighting and a seamless flow throughout. The main level showcases a spacious open concept living and dining area that leads to a designer kitchen sure to impress. Enjoy brand-new stainless-steel appliances, quartz countertops, a stylish hex-tile backsplash, and satin brass fixtures that add just the right touch of sophistication and warmth. Retreat upstairs to the serene primary suite, complete with a convenient in-unit washer and dryer - one of two laundry areas in the home. Thoughtful upgrades continue with two new HVAC systems; dual-zone climate control for personalized comfort year-round. No detail has been overlooked: new architectural-grade roof, energy-efficient windows with custom window treatments, updated electrical and plumbing systems, and a full perimeter drain tile with sump pump for peace of mind. The basement offers endless possibilities for build out- perfect for a family room, home gym, office, or guest suite. Outside, relax or entertain in the privately fenced backyard, featuring a one-car garage plus two additional exterior parking spaces. Ideally located near parks, top-rated schools, public transit, and the Kennedy Expressway, this move-in-ready gem delivers modern living, classic character, and unbeatable convenience - all in one of Chicago's most welcoming neighborhoods.
| DAYS ON MARKET | 128 | LAST UPDATED | 11/25/2025 |
|---|---|---|---|
| YEAR BUILT | 1925 | COMMUNITY | CHI - Jefferson Park |
| GARAGE SPACES | 1.0 | COUNTY | Cook |
| STATUS | Conditional | PROPERTY TYPE(S) | Single Family |
| School District | Taft High School |
|---|---|
| Elementary School | Farnsworth Elementary School |
| High School | Taft High School |
| ADDITIONAL DETAILS | |
| AIR | Central Air |
|---|---|
| AIR CONDITIONING | Yes |
| APPLIANCES | Dishwasher, Dryer, Microwave, Range, Refrigerator, Stainless Steel Appliance(s), Washer |
| AREA | CHI - Jefferson Park |
| BASEMENT | Finished, Full, Sump Pump, Yes |
| CONSTRUCTION | Brick |
| GARAGE | Yes |
| HEAT | Forced Air, Natural Gas |
| LOT | 0 |
| LOT DIMENSIONS | 25X125 |
| PARKING | Garage Door Opener, Detached, Garage |
| SEWER | Public Sewer |
| STYLE | Bungalow |
| TAXES | 6333.33 |
| WATER | Public |
MORTGAGE CALCULATOR
TOTAL MONTHLY PAYMENT
0
P
I
*Estimate only
| SATELLITE VIEW |
| / | |
We respect your online privacy and will never spam you. By submitting this form with your telephone number
you are consenting for Humderto
Garcia to contact you even if your name is on a Federal or State
"Do not call List".
Listed with @properties Christie's International Real Estate
The data relating to real estate for sale on this web site comes in part from the Broker ReciprocitySM Program of MRED. All real estate listings are marked with the Broker ReciprocitySM logo or the MRED Broker ReciprocitySM thumbnail logo (a little black house) and detailed information about them includes the name of the listing brokers.
The broker providing these data believes them to be correct, but advises interested parties to confirm them before relying on them in a purchase decision.
Copyright 2025 MRED. All rights reserved.

The broker providing these data believes them to be correct, but advises interested parties to confirm them before relying on them in a purchase decision.
Copyright 2025 MRED. All rights reserved.
This IDX solution is (c) Diverse Solutions 2025.