|
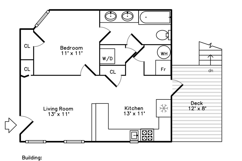
Sun-drenched top-floor 1BR/1BA condo in a prime Bucktown location-tucked on a quiet, tree-lined street just steps from Holstein Park, the 606 Trail, and the Blue Line. Soaring 10-foot ceilings and gleaming hardwood floors highlight the open-concept layout, while the spacious kitchen features stainless steel appliances, granite countertops, undermount sink, mosaic tile backsplash, and generous cabinet storage. The elegant Jack-and-Jill bathroom offers marble flooring and shower surround, dual vanity with granite countertops, and tasteful neutral finishes. Enjoy the comfort of gas forced heat and central air, in-unit washer/dryer, an organized primary closet, and a private balcony off the kitchen-perfect for summer nights or entertaining. Located in an intimate, self-managed 6-unit building with easy street parking and low monthly assessments. An incredible opportunity to own in one of Chicago's most sought-after neighborhoods!
DAYS ON MARKET | 50 | LAST UPDATED | 9/2/2025 |
---|---|---|---|
YEAR BUILT | 1899 | COMMUNITY | CHI - Logan Square |
COUNTY | Cook | STATUS | Active |
PROPERTY TYPE(S) | Condo/Townhouse/Co-Op |
ADDITIONAL DETAILS | |
AIR | Ceiling Fan(s), Central Air |
---|---|
AIR CONDITIONING | Yes |
AMENITIES | Insurance, Water |
APPLIANCES | Dishwasher, Dryer, Microwave, Range, Refrigerator, Stainless Steel Appliance(s), Washer |
AREA | CHI - Logan Square |
BASEMENT | None |
CONSTRUCTION | Brick |
HEAT | Forced Air, Natural Gas |
HOA DUES | 237 |
LOT | 0 |
LOT DIMENSIONS | COMMON |
SEWER | Public Sewer |
STORIES | 3 |
TAXES | 4385.82 |
MORTGAGE CALCULATOR
TOTAL MONTHLY PAYMENT
0
P
I
*Estimate only
SATELLITE VIEW |
/ | |
We respect your online privacy and will never spam you. By submitting this form with your telephone number
you are consenting for Humderto
Garcia to contact you even if your name is on a Federal or State
"Do not call List".
Listed with Compass
The data relating to real estate for sale on this web site comes in part from the Broker ReciprocitySM Program of MRED. All real estate listings are marked with the Broker ReciprocitySM logo or the MRED Broker ReciprocitySM thumbnail logo (a little black house) and detailed information about them includes the name of the listing brokers.
The broker providing these data believes them to be correct, but advises interested parties to confirm them before relying on them in a purchase decision.
Copyright 2025 MRED. All rights reserved.

The broker providing these data believes them to be correct, but advises interested parties to confirm them before relying on them in a purchase decision.
Copyright 2025 MRED. All rights reserved.

This IDX solution is (c) Diverse Solutions 2025.