|
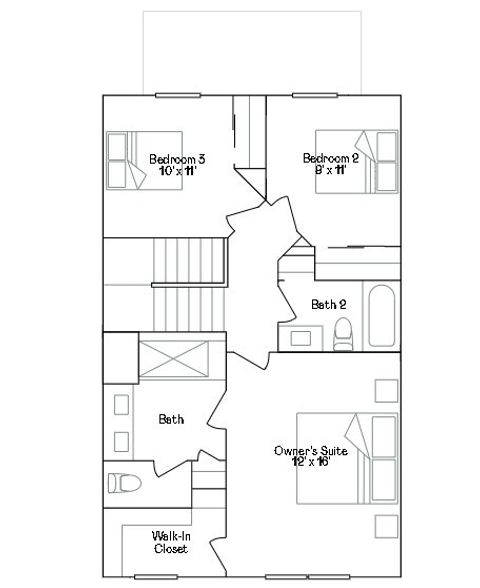
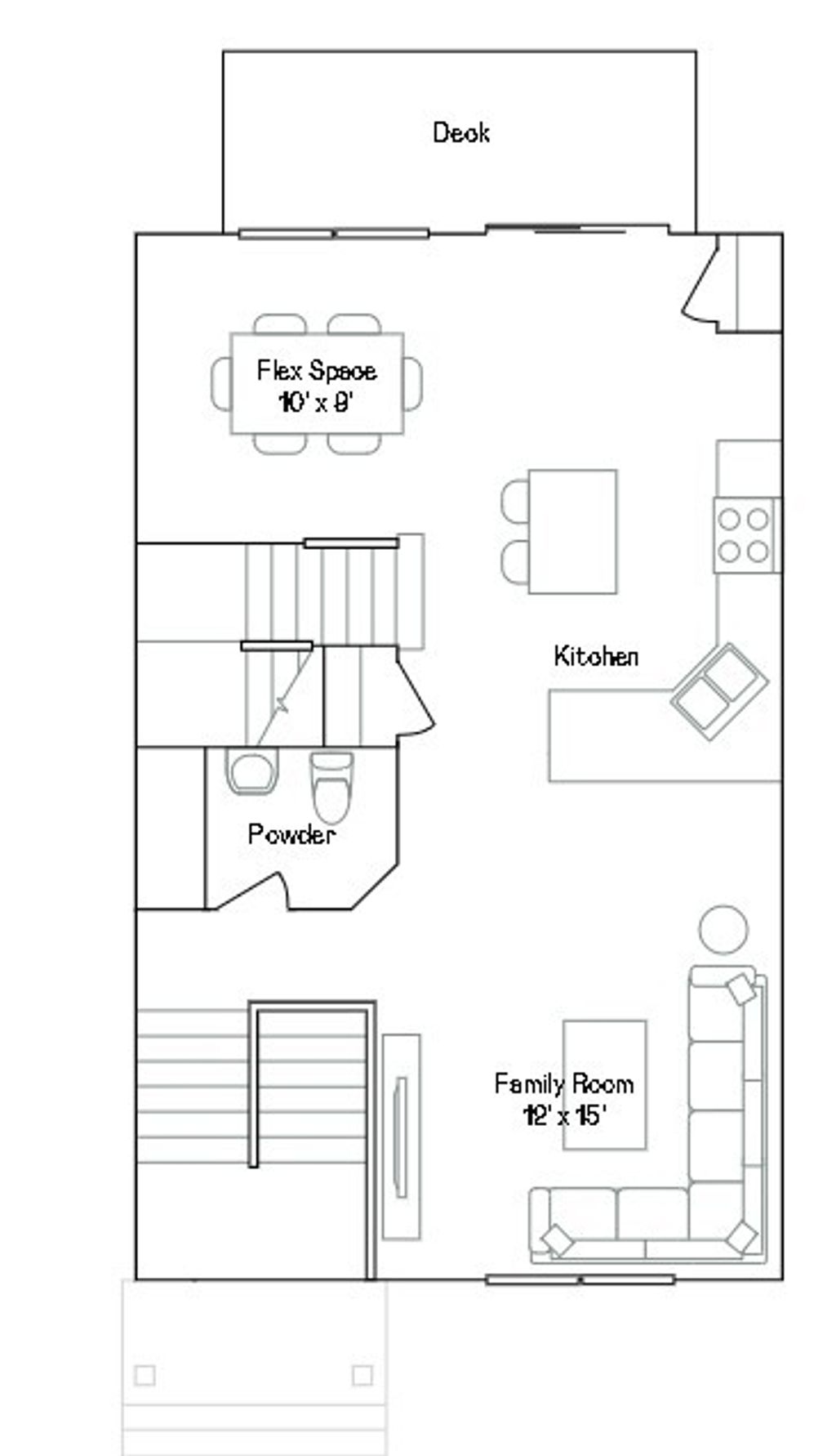
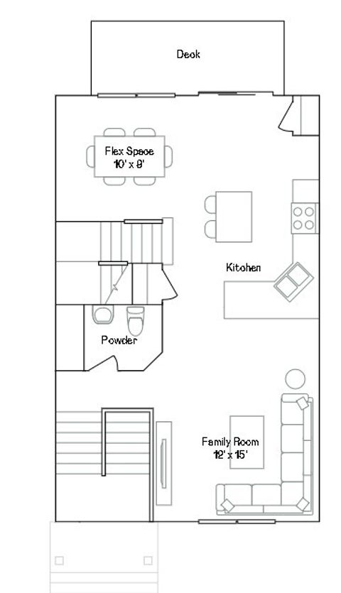
SPECIAL FINANCING OFFERS AVAILABLE! READY FOR NOVEMBER DELIVERY!!!! Homesite #1183 Discover the Amherst, a refined three-story urban townhome offering three bedrooms, two full baths, and a half bath-perfectly tailored for modern living. The main level boasts a bright, open-concept layout that includes a spacious great room, elegant dining area, and a stunning kitchen with an oversized quartz island, 42"" upper cabinets, stainless steel appliances, and a walk-in pantry. Upstairs, enjoy a serene owner's suite featuring a walk-in closet and spa-like bath with dual white undermount bowls and a walk-in shower. Two additional bedrooms, a full bath, and a second-floor laundry room complete the upper level. The entry-level flex space provides versatile functionality - ideal as a home office, workout room, or media space. Throughout the home, luxury vinyl plank flooring, quartz countertops, LED lighting, and decorative railings elevate the aesthetic. *Photos are not this actual home* Experience the best of suburban living at Keller Farm, a thoughtfully planned community coming soon to Plainfield, Illinois. This exciting new neighborhood will feature exceptional onsite amenities, including a nearly 30-acre park, an extensive trail system, and almost five acres of additional parkland-perfect for outdoor adventures, family fun, and everyday relaxation. Located in the thriving city of Plainfield, Keller Farm offers residents the perfect blend of small-town charm and modern convenience. Downtown Plainfield is a vibrant hub of activity, with boutique shops, local restaurants, big box retailers, and major supermarkets all close at hand. Whether you're running errands or enjoying a night out, everything you need is just minutes away. Plainfield is also known for its excellent recreation centers, beautiful parks, and year-round community events. From the festive St. Patrick's Day parade to seasonal artisan markets and the lively Plainfield Fest each summer, there's always something happening to bring neighbors together. At Keller Farm, you'll find more than just a home-you'll find a lifestyle filled with connection, convenience, and community.
DAYS ON MARKET | 30 | LAST UPDATED | 9/3/2025 |
---|---|---|---|
TRACT | Keller Farm | YEAR BUILT | 2025 |
COMMUNITY | Plainfield | GARAGE SPACES | 2.0 |
COUNTY | Will | STATUS | Active |
PROPERTY TYPE(S) | Condo/Townhouse/Co-Op |
School District | Plainfield North High School |
---|---|
Elementary School | Lincoln Elementary School |
Jr. High School | Ira Jones Middle School |
High School | Plainfield North High School |
ADDITIONAL DETAILS | |
AIR | Central Air |
---|---|
AIR CONDITIONING | Yes |
AMENITIES | Snow Removal |
APPLIANCES | Dishwasher, Disposal, Microwave, Range, Stainless Steel Appliance(s) |
AREA | Plainfield |
BASEMENT | None |
CONSTRUCTION | Brick, Vinyl Siding |
GARAGE | Yes |
HEAT | Forced Air, Natural Gas |
HOA DUES | 180 |
LOT | 0 |
LOT DIMENSIONS | 0 |
PARKING | Asphalt, Garage Door Opener, On Site, Attached, Garage |
SEWER | Public Sewer |
STORIES | 3 |
SUBDIVISION | Keller Farm |
WATER | Public |
MORTGAGE CALCULATOR
TOTAL MONTHLY PAYMENT
0
P
I
*Estimate only
SATELLITE VIEW |
/ | |
We respect your online privacy and will never spam you. By submitting this form with your telephone number
you are consenting for Humderto
Garcia to contact you even if your name is on a Federal or State
"Do not call List".
Listed with HomeSmart Connect LLC
The data relating to real estate for sale on this web site comes in part from the Broker ReciprocitySM Program of MRED. All real estate listings are marked with the Broker ReciprocitySM logo or the MRED Broker ReciprocitySM thumbnail logo (a little black house) and detailed information about them includes the name of the listing brokers.
The broker providing these data believes them to be correct, but advises interested parties to confirm them before relying on them in a purchase decision.
Copyright 2025 MRED. All rights reserved.

The broker providing these data believes them to be correct, but advises interested parties to confirm them before relying on them in a purchase decision.
Copyright 2025 MRED. All rights reserved.

This IDX solution is (c) Diverse Solutions 2025.