|
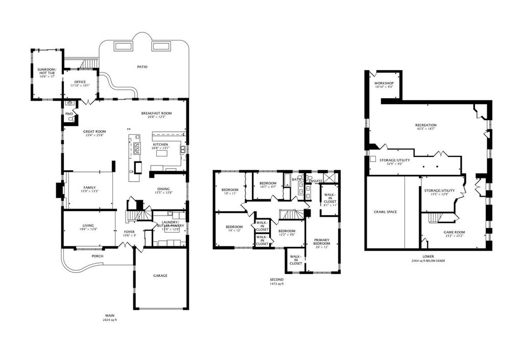
Once in a lifetime chance to buy and enjoy this "multi expanded" family home. Home is now empty - it is move in ready and can close quickly. Photos show sellers furnishings prior to moving with some rooms showing empty. If you have been thinking of major additions to your home... avoid the costs, the delays, the dust and all the life interruptions that it would cause... it's done here and along with a very fair tax bill. . Starting with massive 50' x 25' great room addition to entire back of home - over 4,300 square feet of living space (13 rooms) 2,824 of first floor living space alone and an additional 2,000+ square feet of finished basement with great storage. Incredible main level expansion offers huge open chef's kitchen centered between great room - family room (with fireplace) - huge eating area/breakfast room - 1st floor butler's / laundry room - large office - heated sunroom with hot tub - formal living room and separate dining room. Newer hardwood floors throughout - vaulted & beamed ceilings with numerous skylight - custom kitchen - top stainless steel appliances - Wolf 6 burner & 2 burner griddle stove top & oven - unlimited granite counter-tops - eating areas and more. Master bedroom also expanded with Kohler designed including marble & ceramic mosaics. Enjoy private yard, brick patio with firepit, screened pergola and outdoor kitchen with pizza oven. Prairie Trails School (Pre & Kindergarten -one block away), Indian Grove Elementary, River Trails Middle School, and Hersey High School. Easy access to Chicago via Prospect Heights Metra Train station 1.4 miles away. 1 mile to Woodland Trails Pool. Randhurst Village is nearby with stores, restaurants, movie theaters, and shopping.
| DAYS ON MARKET | 103 | LAST UPDATED | 8/21/2025 |
|---|---|---|---|
| TRACT | Boulder Point | YEAR BUILT | 1965 |
| COMMUNITY | Mount Prospect | GARAGE SPACES | 2.0 |
| COUNTY | Cook | STATUS | Active |
| PROPERTY TYPE(S) | Single Family |
| School District | John Hersey High School |
|---|---|
| Elementary School | Indian Grove Elementary School |
| Jr. High School | River Trails Middle School |
| High School | John Hersey High School |
| ADDITIONAL DETAILS | |
| AIR | Ceiling Fan(s), Central Air, Zoned |
|---|---|
| AIR CONDITIONING | Yes |
| APPLIANCES | Dishwasher, Disposal, Double Oven, Dryer, Microwave, Range, Range Hood, Stainless Steel Appliance(s), Washer, Wine Refrigerator |
| AREA | Mount Prospect |
| BASEMENT | Finished, Full, Sump Pump, Yes |
| CONSTRUCTION | Aluminum Siding, Brick |
| FIREPLACE | Yes |
| GARAGE | Attached Garage, Yes |
| HEAT | Forced Air, Natural Gas, Zoned |
| INTERIOR | Beamed Ceilings, Built-in Features, Cathedral Ceiling(s), Dry Bar, Entrance Foyer, Granite Counters, Open Floorplan, Walk-In Closet(s) |
| LOT | 0.3 acre(s) |
| LOT DESCRIPTION | Landscaped |
| LOT DIMENSIONS | 56X184X104X227 |
| PARKING | Garage Door Opener, Attached, Garage, Driveway |
| STYLE | Colonial |
| SUBDIVISION | Boulder Point |
| TAXES | 15728.46 |
| UTILITIES | Cable Available |
MORTGAGE CALCULATOR
TOTAL MONTHLY PAYMENT
0
P
I
*Estimate only
| SATELLITE VIEW |
| / | |
We respect your online privacy and will never spam you. By submitting this form with your telephone number
you are consenting for Humderto
Garcia to contact you even if your name is on a Federal or State
"Do not call List".
Listed with @properties Christie�s International Real Estate
The data relating to real estate for sale on this web site comes in part from the Broker ReciprocitySM Program of MRED. All real estate listings are marked with the Broker ReciprocitySM logo or the MRED Broker ReciprocitySM thumbnail logo (a little black house) and detailed information about them includes the name of the listing brokers.
The broker providing these data believes them to be correct, but advises interested parties to confirm them before relying on them in a purchase decision.
Copyright 2025 MRED. All rights reserved.

The broker providing these data believes them to be correct, but advises interested parties to confirm them before relying on them in a purchase decision.
Copyright 2025 MRED. All rights reserved.
This IDX solution is (c) Diverse Solutions 2025.